Terrain 505m² à la maxe

— La Maxe 57140 —
120 000 €
505 m²

Elodie Fabre et David Loffredo vos conseillers en immobilier Safti vous présente ce superbe terrains situé à La Maxe (57140), de 5ares qui vous offre un cadre idéal pour la construction d'un projet personnalisé. La Maxe, paisible localité proche de Metz, séduit par sa tranquillité, ses espaces verts et sa proximité avec les commodités essentielles telles que les écoles, les commerces et les services. Les habitants profitent également d'un accès aisé aux infrastructures de loisirs et de détente, faisant de La Maxe un lieu de vie attractif et convivial.

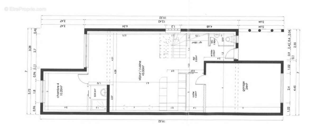
Ce terrain viabilisé, doté d'un permis de construire en règle et d'un projet déjà élaboré, offre une superficie de 505 m², idéale pour concrétiser vos aspirations résidentielles. dans la conception de votre future habitation, offrant ainsi la possibilité de réaliser un projet sur-mesure au coeur d'un environnement calme et plaisant. Ne manquez pas cette opportunité de construire le foyer de vos rêves dans un cadre propice à l'épanouissement familial.

Les informations sur les risques auxquels ce bien est exposé sont disponibles sur le site Géorisques : www.georisques.gouv.fr
Prix de vente : 120 000 ¤
Honoraires charge vendeur

Contactez votre conseiller SAFTI : Elodie FABRE, Tél. : [Coordonnées masquées], E-mail : [Coordonnées masquées] - EI - Agent commercial immatriculé au RSAC de Thionville sous le numéro 911 608 008.
Informations LOI ALUR :
Honoraires charge vendeur. (gedeon_26118_31158734)
Voir plus

Référence: 1433469
Honoraires à la charge du vendeur.
Barème des honoraires

Prêt immobilier

Vous souhaitez connaître votre capacité d’emprunt et trouver le meilleur crédit immobilier ?
Réaliser une simulation gratuite

Photo 1 - Terrain à LA MAXE
Photo 1
Photo 2 - Terrain à LA MAXE
Photo 2
Photo 3 - Terrain à LA MAXE
Photo 3
Photo 4 - Terrain à LA MAXE
Photo 4
Ce site est protégé par reCAPTCHA la Politique de confidentialité et les Conditions d’utilisation de Google s’appliquent.
Obtenir un prêt immobilier au meilleur taux ?

En poursuivant votre navigation sans modifier vos paramètres, vous acceptez l'utilisation de cookies susceptibles de réaliser des statistiques de visite. Cliquez ici pour plus d'informations