Appartement standing sur les coustous, appartement clé en main (travaux en cours de rénovation)

— Bagneres-De-Bigorre 65200 —
299 000 €
124 m²
4 pièces
balcon/terrasse

L'appartement sera vendu fini, rénové entièrement.
Offrez-vous un cadre de vie exceptionnel avec un appartement de standing idéalement situé en plein cœur de Bagnères-de-Bigorre, dans un immeuble face aux emblématiques Coustous.
ATTENTION le bien est actuellement en mode 'plateau'. Il sera totalement fini au prix de 299 000 € , rénové et complètemenn neuf.
Au 1er étage d'une copropriété de 6 appartements et 1 local commercial , avec ascenseur .
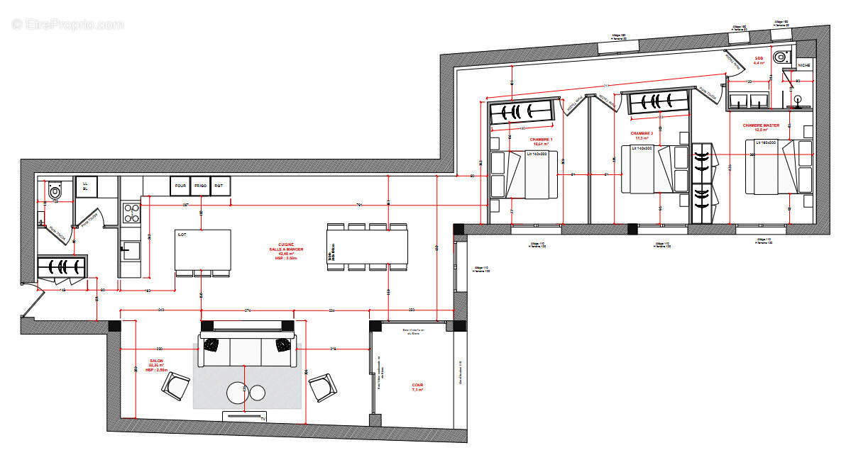
un T3 ou T4 (suivant l'aménagement souhaité (voir idées de plans ci joint) de 124 m2 , avec 1 salle d'eau et 2 ou 3 chambres. Salon / cuisine de plus de 64 m2 et une cour privative de 7 m2
prix fini : 299 000 €
Prix plateau pour information 219 000 € HAI
Caractéristiques :

Appartement entièrement rénové sur les Coustous
Emplacement exceptionnel : en plein centre-ville, à proximité immédiate des commerces, restaurants, et commodités
Prestations haut de gamme : matériaux de qualité, finitions soignées, et confort optimal pour la version 'appartement fini'
Exposition idéale offrant une luminosité naturelle tout au long de la journée

Une opportunité rare !
Si vous rêvez de vivre au cœur de Bagnères-de-Bigorre, dans un cadre à la fois dynamique et paisible, tout en profitant d'un confort moderne , cet appartement est fait pour vous.
Pour plus d’informations ou pour organiser une visite, n’hésitez pas à nous contacter.

Sur le même immeuble : Vente de 2 plateaux supplémentaires , avec les données suivantes :
- Au 2ème étage appartement de 106 m2 2 chambres
Prix plateau : 169 000 € HAI
Prix fini : 139 000 € HAI FINI - Annonce rédigée et publiée par un Agent Mandataire -
Voir plus

Bien en copropriété. Nombre de lots : 7.
Honoraires d'agence de 3.1% à la charge de l'acquéreur
Barème des honoraires
DPE
A
B
C
D
E
F
G
GES
A
B
C
D
E
F
G

Prêt immobilier

Vous souhaitez connaître votre capacité d’emprunt et trouver le meilleur crédit immobilier ?
Réaliser une simulation gratuite

Appartement à BAGNERES-DE-BIGORRE
Appartement à BAGNERES-DE-BIGORRE
Appartement à BAGNERES-DE-BIGORRE
Appartement à BAGNERES-DE-BIGORRE
Ce site est protégé par reCAPTCHA la Politique de confidentialité et les Conditions d’utilisation de Google s’appliquent.
Obtenir un prêt immobilier au meilleur taux ?

En poursuivant votre navigation sans modifier vos paramètres, vous acceptez l'utilisation de cookies susceptibles de réaliser des statistiques de visite. Cliquez ici pour plus d'informations