Pas de commerce à Treal pour le moment. Découvrez dès maintenant les commerces dans le département Morbihan.
Bénéficiez des services de nos partenaires locaux soigneusement sélectionnés
pour vous accompagner dans votre parcours d'achat immobilier

Terrain 1060m² à aix-en-provence

— Aix-En-Provence 13090 —
690 000 €
1 060 m²

Nos partenaires locaux
Baisse de prix _Une opportunité rare à saisir immédiatement.

Situé dans l’un des quartiers résidentiels les plus recherchés d’Aix-en-Provence, à seulement quelques minutes du centre-ville, ce terrain plat et viabilisé de 1 060 m² offre le cadre idéal pour un projet de construction.

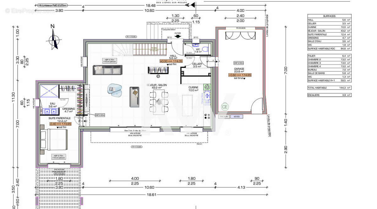
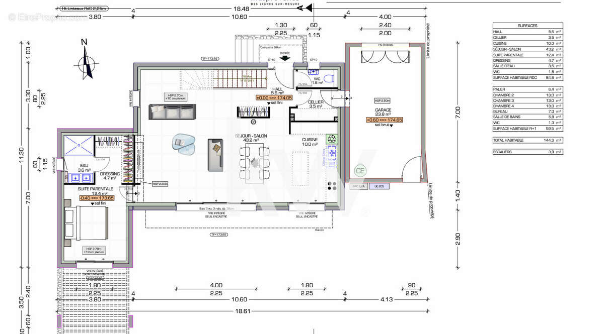
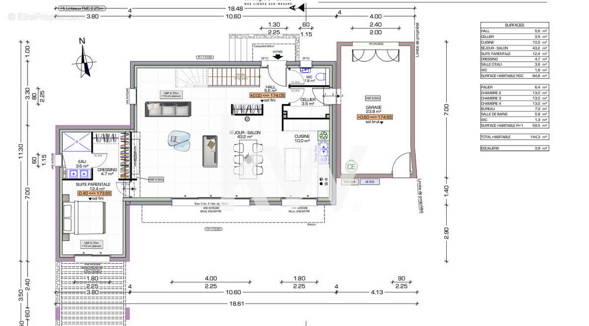
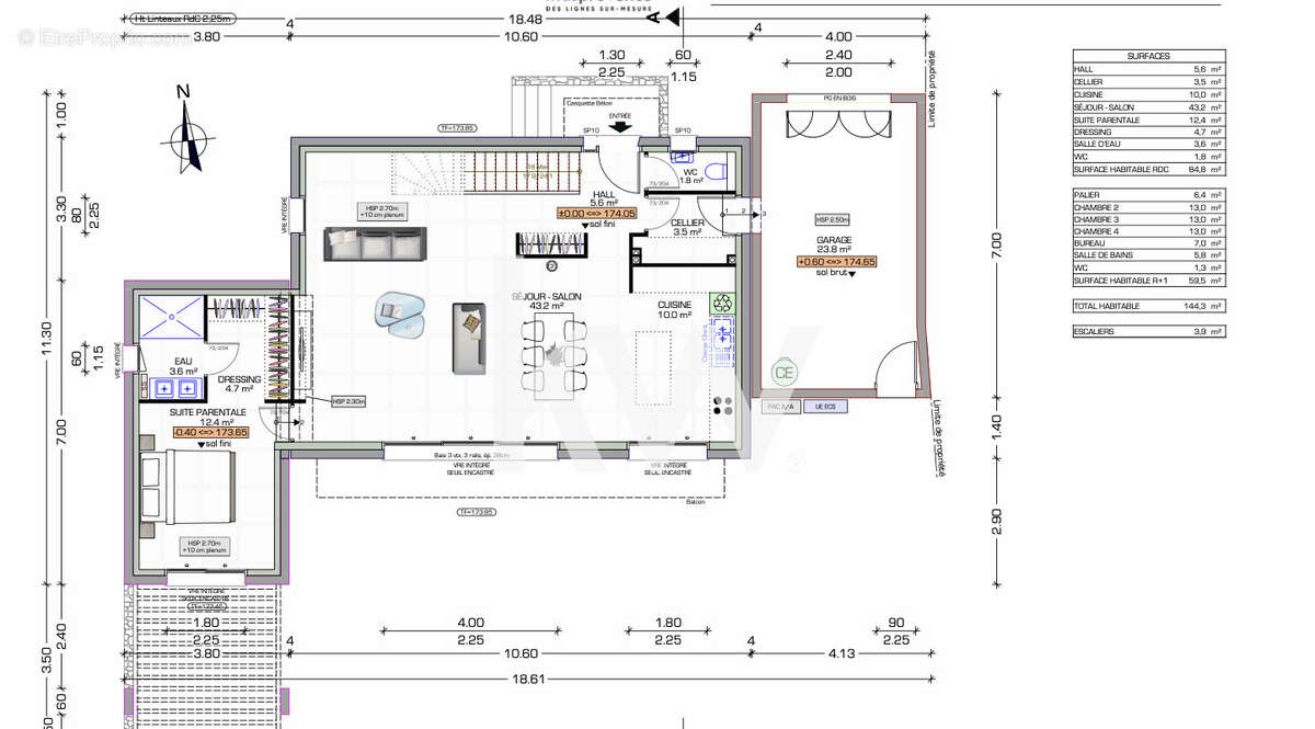
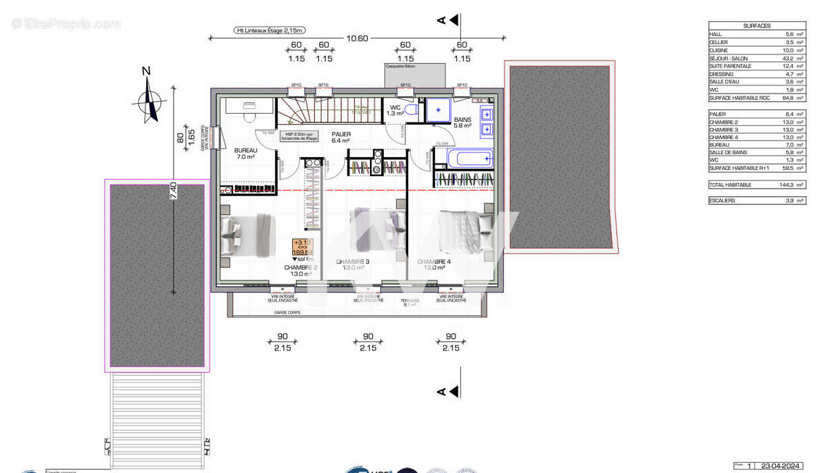
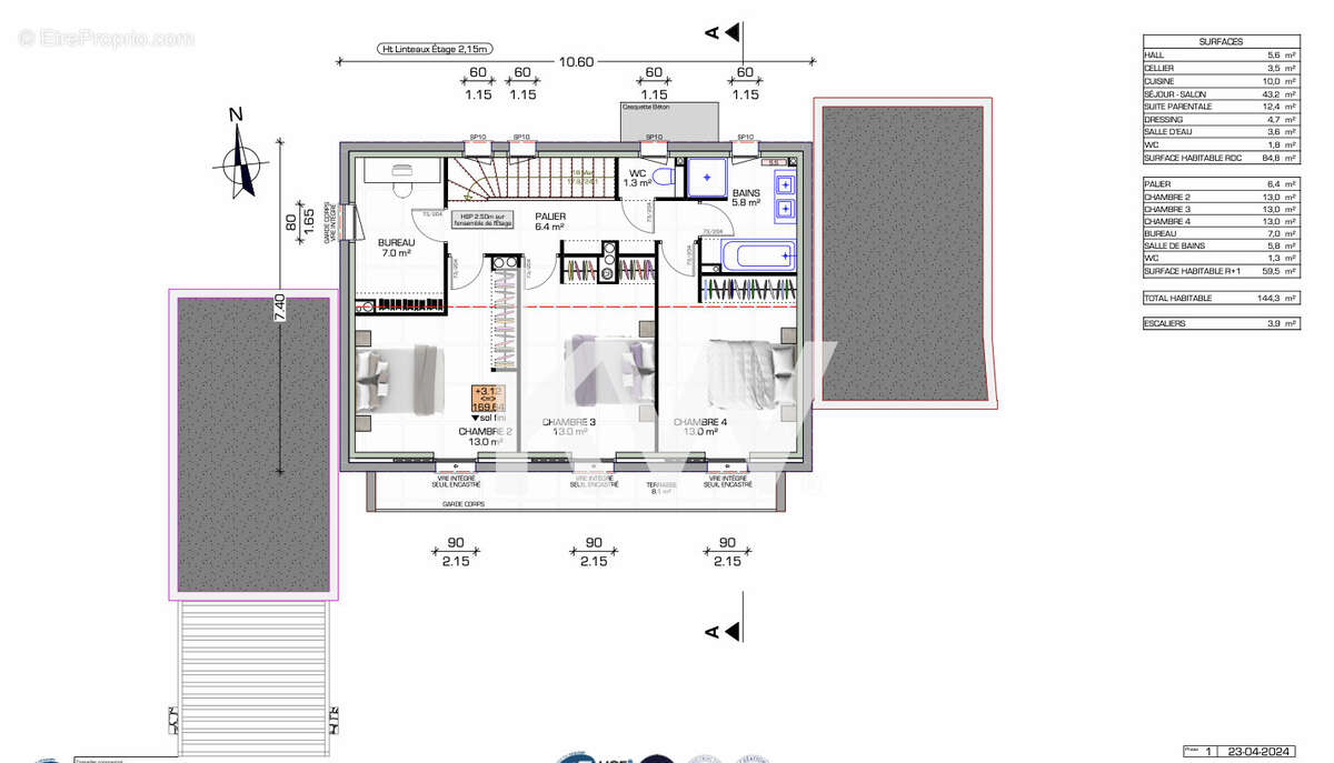
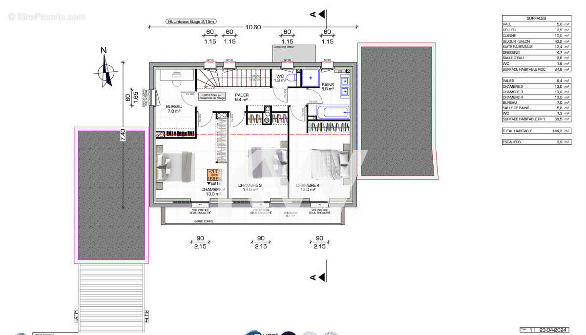
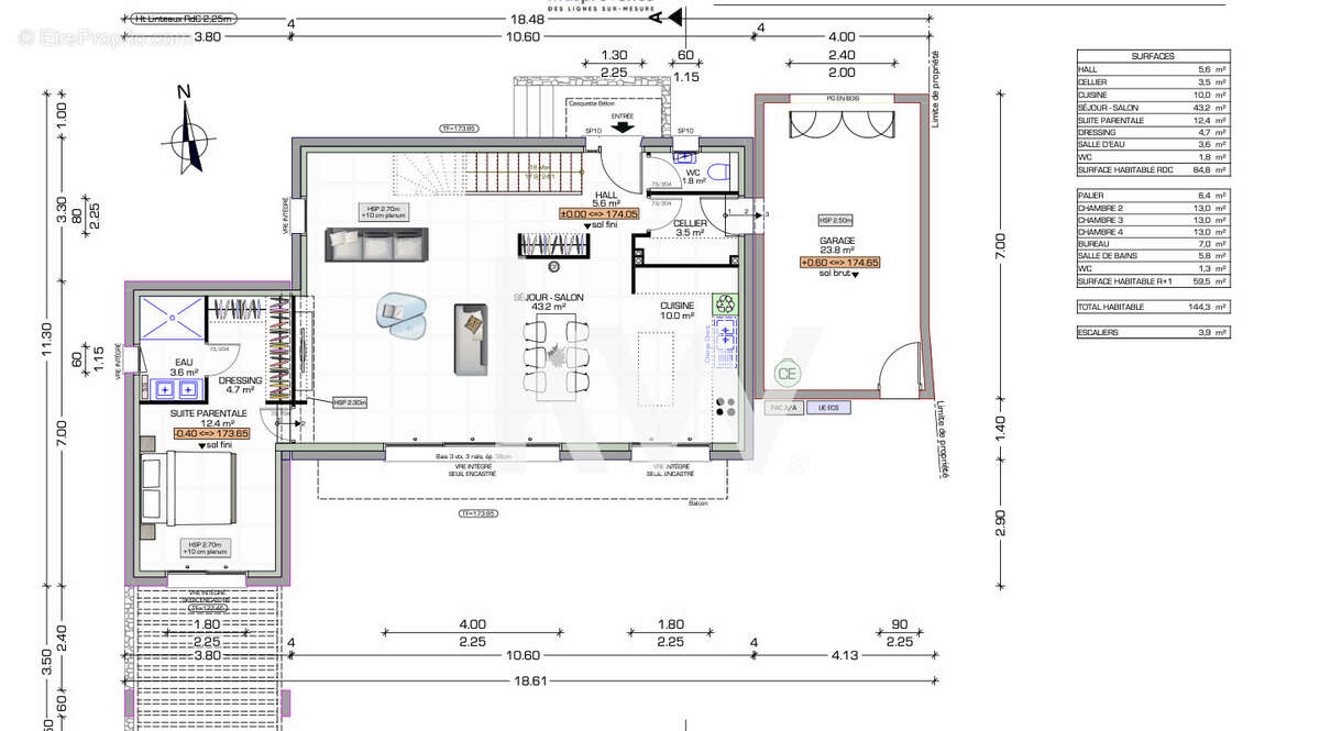
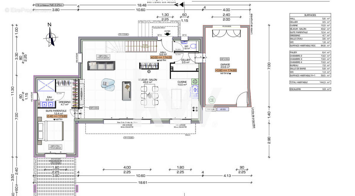
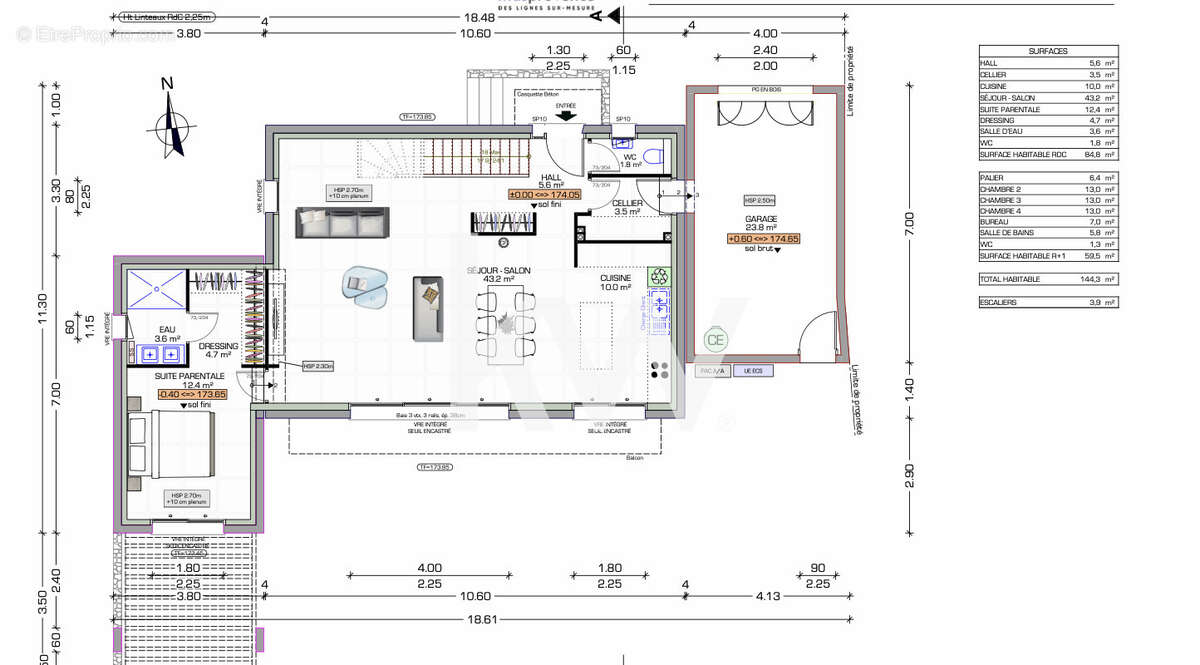
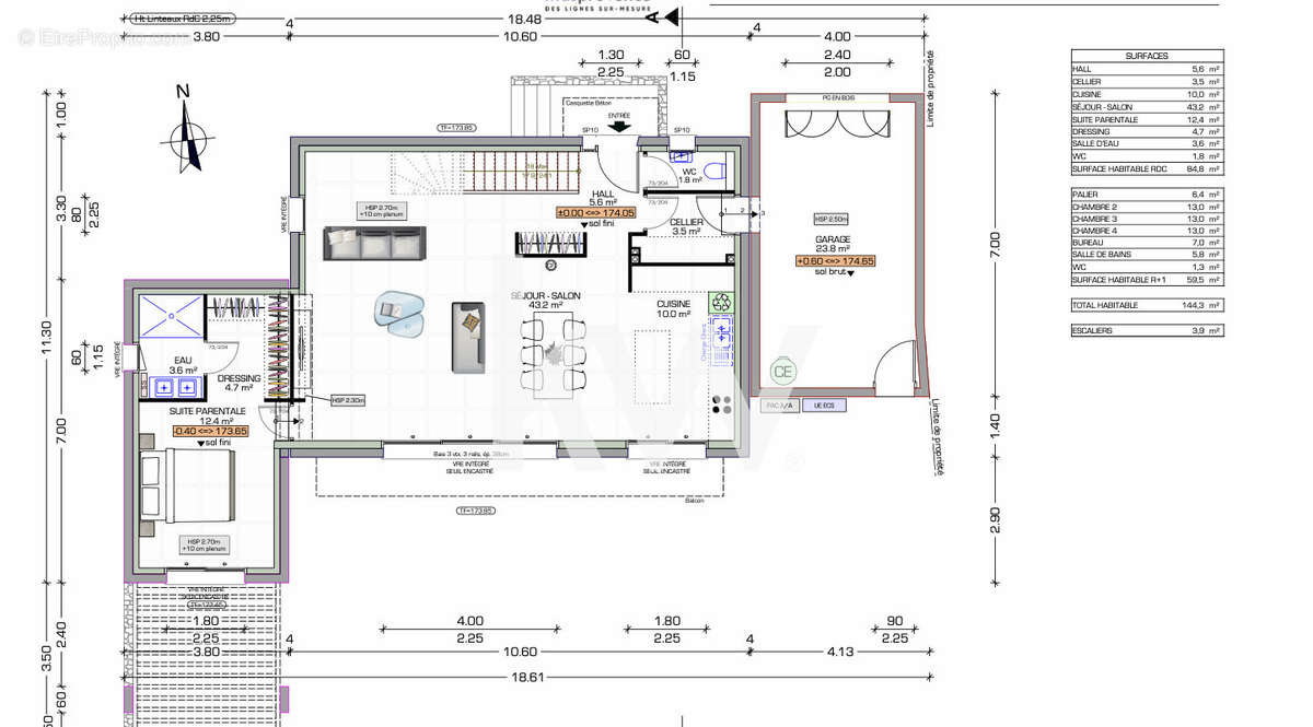
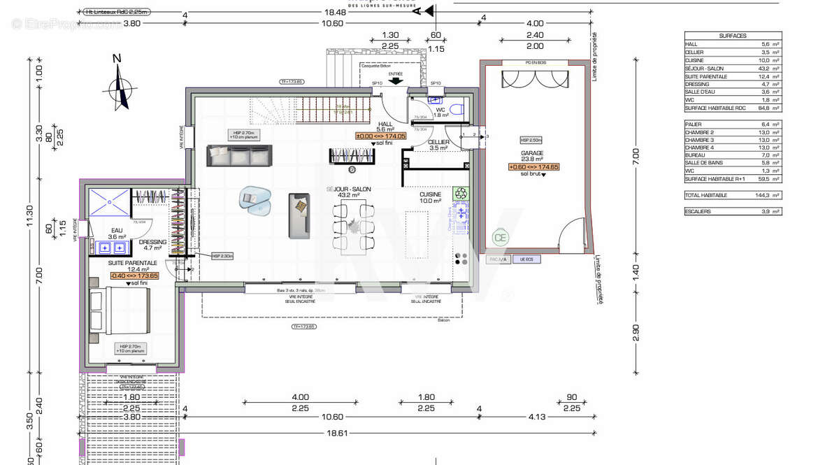
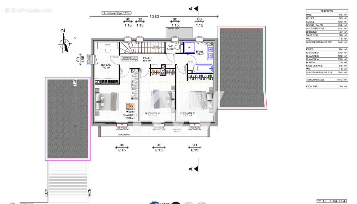
Le terrain est vendu avec un permis de construire purgé de tout recours pour une maison familiale contemporaine de 144,3 m² habitables, complétée par un garage de 23,8 m². Vous avez ainsi la possibilité de démarrer les travaux sans délai et en toute sécurité.


Le projet validé
• Surface habitable totale de 144,3 m²
• Rez-de-chaussée de 84,8 m² et étage de 59,5 m²
• Quatre chambres dont une suite parentale en rez-de-chaussée avec dressing et salle d’eau
• Séjour de 43 m² avec cuisine ouverte et cellier attenant
• Salle de bains, deux WC
• Garage indépendant de 24 m²


Les atouts de ce bien

Le terrain est plat, viabilisé et bénéficie d’une excellente exposition.
Le permis de construire déjà purgé vous assure un gain de temps et une sécurité juridique.
Le quartier est calme, verdoyant et à proximité immédiate des commodités.
Vous pouvez lancer la construction dès la signature.
Le projet est optimisé pour une vie familiale harmonieuse ou un investissement solide.


Emplacement privilégié – Aix-en-Provence

Un environnement préservé et paisible, à deux pas du centre-ville et de ses services.

Pour plus d’informations ou pour organiser une visite, contactez :
Sophie Prades (EI) – [Coordonnées masquées]
RSAC 899 336 150 – Aix-en-Provence

Pour consulter les risques liés à ce bien, rendez-vous sur www.georisques.gouv.fr.


Les informations sur les risques auxquels ce bien est exposé sont disponibles sur le site Géorisques du gouvernement.
Voir plus

Référence: PRA19-2643-3
Honoraires d'agence de 3.4% à la charge de l'acquéreur
Barème des honoraires

Prêt immobilier

Vous souhaitez connaître votre capacité d’emprunt et trouver le meilleur crédit immobilier ?
Réaliser une simulation gratuite

Terrain à AIX-EN-PROVENCE
Terrain à AIX-EN-PROVENCE
Terrain à AIX-EN-PROVENCE
Terrain à AIX-EN-PROVENCE
Terrain à AIX-EN-PROVENCE
Terrain à AIX-EN-PROVENCE
Terrain à AIX-EN-PROVENCE
Terrain à AIX-EN-PROVENCE
Terrain à AIX-EN-PROVENCE
Terrain à AIX-EN-PROVENCE
Terrain à AIX-EN-PROVENCE
Terrain à AIX-EN-PROVENCE
Terrain à AIX-EN-PROVENCE
Terrain à AIX-EN-PROVENCE
Terrain à AIX-EN-PROVENCE
Terrain à AIX-EN-PROVENCE
Terrain à AIX-EN-PROVENCE
Terrain à AIX-EN-PROVENCE
Terrain à AIX-EN-PROVENCE
Terrain à AIX-EN-PROVENCE
Terrain à AIX-EN-PROVENCE
Terrain à AIX-EN-PROVENCE
Terrain à AIX-EN-PROVENCE
Terrain à AIX-EN-PROVENCE
Terrain à AIX-EN-PROVENCE
Terrain à AIX-EN-PROVENCE
Terrain à AIX-EN-PROVENCE
Terrain à AIX-EN-PROVENCE
Terrain à AIX-EN-PROVENCE
Terrain à AIX-EN-PROVENCE
Terrain à AIX-EN-PROVENCE
Terrain à AIX-EN-PROVENCE
Terrain à AIX-EN-PROVENCE
Terrain à AIX-EN-PROVENCE
Terrain à AIX-EN-PROVENCE
Terrain à AIX-EN-PROVENCE
Terrain à AIX-EN-PROVENCE
Terrain à AIX-EN-PROVENCE
Terrain à AIX-EN-PROVENCE
Terrain à AIX-EN-PROVENCE
Terrain à AIX-EN-PROVENCE
Terrain à AIX-EN-PROVENCE
Terrain à AIX-EN-PROVENCE
Terrain à AIX-EN-PROVENCE
Terrain à AIX-EN-PROVENCE
Terrain à AIX-EN-PROVENCE
Terrain à AIX-EN-PROVENCE
Terrain à AIX-EN-PROVENCE
Terrain à AIX-EN-PROVENCE
Terrain à AIX-EN-PROVENCE
Terrain à AIX-EN-PROVENCE
Terrain à AIX-EN-PROVENCE
Terrain à AIX-EN-PROVENCE
Terrain à AIX-EN-PROVENCE
Ce site est protégé par reCAPTCHA la Politique de confidentialité et les Conditions d’utilisation de Google s’appliquent.
Obtenir un prêt immobilier au meilleur taux ?

En poursuivant votre navigation sans modifier vos paramètres, vous acceptez l'utilisation de cookies susceptibles de réaliser des statistiques de visite. Cliquez ici pour plus d'informations