Bénéficiez des services de nos partenaires locaux soigneusement sélectionnés
pour vous accompagner dans votre parcours d'achat immobilier

Appartement 100m² à beblenheim

— Beblenheim 68980 —
n.c. €
101 m²
4 pièces
balcon/terrasseascenseur

Nos partenaires locaux
Le Domaine VINOSA, un havre de paix où la modernité se fond dans la nature.

Située dans un cadre paisible au pied des vignes, la résidence allie confort, modernité et nature pour un cadre de vie unique.

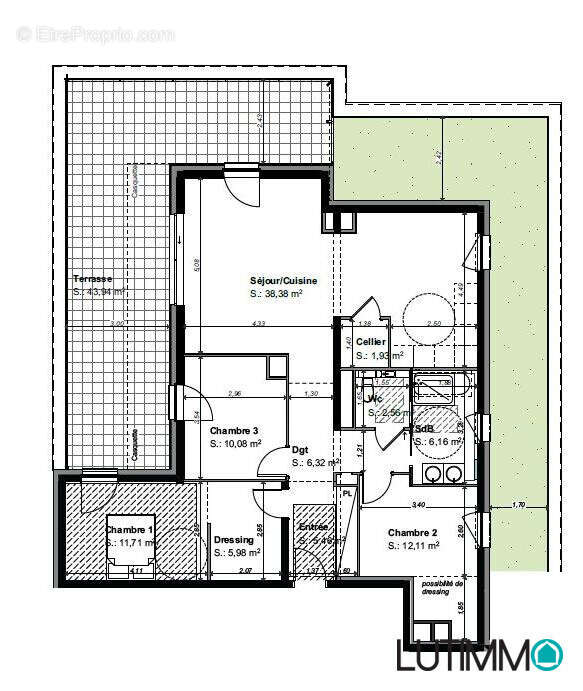
Découvrez ce magnifique appartement 4 pièces de 100 m² situé en attique. Il se compose d'un séjour avec cuisine ouverte de 38 m², d'un cellier, de 3 chambres spacieuses dont 1 chambre parentale avec dressing. L'appartement dispose également d'une salle de bain équipée et d'un WC séparé.
Ce logement lumineux bénéficie d'une splendide terrasse de 44 m², orientée ouest, idéale pour profiter des beaux jours.

Ces derniers respectent les normes RE2020, garantissant performance énergétique en été comme en hiver, ainsi que des équipements et matériaux de qualité.

La résidence dispose de garages fermés situés en sous-sol, équipés d'une prise de courant et d'un point lumineux pour plus de praticité ; ainsi que de parkings privatifs en extérieur.

Zoom sur nos prestations haut de gamme :

- Plancher chauffant.
- Volets roulants électriques, caissons intégrés.
- Isolation renforcée, gage d'économie et de confort acoustique.
- Résidence sécurisée avec visiophone, portes palières blindées anti-effractions et clôture sur l'ensemble du domaine.
- Carrelage 60x60cm dans les pièces à vivre, parquet stratifié dans les pièces de nuit.
- Salle de bain équipée : faïence toute hauteur, receveur de douche extra-plat, meuble vasque avec miroir et spot led, sèche serviette à lames plates.
- WC suspendu.
- Accessibilité personnes à mobilité réduite.
- Ascenseur depuis les garages en sous-sol.
- Espaces verts communs aménagés.

En outre, Beblenheim est un pittoresque village alsacien, situé au coeur des vignobles, à proximité de Colmar. Entouré de paysages verdoyants, il offre un cadre de vie paisible, tout en étant proche des attractions touristiques comme les villages de Riquewihr et Kaysersberg. Idéal pour les amoureux de la nature et du calme, Beblenheim combine charme et praticité.

Prix de vente TTC : 445 000€
Pas de frais d'agence / Frais de notaire réduits !

Offrez vous un appartement lumineux et moderne dans une résidence à taille humaine, idéale pour s'installer ou investir.

Ne manquez pas cette opportunité rare de vivre dans un lieu unique !

Pour plus d'informations, contactez nous dès aujourd'hui - [Coordonnées masquées] - [Coordonnées masquées]
LUTIMMO Agence immobilière à Sausheim (58 rue de la Hardt)
Retrouvez l'ensemble de nos biens et projets neufs en vente sur www.lutimmo.fr

Dans une copropriété de 15 lots. Aucune procédure n'est en cours. Non soumis au DPE. Les informations sur les risques auxquels ce bien est exposé sont disponibles sur le site Géorisques : georisques.gouv.fr.

Retrouvez l'annonce de l'agence immobilière LUTIMMO sur : https://www.lutimmo.fr/ref/VA3163
Voir plus

Référence: VA3163-LUTIMMO
Bien en copropriété. Nombre de lots : 15.
Honoraires à la charge de l'acquéreur.
Barème des honoraires

Prêt immobilier

Vous souhaitez connaître votre capacité d’emprunt et trouver le meilleur crédit immobilier ?
Réaliser une simulation gratuite

Appartement à BEBLENHEIM
Appartement à BEBLENHEIM
Appartement à BEBLENHEIM
Ce site est protégé par reCAPTCHA la Politique de confidentialité et les Conditions d’utilisation de Google s’appliquent.
Obtenir un prêt immobilier au meilleur taux ?

En poursuivant votre navigation sans modifier vos paramètres, vous acceptez l'utilisation de cookies susceptibles de réaliser des statistiques de visite. Cliquez ici pour plus d'informations