Bénéficiez des services de nos partenaires locaux soigneusement sélectionnés
pour vous accompagner dans votre parcours d'achat immobilier

Local commercial

— Cannes 06400 —
22 200 €
98 m²
44 pièces

Nos partenaires locaux
LOCATION PURE :

06400 / CANNES
Centre ville
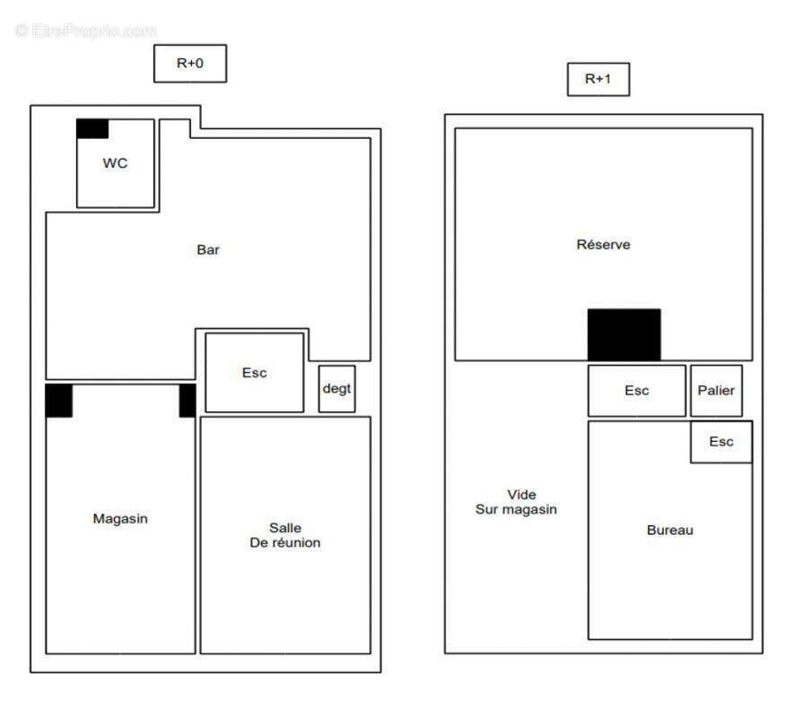
LOCAL COMMERCIAL sur 2 niveaux de 95 M2 sur rue passante et à proximité immédiate de la rue d'Antibes.

PAS DE DROIT AU BAIL - PAS DE PAS DE PORTE : Aucun frais à prévoir à l'entrée dans les locaux

LES CONDITIONS :

- LOYER annuel : 18 600 € HT soit 1550 € mensuel
- Provision sur charges : 500 € annuel
- taxe foncière charge preneur : 734 € annuel
- frais de rédaction du bail commercial : charge preneur

ACTIVITES POSSIBLES :

Ce local commercial est idéal pour l'exploitation de :
- activité de bureaux professionnels ( agence immobilière, architecte, designer, show room, comptable, avocat ... )
- activité de stockage et bureau pour un artisan
- cave à vin, épicerie, magasin....

Pas de nuisances, pas d'extraction, pas de restauration...

Notre agent commerce Franck PUCCETTI reste disponible 7/7 au [Coordonnées masquées] ou par mail : [Coordonnées masquées]
Les informations sur les risques auxquels ce bien est exposé sont disponibles sur le site Georisque : georisques. gouv. fr
Franck Puccetti - EI - est Agent Commercial mandataire en immobilier, immatriculé au Registre Spécial des Agents Commerciaux du Tribunal de Commerce de Antibes sous le n°502598634.
Siège social du mandant : effiCity, 48 avenue de Villiers - 75017 PARIS - Société par Actions Simplifiée, société au capital de 132 373,05 euros, immatriculée au RCS Paris 497 617 746 et titulaire de la Carte professionnelle CPI 75[Coordonnées masquées]02 025 - CCI Paris IDF - Caisse de Garantie : GALIAN Assurances 89 rue de la Boétie 75008 Paris
Voir plus

Référence: 183340
Honoraires d'agence de 19.35% à la charge de l'acquéreur
Barème des honoraires

Prêt immobilier

Vous souhaitez connaître votre capacité d’emprunt et trouver le meilleur crédit immobilier ?
Réaliser une simulation gratuite

Commerce à CANNES
Commerce à CANNES
Commerce à CANNES
Commerce à CANNES
Ce site est protégé par reCAPTCHA la Politique de confidentialité et les Conditions d’utilisation de Google s’appliquent.
Obtenir un prêt immobilier au meilleur taux ?

En poursuivant votre navigation sans modifier vos paramètres, vous acceptez l'utilisation de cookies susceptibles de réaliser des statistiques de visite. Cliquez ici pour plus d'informations