Bénéficiez des services de nos partenaires locaux soigneusement sélectionnés
pour vous accompagner dans votre parcours d'achat immobilier

Appartement 2 pièces 56 m2

— Grenoble 38000 —
105 000 €
56 m²
2 pièces

Nos partenaires locaux
DAVID FERNANDES vous propose à la vente en EXCLUSIVITÉ
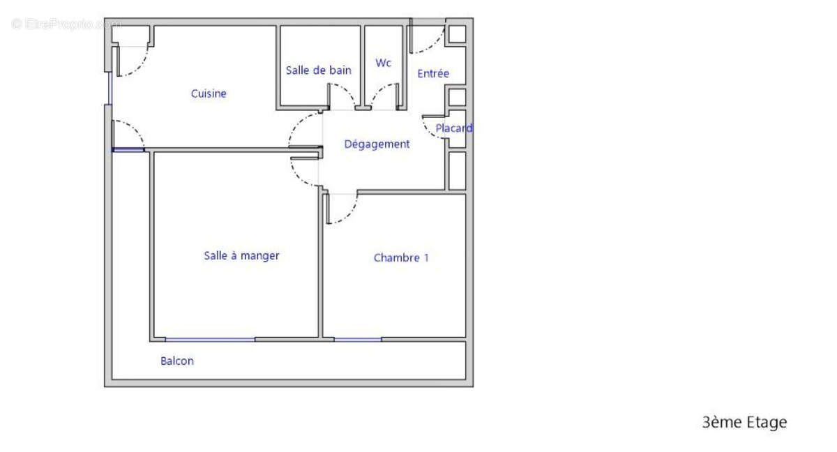
GRENOBLE Quartier Les Eaux Claires / Résidence de standing (1974)T2 56 m2 Balcon filant Cave 3? étage avec ascenseur

Situé dans le secteur des Eaux Claires, au sein d’une résidence calme, bien entretenue et sécurisée, avec grands espaces verts, découvrez cet appartement T2 lumineux de 56 m2, au 3 eme étage avec ascenseur.
Il se compose de :


Un séjour de 18 m2 avec parquet massif et grande baie vitrée donnant sur le balcon


Une cuisine indépendante de 12 m2, spacieuse, avec possibilité d’aménagement moderne (ouverture partielle possible)


Une chambre de 15 m2, parquet massif


Salle de bains + WC séparés


Balcon filant desservant séjour et cuisine


Une cave privative



À SAVOIR


Tableau électrique en bon état


Parquet massif en excellent état, véritable plus pour le cachet


Chauffage individuel gaz


Travaux à prévoir


--- Gros potentiel pour créer un T2 moderne avec grande pièce de vie.

COPROPRIÉTÉ


Résidence avec espaces verts et parking collectif


Hall et parties communes entretenus


Façades refaites en 2011, donc aucun gros travaux en cours


Charges de copropriété : 285 € / trimestre (? 95 € / mois)Taxe foncière : 1 659 €

IDÉAL POUR :


Un primo-accédant


Une résidence principale avec personnalisation


Un investissement locatif (secteur très demandé)



Photos envoyées sur demande après échange téléphonique.

CONTACT / VISITE
David FERNANDES Conseiller immobilier Réseau EXPERTIMO--[Coordonnées masquées]--david.fernandes@expertimo.fr1 allée des Centaurées 38240 MeylanRSAC 881 948 210 Grenoble
Estimation gratuite sous 48h Accompagnement complet jusqu’à l’acte notarié

Cette annonce vous est proposée par FERNANDES David - EI - NoRSAC: 881 948 210, Enregistré à Greffe du tribunal de commerce de GRENOBLE - Annonce rédigée et publiée par un Agent Mandataire -
Voir plus

Bien en copropriété. Nombre de lots : 310. Charges de copropriété : 1140 €.
Barème des honoraires
DPE
A
B
C
D
E
F
G
GES
A
B
C
D
E
F
G

Prêt immobilier

Vous souhaitez connaître votre capacité d’emprunt et trouver le meilleur crédit immobilier ?
Réaliser une simulation gratuite

Appartement à GRENOBLE
Appartement à GRENOBLE
Appartement à GRENOBLE
Appartement à GRENOBLE
Appartement à GRENOBLE
Appartement à GRENOBLE
Appartement à GRENOBLE
Appartement à GRENOBLE
Ce site est protégé par reCAPTCHA la Politique de confidentialité et les Conditions d’utilisation de Google s’appliquent.
Obtenir un prêt immobilier au meilleur taux ?

En poursuivant votre navigation sans modifier vos paramètres, vous acceptez l'utilisation de cookies susceptibles de réaliser des statistiques de visite. Cliquez ici pour plus d'informations