Bénéficiez des services de nos partenaires locaux soigneusement sélectionnés
pour vous accompagner dans votre parcours d'achat immobilier

Maison 134m² à rogny-les-sept-ecluses

— Rogny-Les-Sept-Ecluses 89220 —
187 000 €
134 m² / 2 716 m²
6 pièces
parkingbalcon/terrassejardin

Nos partenaires locaux
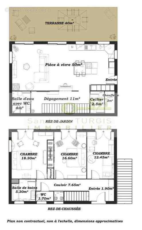
ROGNY LES SEPT ECLUSES ! À moins de 2h de Paris. Située dans ce charmant village traversé par le canal de Briare découvrez cette belle et confortable maison d'environ 134 m² nichée sur son beau terrain avec vue dégagée sur le jardin et un bois offrant au rez-de-jardin : entrée sur une vaste et lumineuse pièce à vivre d'environ 50 m² avec son espace cuisine aménagée / équipée (four, plaque, hotte, lave-vaisselle, réfrigérateur) et son poêle à bois, dégagement, cellier / buanderie, chaufferie, salle d'eau avec WC, puis au rez-de-chaussée : entrée, couloir desservant 3 chambres dont 2 avec placards, salle de bains et WC séparés. À l'extérieur : dépendance attenante, terrasse avec barbecue, bûcher et abri de jardin. Le tout sur un beau jardin clos d'environ 2720 m² avec verger (pommier, cerisier, prunier, pêcher, poirier. ) et espace potager. Les atouts : double vitrage PVC avec volets roulants manuels, isolation des combles récente et pompe à chaleur vous assure un confort thermique indéniable ! Reliée au tout à l'égout. N'hésitez plus pour avoir des informations complémentaires ou prendre un rendez-vous de visite à contacter l'agence. Visite virtuelle offerte ! 'Les informations sur les risques auxquels ce bien est exposé sont disponibles sur le site Géorisques http://www.georisques.gouv.fr'.Informations LOI ALUR : Honoraires charge vendeur. (gedeon_51671_30753112)
Voir plus

Référence: AG423-1454
Honoraires à la charge du vendeur.
DPE
A
B
C
D
E
F
G
GES
A
B
C
D
E
F
G

Prêt immobilier

Vous souhaitez connaître votre capacité d’emprunt et trouver le meilleur crédit immobilier ?
Réaliser une simulation gratuite

Photo 1 - Maison à ROGNY-LES-SEPT-ECLUSES
Photo 1
Photo 2 - Maison à ROGNY-LES-SEPT-ECLUSES
Photo 2
Photo 3 - Maison à ROGNY-LES-SEPT-ECLUSES
Photo 3
Photo 4 - Maison à ROGNY-LES-SEPT-ECLUSES
Photo 4
Photo 5 - Maison à ROGNY-LES-SEPT-ECLUSES
Photo 5
Photo 6 - Maison à ROGNY-LES-SEPT-ECLUSES
Photo 6
Photo 7 - Maison à ROGNY-LES-SEPT-ECLUSES
Photo 7
Photo 8 - Maison à ROGNY-LES-SEPT-ECLUSES
Photo 8
Photo 9 - Maison à ROGNY-LES-SEPT-ECLUSES
Photo 9
Ce site est protégé par reCAPTCHA la Politique de confidentialité et les Conditions d’utilisation de Google s’appliquent.
Obtenir un prêt immobilier au meilleur taux ?

En poursuivant votre navigation sans modifier vos paramètres, vous acceptez l'utilisation de cookies susceptibles de réaliser des statistiques de visite. Cliquez ici pour plus d'informations