Bénéficiez des services de nos partenaires locaux soigneusement sélectionnés
pour vous accompagner dans votre parcours d'achat immobilier

À vendre – appartement t3 à nîmes, quartier beausoleil

— Nimes 30000 —
239 000 €
56 m²
3 pièces
balcon/terrasseascenseur

Nos partenaires locaux
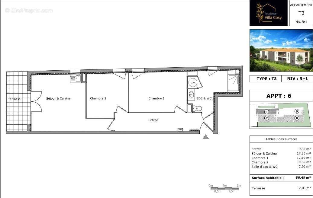
1894 - L'immobilier vous propose de découvrir dans cette magnifIque résidence "Villa Cosy", cet appartement T3 de 56,45m², exposé à lOuest, offrant une belle luminosité.
Entrée : 9,30 m2
Séjour/Cuisine : 17,80 m2
Chambre 1 : 12,80 m2
Chambre 2 : 9,35 m2
Salle d'eau & WC : 7,90 m2
Terrasse : 7 m2

Estimation du loyer : 750 € / mois (idéal pour un investissement locatif).
Possibilité d'acquérir un parking aérien privé pour 10 000 € supplémentaires.

Une adresse d'exception dans l'un des quartiers les plus prisés de Nîmes, Beausoleil.
Cette résidence intimiste, parfaitement intégrée à son environnement, vous offre un cadre de vie privilégié alliant modernité, confort et sérénité.

Caractéristiques de la résidence :
- Petite copropriété à taille humaine, composée de 9 logements seulement répartis sur un unique étage avec ascenseur spécialement conçu pour un accès facile à tous les espaces
- Résidence totalement adaptée aux personnes à mobilité réduite (PMR)
- Loggias spacieuses pour profiter pleinement des repas en extérieur.
- Prestations de standing et finitions soignées, intégrant les dernières avancées technologiques.
- Résidence entièrement sécurisée : accès via portail automatique, système Intratone, et parkings privatifs.

Un emplacement idéal :
Située dans le quartier Beausoleil, vous bénéficiez d'un environnement calme et agréable tout en restant proche des commodités : commerces, écoles, transports et axes principaux.

Cette résidence combine parfaitement le confort d'un habitat moderne, un cadre de vie paisible et un emplacement de premier choix. L'accessibilité totale pour les personnes à mobilité réduite en fait également un bien rare sur le marché.

Ne laissez pas passer cette opportunité unique à Nîmes !
Contactez-nous dès aujourd'hui pour plus d'informations ou pour organiser une visite personnalisée.

Honoraires à charge vendeur
Contact CLEMENT Catherine tel [Coordonnées masquées]
Agent commercial en immobilier enregistré au RSAC du greffe de Nîmes sous le numéro.749896429 titulaire de la carte de démarchage immobilier pour le compte de la société 1894-L'immobilier.
La présente annonce a été rédigée sous la responsabilité éditoriale de l'agent commercial en contact

Les informations sur les risques auxquels ce bien est exposé sont disponibles sur le site Géorisques : https://www.georisques.gouv.fr/

Selon l'article L.561.5 du Code Monétaire et Financier, pour l'organisation de la visite, la présentation d'une pièce d'identité vous sera demandée.
Référence agence : 2026
Voir plus

Référence: GUCG-352-ZZ6
Bien en copropriété. Nombre de lots : 14.
Honoraires à la charge du vendeur.
DPE
A
B
C
D
E
F
G
GES
A
B
C
D
E
F
G

Prêt immobilier

Vous souhaitez connaître votre capacité d’emprunt et trouver le meilleur crédit immobilier ?
Réaliser une simulation gratuite

Appartement à NIMES
Appartement à NIMES
Appartement à NIMES
Appartement à NIMES
Appartement à NIMES
Ce site est protégé par reCAPTCHA la Politique de confidentialité et les Conditions d’utilisation de Google s’appliquent.
Obtenir un prêt immobilier au meilleur taux ?

En poursuivant votre navigation sans modifier vos paramètres, vous acceptez l'utilisation de cookies susceptibles de réaliser des statistiques de visite. Cliquez ici pour plus d'informations