Bénéficiez des services de nos partenaires locaux soigneusement sélectionnés
pour vous accompagner dans votre parcours d'achat immobilier

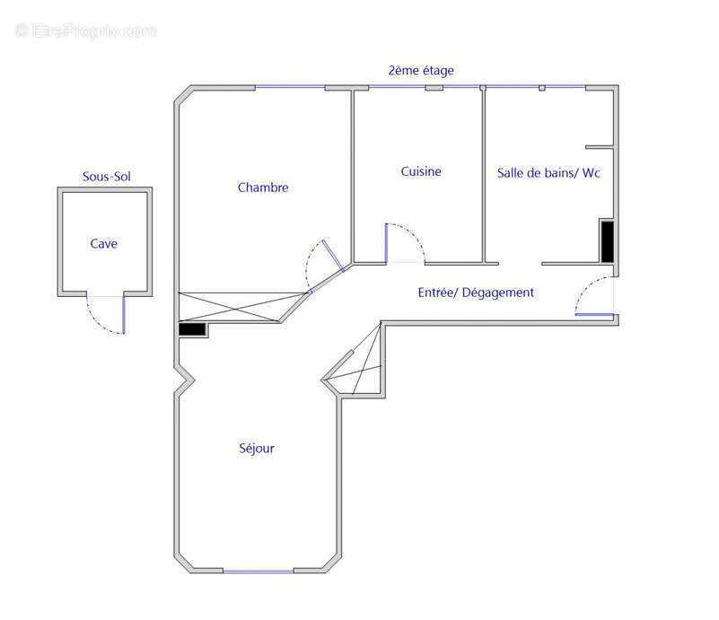
Courbevoie- 2 pièces - 48m2 - calme et lumineux !

— Courbevoie 92400 —
275 000 €
48 m²
2 pièces

Nos partenaires locaux
République - Europe - proches de toutes commodités (commerces, transports...), dans une résidence 30's sécurisée avec gardiennage, au 2ème étage avec ascenseur, 2 pièces traversant de 48m2. Un entrée, un grand séjour de 20m2, une cuisine séparée, une chambre avec placard au calme orientée cour intérieure, une salle de bains avec WC. Une cave complète ce bien. Chauffage collectif. Prévoir rénovation. Beaux volumes, idéal premier achat !

Référence: 291
Bien en copropriété. Nombre de lots : 200. Charges de copropriété : 1900 €.
Barème des honoraires
DPE
A
B
C
D
E
F
G
GES
A
B
C
D
E
F
G

Prêt immobilier

Vous souhaitez connaître votre capacité d’emprunt et trouver le meilleur crédit immobilier ?
Réaliser une simulation gratuite

Appartement à COURBEVOIE
Appartement à COURBEVOIE
Appartement à COURBEVOIE
Appartement à COURBEVOIE
Appartement à COURBEVOIE
Appartement à COURBEVOIE
Appartement à COURBEVOIE
Ce site est protégé par reCAPTCHA la Politique de confidentialité et les Conditions d’utilisation de Google s’appliquent.
Obtenir un prêt immobilier au meilleur taux ?

En poursuivant votre navigation sans modifier vos paramètres, vous acceptez l'utilisation de cookies susceptibles de réaliser des statistiques de visite. Cliquez ici pour plus d'informations