Maison 7 pièces 230m2 - miremont

— Miremont 31190 —
211 000 €
230 m² / 705 m²
7 pièces
parkingjardin

Maison en cours de construction Hors d’Eau / Hors d’Air
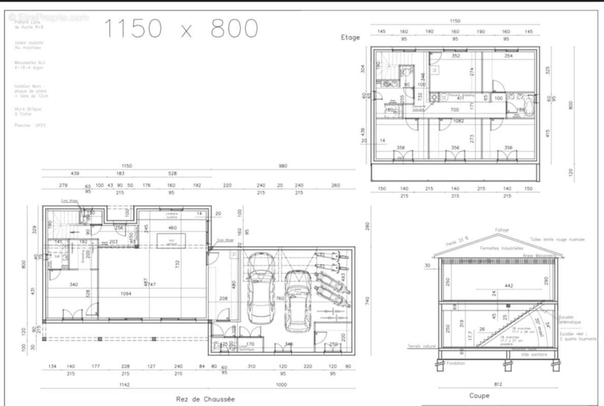
Vous recherchez une maison spacieuse, à personnaliser selon vos envies ? Découvrez cette villa de 230 m2, implantée sur une parcelle de 705 m2.
Les travaux de gros œuvre sont déjà réalisés : murs, toiture, menuiseries, piscine et terrasse en béton.
La maison se divise en 3 espaces:
- Un étage de 80m2 dans lequel il avait été imaginé 3 chambres, une salle de jeux et une salle de sport ainsi qu'une salle de bains.
- Un rez-de-chaussé de 80m2 avec salon/séjour, cuisine et suite parentale.
- Un espace garage de 70m2 dans la continuité du rez-de-chaussée qui permet une adapation à votre goût.

Les points forts du bien :
- Maison très lumineuse, grandes baies vitrées et orientation Sud-Ouest.
- Piscine maçonnée à finaliser
- Volumes généreux pour une vie de famille agréable.
- Garage double : avec deux portes, parfait pour véhicules, motos ou espace de rangement.
- Construction neuve à personnaliser selon vos goûts (revêtements, équipements intérieurs…)

N'hésitez pas à nous contacter pour programmer une visite et découvrir ce bien.
Voir plus

Référence: 806
Honoraires à la charge du vendeur.

Prêt immobilier

Vous souhaitez connaître votre capacité d’emprunt et trouver le meilleur crédit immobilier ?
Réaliser une simulation gratuite

Maison à MIREMONT
Maison à MIREMONT
Maison à MIREMONT
Maison à MIREMONT
Maison à MIREMONT
Maison à MIREMONT
Maison à MIREMONT
Ce site est protégé par reCAPTCHA la Politique de confidentialité et les Conditions d’utilisation de Google s’appliquent.
Obtenir un prêt immobilier au meilleur taux ?

En poursuivant votre navigation sans modifier vos paramètres, vous acceptez l'utilisation de cookies susceptibles de réaliser des statistiques de visite. Cliquez ici pour plus d'informations