Bénéficiez des services de nos partenaires locaux soigneusement sélectionnés
pour vous accompagner dans votre parcours d'achat immobilier

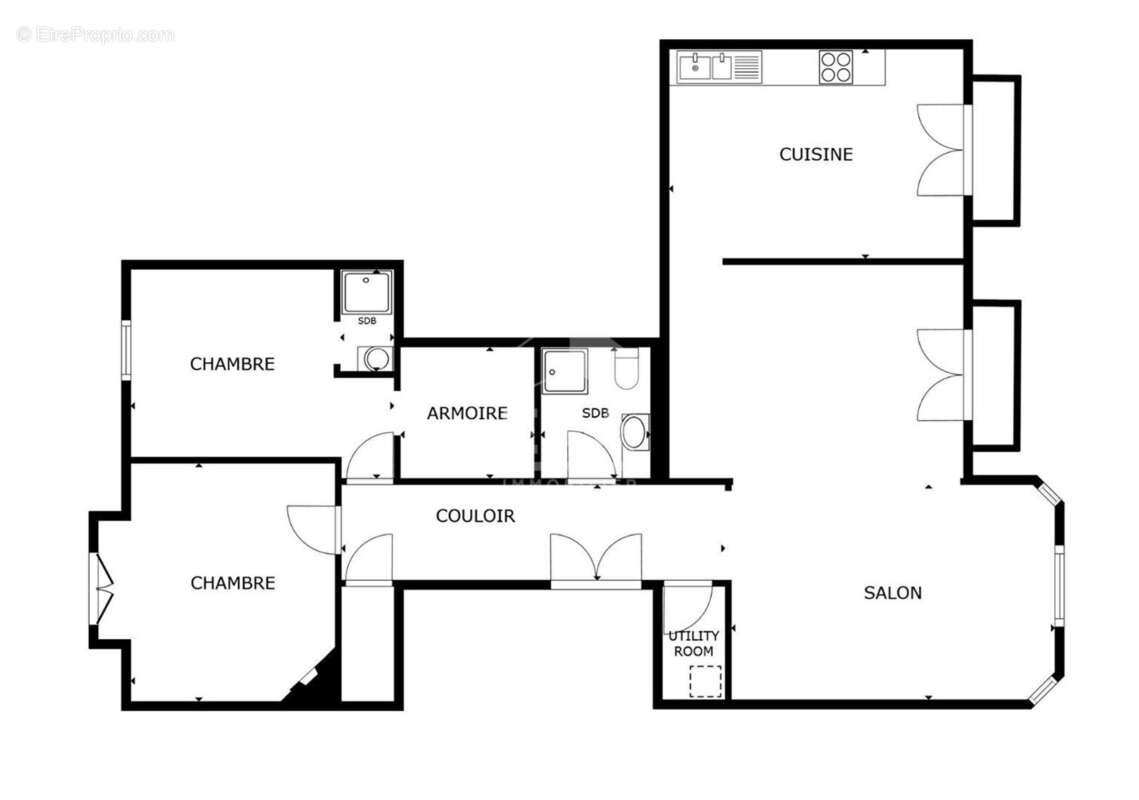
Appartement 101m² à nice

— Nice 06000 —
799 000 €
101 m²
4 pièces

Nos partenaires locaux
NICE - FLEURS : En plein coeur du quartier des Fleurs, dans une belle résidence Bourgeoise « LA MAISON AUX ROSES », JOLI 3/4 PIÈCES TRAVERSANT.
Il se compose d'une entrée, d'un joli séjour avec bow-window, d'une belle cuisine indépendante aménagée et équipée, de deux grandes chambres, dont une suite parentale avec sa propre salle d'eau et un dressing, de nombreux rangements, d'un balcon et d'une salle d'eau avec WC.
L'appartement est en parfait état, offrant de très beaux volumes. Il est traversant Sud/Nord, lumineux et calme. Belle hauteur sous plafond, moulures, parquet massif et beaucoup de cachet avec un parfait mélange de style classique et moderne.
Une cave complète ce magnifique bien.
Parking collectif au sein de la résidence.
À proximité de tous les commerces et commodités, à deux pas de la station de tramway et à quelques minutes de la Promenade des Anglais et des plages.
Contactez notre agence immobilière Nice Era Gambetta ; spécialiste de l'immobilier dans les quartiers Gambetta/Fleurs/Musiciens/Carré d'Or pour plus d'informations (vente, achat, estimation, conseil en immobilier...).
Contactez-nous au [Coordonnées masquées] ! 
L'Etat des Risques et Pollution peut être consulté sur https://www.georisques.gouv.fr
Voir plus

Référence: n884
DPE
A
B
C
D
E
F
G
GES
A
B
C
D
E
F
G

Prêt immobilier

Vous souhaitez connaître votre capacité d’emprunt et trouver le meilleur crédit immobilier ?
Réaliser une simulation gratuite

Appartement à NICE
Appartement à NICE
Appartement à NICE
Appartement à NICE
Appartement à NICE
Appartement à NICE
Appartement à NICE
Appartement à NICE
Appartement à NICE
Appartement à NICE
Appartement à NICE
Appartement à NICE
Appartement à NICE
Appartement à NICE
Appartement à NICE
Appartement à NICE
Appartement à NICE
Appartement à NICE
Ce site est protégé par reCAPTCHA la Politique de confidentialité et les Conditions d’utilisation de Google s’appliquent.
Obtenir un prêt immobilier au meilleur taux ?

En poursuivant votre navigation sans modifier vos paramètres, vous acceptez l'utilisation de cookies susceptibles de réaliser des statistiques de visite. Cliquez ici pour plus d'informations