Bénéficiez des services de nos partenaires locaux soigneusement sélectionnés
pour vous accompagner dans votre parcours d'achat immobilier

Maison 190m² à paris 19e arrondissement

— Paris-19e 75019 —
1 365 000 €
190 m²
6 pièces

Nos partenaires locaux
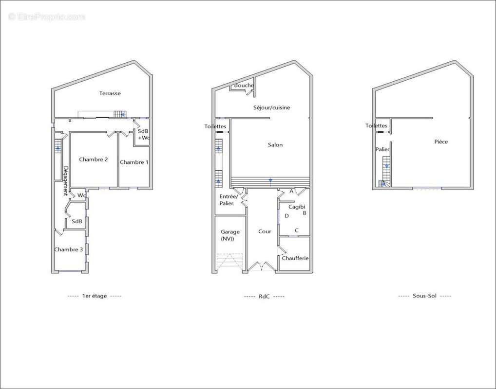
Très belle maison d'architecte traversante d'une superficie de 190m², située rue de Mouzaïa, à deux pas du parc des Buttes-Chaumont.
Nous vous proposons cette maison pleine de charme, calme et lumineuse, sans vis-à-vis avec sa belle exposition (SUD), sa belle hauteur sous plafond et ses grands volumes.
La maison se compose comme suit:

Au RdC : Entrée/Palier= 9.37m² , Salon= 24.53m² , Séjour/cuisine= 28.34m² , douche, Toilettes, Buanderie= 7.22m²

Au 1er étage: Dégagement= 13,47m², Chambre 1= 9,36m², Chambre 2= 11,25m², Chambre 3= 11,64m²,
Salle d'eau + Wc= 3,21m², Salle de bain= 6,27m², Toilettes.

Extérieur: Terrasse= 38m², Cour= 20,7m², Garage.

Au Sous-Sol: Palier, Pièce= 54,46m² , Toilettes.

Idéal pour une grande famille, une profession libérale ou encore un lieu de création de type atelier.
Contact: Hantat Fouad [Coordonnées masquées]
Voir plus

Référence: 3838

Prêt immobilier

Vous souhaitez connaître votre capacité d’emprunt et trouver le meilleur crédit immobilier ?
Réaliser une simulation gratuite

Maison à PARIS-19E
Maison à PARIS-19E
Maison à PARIS-19E
Maison à PARIS-19E
Maison à PARIS-19E
Maison à PARIS-19E
Maison à PARIS-19E
Maison à PARIS-19E
Maison à PARIS-19E
Maison à PARIS-19E
Maison à PARIS-19E
Maison à PARIS-19E
Maison à PARIS-19E
Maison à PARIS-19E
Maison à PARIS-19E
Maison à PARIS-19E
Maison à PARIS-19E
Maison à PARIS-19E
Ce site est protégé par reCAPTCHA la Politique de confidentialité et les Conditions d’utilisation de Google s’appliquent.
Obtenir un prêt immobilier au meilleur taux ?

En poursuivant votre navigation sans modifier vos paramètres, vous acceptez l'utilisation de cookies susceptibles de réaliser des statistiques de visite. Cliquez ici pour plus d'informations