Maison 105m² à faulquemont

— Faulquemont 57380 —
136 500 €
105 m² / 621 m²
5 pièces
parkingjardin

Découvrez cette charmante maison semi-mitoyenne située sur la commune de Faulquemont.
Construite sur un terrain de plus de 6 ares, vous pourrez profiter de ses arbres fruitiers, d'une petite dépendance pour votre stockage, mais également d'une petite terrasse couverte.
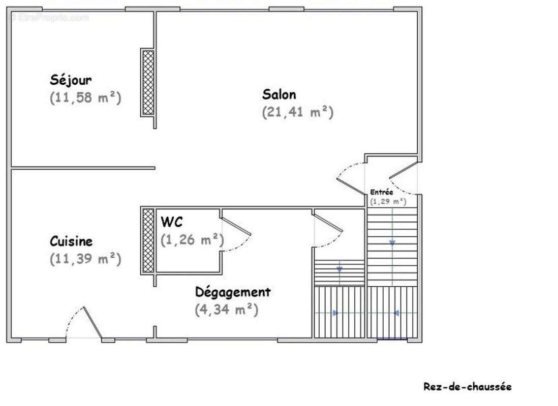
Au rez-de-chaussée, dès l'entrée vous trouverez une cuisine, une grande salle à manger avec une vue magnifique sur le jardin, ainsi qu'un salon, et pour compléter cet étage, un wc séparé.
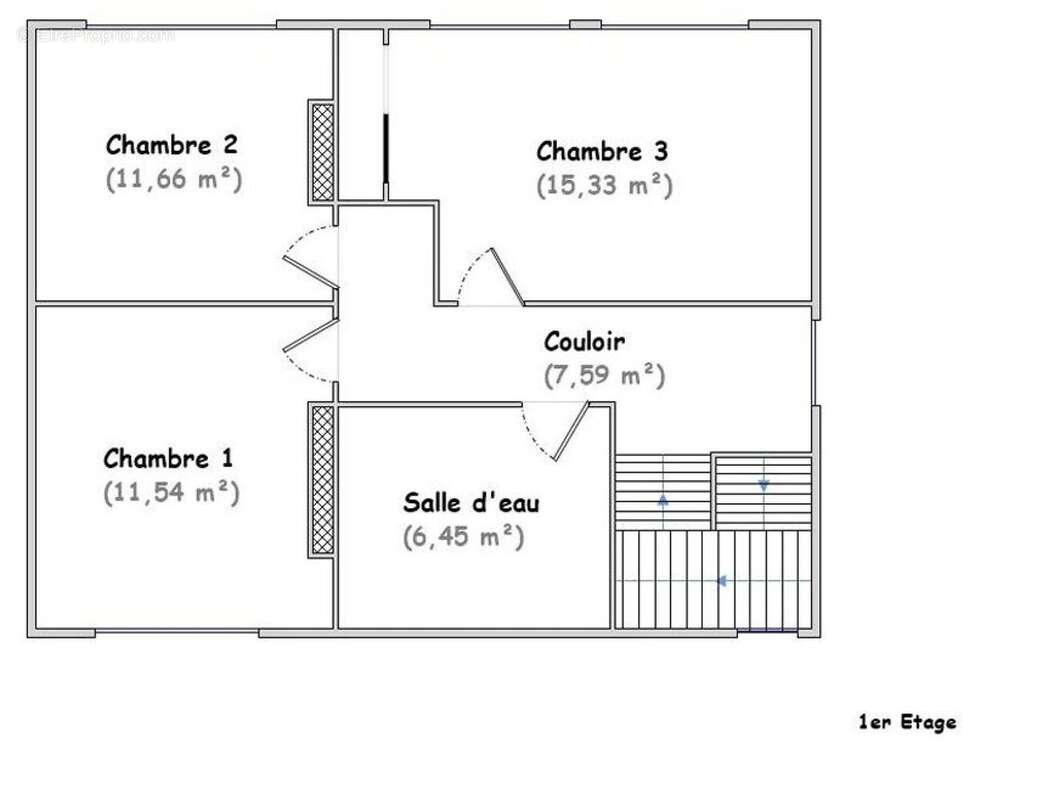
Au premier vous disposerez de 3 chambres spacieuses, ainsi qu'une salle d'eau.
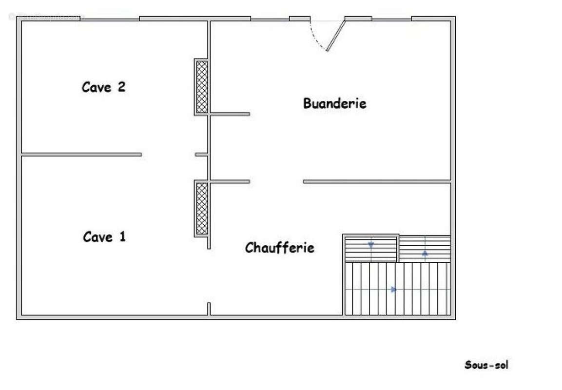
Le sous-sol composé de 2 pièces de stockage, comprend également une cuisine d'été donnant sur la terrasse.
Côté technique, la maison est équipée d'une pompe à chaleur air / eau (2022), ainsi qu'un ballon thermodynamique (2025).
N'attendez plus pour découvrir votre futur chez vous !

Les informations sur les risques auxquels ce bien est exposé sont disponibles sur le site Géorisques : www.georisques.gouv.fr
Prix de vente : 136 500 ¤
Honoraires charge vendeur

Contactez votre conseiller SAFTI : Coralie RIZZO, Tél. : [Coordonnées masquées], E-mail : [Coordonnées masquées] - EI - Agent commercial immatriculé au RSAC de METZ sous le numéro 920 347 796.
Informations LOI ALUR :
Honoraires charge vendeur. (gedeon_26118_31183525)
Voir plus

Référence: 1392691
Honoraires à la charge du vendeur.
Barème des honoraires
DPE
A
B
C
D
E
F
G
GES
A
B
C
D
E
F
G

Prêt immobilier

Vous souhaitez connaître votre capacité d’emprunt et trouver le meilleur crédit immobilier ?
Réaliser une simulation gratuite

Photo 1 - Maison à FAULQUEMONT
Photo 1
Photo 2 - Maison à FAULQUEMONT
Photo 2
Photo 3 - Maison à FAULQUEMONT
Photo 3
Photo 4 - Maison à FAULQUEMONT
Photo 4
Photo 5 - Maison à FAULQUEMONT
Photo 5
Photo 6 - Maison à FAULQUEMONT
Photo 6
Photo 7 - Maison à FAULQUEMONT
Photo 7
Photo 8 - Maison à FAULQUEMONT
Photo 8
Photo 9 - Maison à FAULQUEMONT
Photo 9
Ce site est protégé par reCAPTCHA la Politique de confidentialité et les Conditions d’utilisation de Google s’appliquent.
Obtenir un prêt immobilier au meilleur taux ?

En poursuivant votre navigation sans modifier vos paramètres, vous acceptez l'utilisation de cookies susceptibles de réaliser des statistiques de visite. Cliquez ici pour plus d'informations