Bénéficiez des services de nos partenaires locaux soigneusement sélectionnés
pour vous accompagner dans votre parcours d'achat immobilier

Cormelles le royal appartement a vendre deux pieces principales

— Cormelles-Le-Royal 14123 —
107 000 €
54 m²
2 pièces
parking

Nos partenaires locaux
APPARTEMENT A VENDRE PROCHE CAEN
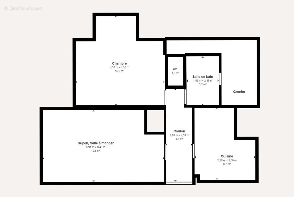
EN EXCLUSIVITE au Cabinet QUESNEE - F2 en dernier étage traversant sis à CORMELLES LE ROYAL, proche CAEN, rue des Verts Près, un bel appartement en très bon état général de 54m2 de 2 pièces principales situé au deuxième et dernier étage de la résidence, avec cave et un emplacement de parking privative.
Il est composé d'une entrée, une cuisine indépendante, un séjour lumineux, une salle de bains, un WC indépendant, une grande chambre avec placard et un grand grenier attenant.
Informations supplémentaires :

Chauffage collectif,
Classe consommation énergie : E , classe gaz à effet de serre : E,


Montant estimé des dépenses annuelles d'énergie: entre 1454€ et 1966€. Estimation réalisée à partir des prix énergétiques de référence des années 2021, 2022 et 2023.
Quote part annuelle des charges : 2716.73€. Lot no344, copropriété de 88 lots.

Prix du bien : 107 000€.
Les informations sur les risques auxquels ce bien est exposé sont disponibles sur le site georisques.gouv.fr.
Contactez nous afin d'organiser une visite au [Coordonnées masquées] ou au [Coordonnées masquées].
Voir plus

Référence: 587
Bien en copropriété. Nombre de lots : 88. Charges de copropriété : 2716 €.
Honoraires à la charge du vendeur.
Barème des honoraires
DPE
A
B
C
D
E
F
G
GES
A
B
C
D
E
F
G

Prêt immobilier

Vous souhaitez connaître votre capacité d’emprunt et trouver le meilleur crédit immobilier ?
Réaliser une simulation gratuite

Appartement à CORMELLES-LE-ROYAL
Appartement à CORMELLES-LE-ROYAL
Appartement à CORMELLES-LE-ROYAL
Appartement à CORMELLES-LE-ROYAL
Appartement à CORMELLES-LE-ROYAL
Appartement à CORMELLES-LE-ROYAL
Appartement à CORMELLES-LE-ROYAL
Appartement à CORMELLES-LE-ROYAL
Appartement à CORMELLES-LE-ROYAL
Appartement à CORMELLES-LE-ROYAL
Appartement à CORMELLES-LE-ROYAL
Ce site est protégé par reCAPTCHA la Politique de confidentialité et les Conditions d’utilisation de Google s’appliquent.
Obtenir un prêt immobilier au meilleur taux ?

En poursuivant votre navigation sans modifier vos paramètres, vous acceptez l'utilisation de cookies susceptibles de réaliser des statistiques de visite. Cliquez ici pour plus d'informations