Pas de commerce à Rosieres pour le moment. Découvrez dès maintenant les commerces dans le département Haute-Loire.
Bénéficiez des services de nos partenaires locaux soigneusement sélectionnés
pour vous accompagner dans votre parcours d'achat immobilier

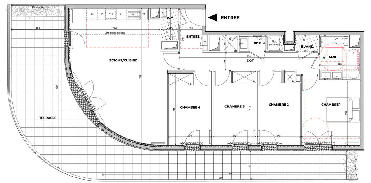
T5 avec grande terrasse, 2 parkings et cellier.

— Colombes 92700 —
615 000 €
98 m²
5 pièces
parkingbalcon/terrasse

Nos partenaires locaux
Découvrez ce T5 de près de 100m2 situé au 6ème étage, avec une terrasse de plus de 55m2 accessible depuis le séjour et toutes les chambres.
Il comprend un séjour de plus de 35m2, 4 chambres de 12,02 à 9,57m2, une salle de bain avec WC, une salle d’eau et un WC indépendant.
Une buanderie, 2 parkings en sous-sol et une cave complètent le bien.
Contactez-nous pour plus d'informations !
Parkings et cave inclus dans le prix (affiché en TVA réduite - éligibilité à confirmer).
Images d'illustration, non contractuelles.
Voir plus

Bien en copropriété. Nombre de lots : 213.
Honoraires à la charge du vendeur.
Barème des honoraires
DPE
A
B
C
D
E
F
G
GES
A
B
C
D
E
F
G

Prêt immobilier

Vous souhaitez connaître votre capacité d’emprunt et trouver le meilleur crédit immobilier ?
Réaliser une simulation gratuite

Appartement à COLOMBES
Appartement à COLOMBES
Appartement à COLOMBES
Appartement à COLOMBES
Ce site est protégé par reCAPTCHA la Politique de confidentialité et les Conditions d’utilisation de Google s’appliquent.
Obtenir un prêt immobilier au meilleur taux ?

En poursuivant votre navigation sans modifier vos paramètres, vous acceptez l'utilisation de cookies susceptibles de réaliser des statistiques de visite. Cliquez ici pour plus d'informations