Bénéficiez des services de nos partenaires locaux soigneusement sélectionnés
pour vous accompagner dans votre parcours d'achat immobilier

Maison 129m² à rosny-sous-bois

— Rosny-Sous-Bois 93110 —
440 000 €
129 m² / 344 m²
4 pièces
parking

Nos partenaires locaux
93110 ROSNY-SOUS-BOIS - MAISON SUR 3 NIVEAUX,263 m² DE SURFACE AU SOL - IDÉAL GRANDE FAMILLE ET INVESTISSEURS, 90 m² DE COMBLES AMÉNAGEABLES - SECTEUR DE LA COTES DES CHENES À 10 À PIED DU RER E, PARIS-ROSNY EN 16 MIN

Maison 4 pièces – 129,31 m² Carrez et 263,52 m² au sol – Jardin arboré plein sud – Quartier résidentiel recherché
efficity, l'agence qui estime votre bien en ligne, et Carolina Vallet vous présentent une maison au fort potentiel située dans l'un des secteurs les plus prisés de Rosny-sous-Bois.

Les points clés du bien : Un projet avec du potentiel
Cette maison nécessite des travaux de rénovation, ce qui représente une opportunité idéale pour les grandes famille en créant 1 espace de vie différent à chaque étage ou investisseurs pour la création de plusieurs lots.
Saisissez cette opportunité de créer une maison à votre image dans un quartier dynamique à deux pas de Paris.

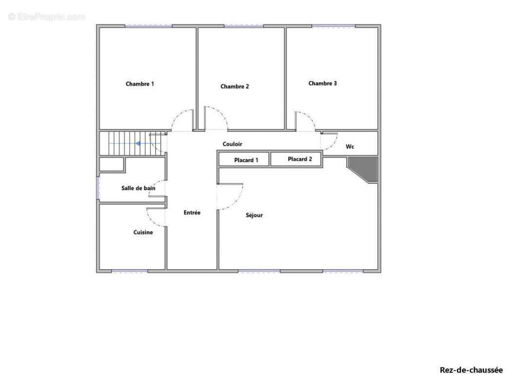
Surface habitable actuelle : 129,31 m² (Loi Carrez)
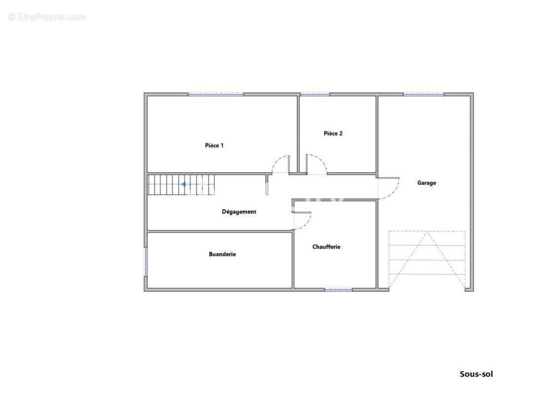
Rez-de-jardin 87,14 m²— facilement aménageable
Combles aménageables de 89,02 m² au sol, déjà équipés de Velux et accessibles par escalier escamotable
Jardin arboré exposé plein sud sur une parcelle de 344 m²
Parquet ancien, façade béton, toiture en tuiles à emboîtement
Exposition plein sud sur le jardin : lumière naturelle toute la journée

Emplacement et commodités à proximité :
9 min à pied de la gare Rosny-sous-Bois (RER E), liaison directe Paris Saint-Lazare en moins de 20 min
5 min à pied du Monoprix et commerces de proximité (boulangerie, pharmacie, etc.)
3 min à pied de l'école primaire Charles Perrault
10 min à pied du centre commercial Rosny 2
Accès rapide à l'A86 et A3 – idéal pour les trajets vers Paris

Aéroport Paris-Charles de Gaulle (CDG)
Distance routière : environ 22 km
Temps de trajet en voiture : environ 22 à 25 minutes, selon le trafic

Aéroport Paris-Orly (ORY)
Distance routière : environ 24 à 25 km
Temps de trajet en voiture : environ 24 à 37 minutes, selon le trafic

Disneyland Paris (Marne-la-Vallée – Chessy)
Distance routière : environ 26 à 29 km
Temps de trajet en voiture : environ 26 à 28 minutes

Total potentiel après aménagement (combles + Rez-de-jardin avec accès indépendant) : 263,52 m² au sol utilisables !

Contactez-nous dès maintenant pour organiser une visite et découvrir le potentiel de ce bien.
Les informations sur les risques auxquels ce bien est exposé sont disponibles sur le site Georisque : georisques. gouv. fr
Carolina Vallet - EI - est Agent Commercial mandataire en immobilier, immatriculé au Registre Spécial des Agents Commerciaux du Tribunal de Commerce de Pontoise sous le n°884511817.
Siège social du mandant : effiCity, 48 avenue de Villiers - 75017 PARIS - Société par Actions Simplifiée, société au capital de 132 373,05 euros, immatriculée au RCS Paris 497 617 746 et titulaire de la Carte professionnelle CPI 75[Coordonnées masquées]02 025 - CCI Paris IDF - Caisse de Garantie : GALIAN Assurances 89 rue de la Boétie 75008 Paris
Voir plus

Référence: 183725
Honoraires à la charge du vendeur.
Barème des honoraires
DPE
A
B
C
D
E
F
G
GES
A
B
C
D
E
F
G

Prêt immobilier

Vous souhaitez connaître votre capacité d’emprunt et trouver le meilleur crédit immobilier ?
Réaliser une simulation gratuite

Maison à ROSNY-SOUS-BOIS
Maison à ROSNY-SOUS-BOIS
Maison à ROSNY-SOUS-BOIS
Maison à ROSNY-SOUS-BOIS
Maison à ROSNY-SOUS-BOIS
Maison à ROSNY-SOUS-BOIS
Maison à ROSNY-SOUS-BOIS
Maison à ROSNY-SOUS-BOIS
Maison à ROSNY-SOUS-BOIS
Maison à ROSNY-SOUS-BOIS
Maison à ROSNY-SOUS-BOIS
Maison à ROSNY-SOUS-BOIS
Maison à ROSNY-SOUS-BOIS
Maison à ROSNY-SOUS-BOIS
Maison à ROSNY-SOUS-BOIS
Maison à ROSNY-SOUS-BOIS
Maison à ROSNY-SOUS-BOIS
Maison à ROSNY-SOUS-BOIS
Maison à ROSNY-SOUS-BOIS
Maison à ROSNY-SOUS-BOIS
Ce site est protégé par reCAPTCHA la Politique de confidentialité et les Conditions d’utilisation de Google s’appliquent.
Obtenir un prêt immobilier au meilleur taux ?

En poursuivant votre navigation sans modifier vos paramètres, vous acceptez l'utilisation de cookies susceptibles de réaliser des statistiques de visite. Cliquez ici pour plus d'informations