Grande maison familiale dans le centre de st jouan des guérets

— Saint-Jouan-Des-Guerets 35430 —
344 850 €
170 m² / 588 m²
7 pièces
parkingbalcon/terrassejardin

Rare à la vente !!!
Venez découvrir cette belle maison familiale en pierres, idéalement situé dans le centre de St-Jouan-des-Guérets.
Toutes les commodités à pieds et à seulement 15 minutes à pieds de la plage des Vallions !!!
Cette grande maison dispose d'une belle entrée avec un salon et une salle à manger, une cuisine, une salle d'eau et un WC.
Une véranda vous invite à admirer le magnifique jardin clos de murs avec une terrasse et un jardin bien entretenu !!!!
Un grand garage et un atelier complète ce rez de chaussée.
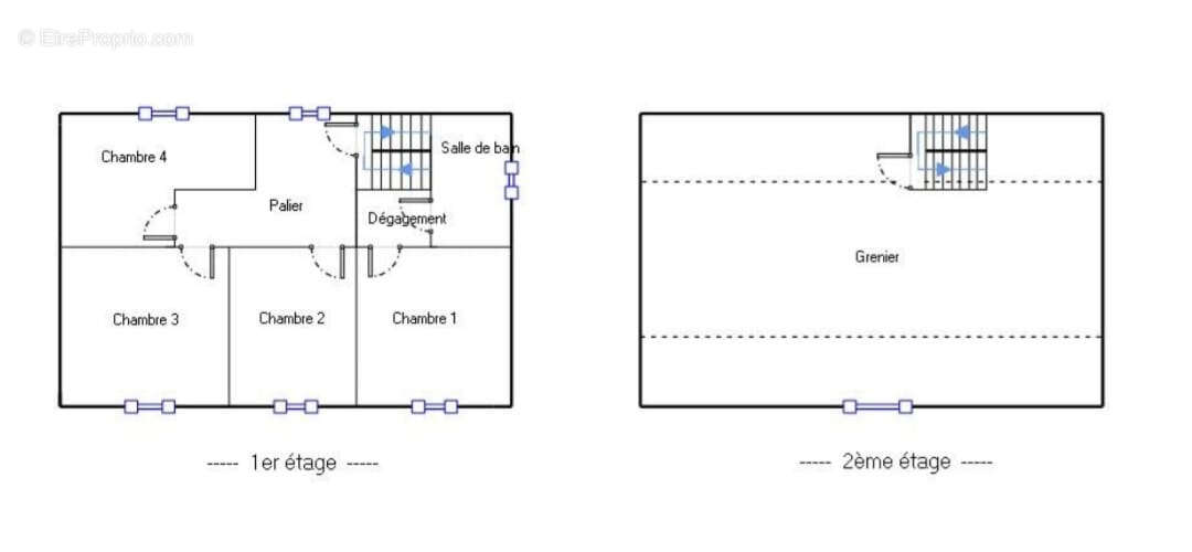
A l'étage une pallier dessert 4 chambres et une salle de bains avec WC.
Au deuxième étage un grand grenier aménageable pourront facilement accueillir plusieurs chambres.
Cette magnifique maison nécessite des travaux de rafraichissement mais son potentiel est incroyable !
N'attendez plus une visite s'impose !

DPE: F- GES : F
Montant moyen estimé des dépenses annuelles d'énergie pour un usage standard établi à partir des prix de l'énergie de l'année 2021, 2022 et 2023 : entre 3850 et 5260 euros.
Logement à consommation énergétique excessive.

PRIX DU BIEN 344850 euros HAI Honoraires : 14850 euros TTC inclus charge acquéreur soit 330000 euros hors honoraires

Pour visiter et vous accompagner dans votre projet, contactez Amanda SLOCOMBE - FABIEN SCHULER, au [Coordonnées masquées] ou, par courriel à [Coordonnées masquées].
Selon l'article L.561.5 du Code Monétaire et Financier, pour l'organisation de la visite, la présentation d'une pièce d'identité vous sera demandée.
Cette présente annonce a été rédigée sous la responsabilité éditoriale de Amanda SLOCOMBE - FABIEN SCHULER agissant sous le statut d'agent commercial immatriculé au RSAC saint malo 953433554 auprès de SAS PROPRIETES PRIVEES, au capital de 44 920 euros, ZAC LE CHÊNE FERRÉ - 44 ALLÉE DES CINQ CONTINENTS 44120 VERTOU; SIRET 487 624 777 00040, RCS Nantes. Carte Professionnelle Transactions sur immeubles et fonds de commerce (T) et Gestion immobilière (G) n°CPI 44[Coordonnées masquées]10 388 délivrée par la CCI Nantes - Saint Nazaire. Compte séquestre n°3[Coordonnées masquées] BPA SAINT-SEBASTIEN-SUR-LOIRE (44230). Garantie GALIAN-SMABTP - 89 rue de la Boétie, 75008 Paris - n°28137 J pour 2 000 000 euros pour T et 120 000 euros pour G. Assurance responsabilité civile professionnelle par GALIAN-SMABTP n° de police 28137.J

Mandat réf : 406189 - Le professionnel garantit et sécurise votre projet immobilier.
(4.50 % honoraires TTC à la charge de l'acquéreur.)

Amanda SLOCOMBE - FABIEN SCHULER (EI) Agent Commercial - Numéro RSAC : saint malo 953433554 - .
Les informations sur les risques auxquels ce bien est exposé sont disponibles sur le site Géorisques : www. georisques. gouv. fr
Voir plus

Référence: 406189ASLO
Honoraires d'agence de 4.5% à la charge de l'acquéreur
DPE
A
B
C
D
E
F
G
GES
A
B
C
D
E
F
G

Prêt immobilier

Vous souhaitez connaître votre capacité d’emprunt et trouver le meilleur crédit immobilier ?
Réaliser une simulation gratuite

Maison à SAINT-JOUAN-DES-GUERETS
Maison à SAINT-JOUAN-DES-GUERETS
Maison à SAINT-JOUAN-DES-GUERETS
Maison à SAINT-JOUAN-DES-GUERETS
Maison à SAINT-JOUAN-DES-GUERETS
Maison à SAINT-JOUAN-DES-GUERETS
Maison à SAINT-JOUAN-DES-GUERETS
Maison à SAINT-JOUAN-DES-GUERETS
Maison à SAINT-JOUAN-DES-GUERETS
Maison à SAINT-JOUAN-DES-GUERETS
Maison à SAINT-JOUAN-DES-GUERETS
Maison à SAINT-JOUAN-DES-GUERETS
Maison à SAINT-JOUAN-DES-GUERETS
Ce site est protégé par reCAPTCHA la Politique de confidentialité et les Conditions d’utilisation de Google s’appliquent.
Obtenir un prêt immobilier au meilleur taux ?

En poursuivant votre navigation sans modifier vos paramètres, vous acceptez l'utilisation de cookies susceptibles de réaliser des statistiques de visite. Cliquez ici pour plus d'informations