Bénéficiez des services de nos partenaires locaux soigneusement sélectionnés
pour vous accompagner dans votre parcours d'achat immobilier

Maison de 72 m², doté d'un jardin spacieuse exposée sud

— Sauvian 34410 —
289 900 €
71 m²
3 pièces
parkingbalcon/terrasseascenseur

Nos partenaires locaux
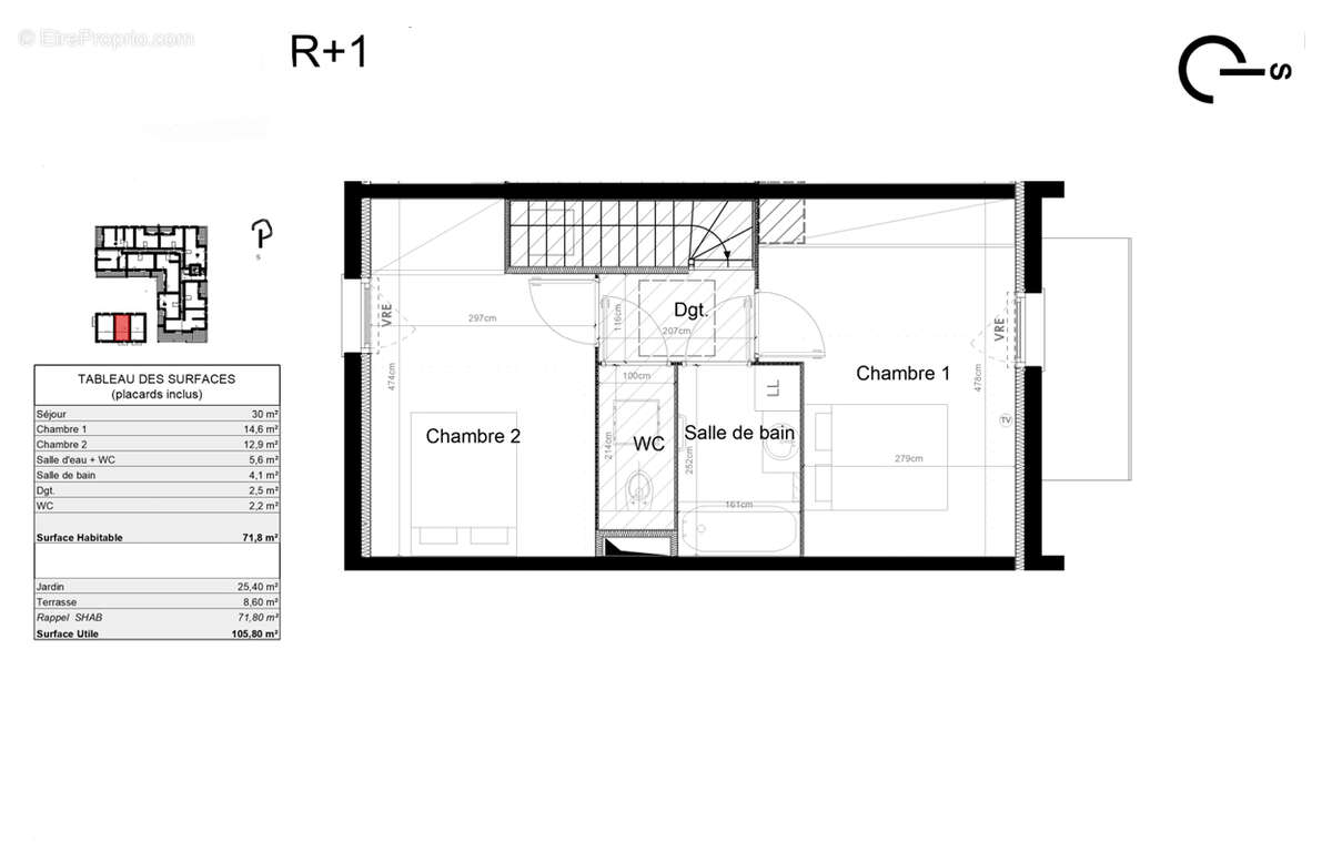
A seulement 10 minutes à pied du centre-ville, offre une opportunité unique d'acquérir un bien dans un quartier calme, résidentiel et sécurisé, tout en restant à proximité immédiate des commodités essentielles. Ce futur cadre de vie correspond-il à vos attentes? Avec près de 72 m² de surface habitable, cette maison a été pensée pour vous offrir un confort absolu. Vous serez immédiatement séduit par son espace extérieur de près de 34,10 m², orienté plein Sus, idéal pour profiter pleinement des rayons du soleil et prolonger vos moments de détente. Au rez-de-chaussée, vous découvrirez une cuisine ouverte, une salle d'eau, et un grand salon lumineux, ouvert sur le jardin, créant ainsi une parfaite harmonie entre l'intérieur et l'extérieur. A l'étage, deux chambres spacieuses vous attendent, offrant à chacun son propre espace, et une salle de bain moderne qui allie fonctionnalité et confort. Chaque détail a été conçu pour un quotidien alliant praticité et bien-être. Un véritable atout : deux places de parking privées, vous offrant une grande facilité au quotidien. Le tout dans un environnement paisible, à l'abri du tumulte de la ville, où il fait bon vivre. Sa localisation idéale vous permet de profiter de la tranquillité d'un quartier résidentiel tout en étant à proximité immédiate des commerces, écoles et transports. Ce bien vous semble-t-il en adéquation avec ce que vous recherchez?
Vous souhaitez faire de ce bien votre futur chez-vous? Ne manquez pas cette occasion de vous positionner dès maintenant sur cet appartement. Prix de vente : 289 900 euros (honoraires à la charge du vendeur).
Me contacter pour plus d'informations, plans (parkings, plan de masse ) et notice descriptive complète sur demande. Photos non contractuelles, DPE non requis. Selon l'article L.561.5 du Code Monétaire et Financier, pour l'organisation de la visite, la présentation d'une pièce d'identité vous sera demandée. Pour visiter et vous accompagner dans votre projet, contactez Michel HORNECKER, au [Coordonnées masquées] ou par courriel à [Coordonnées masquées] Cette présente annonce a été rédigée sous la responsabilité éditoriale de Michel HORNECKER agissant sous le statut d'agent commercial immatriculé au RSAC BEZIERS 824 253 710 spécialisé en vente du neuf , auprès de la SAS PROPRIETES PRIVEES, Réseau national immobilier, au capital de 40000 euros, 44 ALLÉE DES CINQ CONTINENTS - ZAC LE CHÊNE FERRÉ, 44120 VERTOU, RCS Nantes n° 487 624 777 00040, Carte professionnelle T et G n° CPI 44[Coordonnées masquées]10 388 CCI Nantes-Saint Nazaire. Garantie GALIAN - 89 rue de la Boétie, 75008 Paris Mandat réf : 402354 - Le professionnel garantit et sécurise votre projet immobilier. Michel HORNECKER (EI) Agent Commercial - Numéro RSAC : BEZIERS 824 253 710 Les informations sur les risques auxquels ce bien est exposé sont disponibles sur le site Géorisques : www.georisques.gouv.fr
Copropriété de 72 lots - dont 31 lots habitation. ().

Charges annuelles : 1 euros.
Michel HORNECKER (EI) Agent Commercial - Numéro RSAC : BEZIERS 493044283 - .
Voir plus

Référence: 406578HKM
Bien en copropriété. Nombre de lots : 72.
Honoraires à la charge du vendeur.

Prêt immobilier

Vous souhaitez connaître votre capacité d’emprunt et trouver le meilleur crédit immobilier ?
Réaliser une simulation gratuite

Maison à SAUVIAN
Maison à SAUVIAN
Maison à SAUVIAN
Maison à SAUVIAN
Maison à SAUVIAN
Maison à SAUVIAN
Ce site est protégé par reCAPTCHA la Politique de confidentialité et les Conditions d’utilisation de Google s’appliquent.
Obtenir un prêt immobilier au meilleur taux ?

En poursuivant votre navigation sans modifier vos paramètres, vous acceptez l'utilisation de cookies susceptibles de réaliser des statistiques de visite. Cliquez ici pour plus d'informations