Bénéficiez des services de nos partenaires locaux soigneusement sélectionnés
pour vous accompagner dans votre parcours d'achat immobilier

Vente maison laize-clinchamps(14320) 225 000ᅵ

— Laize-La-Ville 14320 —
225 000 €
71 m² / 269 m²
3 pièces

Nos partenaires locaux
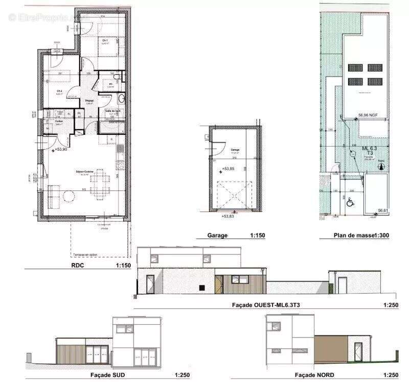
Maison neuve de plain pied devenez propriétaire d'une belle maison neuve de plain pied aux normes re2020 au sein d'une commune dynamique à seulement 10 minutes de caen. ce joli plain pied moderne de 70m² offre une belle pièce de vie de 32m² ainsi que 2 chambres de 12,40m² et 9,50m². un garage indépendant de 17m² vous permettra de garer votre voiture. le bien dispose également d'un joli jardin de 269m² exposé sud-ouest. situé au coeur d'un nouveau quartier regroupant de nombreux commerces (supermarché, restaurant, boulangerie...) et services (médecins, kiné, dentistes...) permettant d'accéder à pieds à tous vos besoins !!!
Voir plus

Référence: 85907935
DPE
A
B
C
D
E
F
G
GES
A
B
C
D
E
F
G

Prêt immobilier

Vous souhaitez connaître votre capacité d’emprunt et trouver le meilleur crédit immobilier ?
Réaliser une simulation gratuite

Maison à LAIZE-LA-VILLE
Maison à LAIZE-LA-VILLE
Maison à LAIZE-LA-VILLE
Ce site est protégé par reCAPTCHA la Politique de confidentialité et les Conditions d’utilisation de Google s’appliquent.
Obtenir un prêt immobilier au meilleur taux ?

En poursuivant votre navigation sans modifier vos paramètres, vous acceptez l'utilisation de cookies susceptibles de réaliser des statistiques de visite. Cliquez ici pour plus d'informations