Lanester - appartement t4 de 82m² ascenseur -dernier etage

— Lanester 56600 —
146 780 €
82 m²
4 pièces
ascenseur

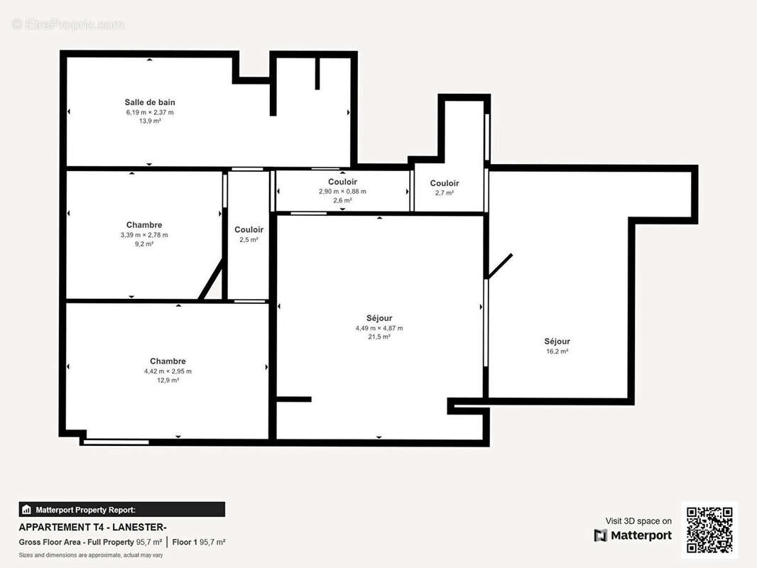
APPARTEMENT 4 PIÈCES LUMINEUX ASCENSEUR -DERNIER ETAGE En vente : localisé à 19 km de l'océan Atlantique, votre agence Agence Barraine IMMO Lorient est ravie de vous présenter cet appartement de 4 pièces orienté sud-est de 80 m² à LANESTER (56600). Il est situé au 11 ème étage d'un immeuble des années 70 avec ascenseur. La sécurité du bâtiment est assurée par un interphone. Il propose un beau salon/séjour double , deux chambres et une cuisine indépendante. Il comporte aussi deux salles d'eau et des toilettes. Il y a aussi un placard. Le chauffage est individuel. L'intérieur de l'appartement est à rafraichir Des fenêtres en pvc et la fibre optique y sont installées. pour votre véhicule, des places de stationnements libres . Le chauffage est individuel au gaz de ville et les fenetres sont en PVC double vitrage. Il y a des écoles du primaire et du secondaire à moins de 10 minutes à pied. Niveau transports, on trouve trois gares (Lorient Bretagne Sud, Hennebont et Gestel) à moins de 10 minutes en voiture. Les nationales N165 et N24 sont accessibles à moins de 9 km. Vous trouverez un théâtre et un conservatoire à proximité. Il y a également des restaurants, des boulangeries, des commerces, deux supermarchés, deux bureaux de poste et une boucherie-charcuterie. Le marché Place Delaune anime le quartier chaque mardi matin. Il est proposé à l'achat pour 146 780 euros frais d'agence inclus (dont 6,75 % honoraires à charge acquéreur), Cet appartement s'inscrit au sein d'une copropriété composée de 45 lots et il y a 1150 euros de charges annuelles. Les informations sur les risques auxquels ce bien est exposé sont disponibles sur le site Géorisques : www.georisques.gouv.fr. Prenez contact avec notre agence immobilière Agence Barraine IMMO Lorient pour une première visite de cet appartement à vendre. (6.75 % honoraires TTC à la charge de l'acquéreur.) Copropriété de 45 lots - dont 45 lots habitation. (Pas de procédure en cours). Charges annuelles : 1175 euros.
Voir plus

Référence: LT00300-MF
Bien en copropriété. Nombre de lots : 45. Charges de copropriété : 1175 €.
Honoraires d'agence de 6.75% à la charge de l'acquéreur
Barème des honoraires
DPE
A
B
C
D
E
F
G
GES
A
B
C
D
E
F
G

Prêt immobilier

Vous souhaitez connaître votre capacité d’emprunt et trouver le meilleur crédit immobilier ?
Réaliser une simulation gratuite

Appartement à LANESTER
Appartement à LANESTER
Appartement à LANESTER
Appartement à LANESTER
Appartement à LANESTER
Appartement à LANESTER
Appartement à LANESTER
Appartement à LANESTER
Appartement à LANESTER
Appartement à LANESTER
Appartement à LANESTER
Appartement à LANESTER
Appartement à LANESTER
Appartement à LANESTER
Appartement à LANESTER
Appartement à LANESTER
Appartement à LANESTER
Appartement à LANESTER
Appartement à LANESTER
Ce site est protégé par reCAPTCHA la Politique de confidentialité et les Conditions d’utilisation de Google s’appliquent.
Obtenir un prêt immobilier au meilleur taux ?

En poursuivant votre navigation sans modifier vos paramètres, vous acceptez l'utilisation de cookies susceptibles de réaliser des statistiques de visite. Cliquez ici pour plus d'informations