Appartement 67m² à saint-laurent-du-var

— Saint-Laurent-Du-Var 06700 —
506 800 €
67 m²
3 pièces

Iad France - Mathieu Condro ([Coordonnées masquées]) vous propose : Appartement de 3 pièces à vendre
06700 Saint Laurent du Var Référence : Lot n° B1 - 12 Étage : 1er étage (R + 1)

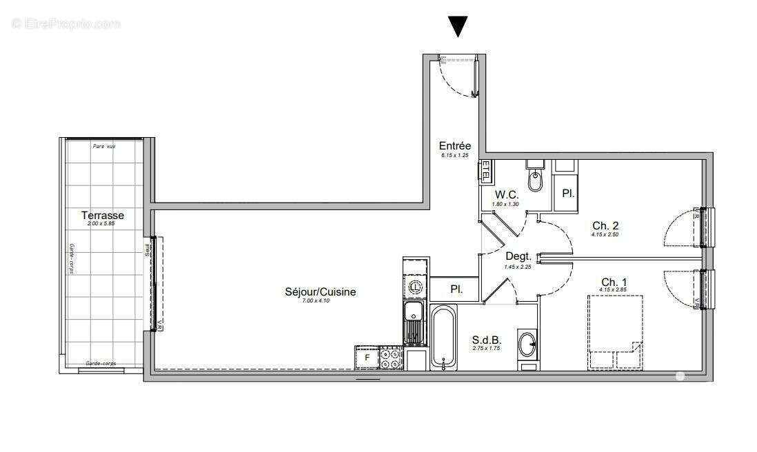
Cet appartement de 67.25 m² environ habitables se compose de :

Entrée : 7.60 m² environ

Séjour / Cuisine : 28.20 m² environ - Espace convivial et lumineux, idéal pour recevoir.

Dégagement : 3.15 m² environ

Chambre 1 : 11.70 m² environ - Spacieuse et confortable, parfaite pour une chambre principale.

Chambre 2 : 9.60 m² environ - Idéale pour une chambre d'enfant ou un bureau.

Salle de bain : 4.80 m² environ - Équipée pour répondre aux besoins quotidiens.

Toilettes : 2.20 m² environ

Extérieur :

Terrasse : 11.70 m² environ - Un espace agréable pour profiter des beaux jours et des repas en plein air.

Surface totale : 78.95 m² environ (incluant la terrasse)
Un Service Exclusif : Accompagnement par une Architecte d'Intérieur
Pour vous aider à optimiser l'espace et personnaliser votre intérieur, nous mettons à votre disposition une architecte d'intérieur. Que ce soit pour un projet d'aménagement sur mesure, une optimisation des rangements ou une décoration moderne et élégante, elle vous accompagnera à chaque étape pour faire de cet appartement un lieu unique, parfaitement adapté à votre style de vie.

L'appartement offre une disposition fonctionnelle avec des espaces de rangement optimisés. La cuisine ouverte sur le séjour crée un espace de vie convivial et moderne. Les chambres sont bien proportionnées et la salle de bain est équipée pour répondre aux besoins quotidiens.

Atouts de la résidence :

Environnement sécurisé et bien entretenu

Espaces verts

Piscine pour les résidents

Localisation : L'appartement est idéalement situé à proximité des commodités et des transports, offrant un cadre de vie agréable et pratique pour une famille ou un couple.

Ne manquez pas cette opportunité d'acquérir un bien immobilier de qualité dans un emplacement privilégié.

Honoraires d'agence à la charge du vendeur. Bien non soumis au DPE. Les informations sur les risques auxquels ce bien est exposé sont disponibles sur le site Géorisques : www.georisques.gouv.fr. La présente annonce immobilière a été rédigée sous la responsabilité éditoriale de M. Mathieu Condro EI (ID 72418), mandataire indépendant en immobilier (sans détention de fonds), agent commercial de la SAS I@D France immatriculé au RSAC de ANTIBES sous le numéro 920434529, titulaire de la carte de démarchage immobilier pour le compte de la société I@D France SAS.
Retrouvez tous nos biens sur notre site internet. www.iadfrance.fr.
Informations LOI ALUR :
Honoraires charge vendeur. (gedeon_6727_30771504)
Voir plus

Référence: 1698878-11
Honoraires à la charge du vendeur.

Prêt immobilier

Vous souhaitez connaître votre capacité d’emprunt et trouver le meilleur crédit immobilier ?
Réaliser une simulation gratuite

Photo 1 - Appartement à SAINT-LAURENT-DU-VAR
Photo 1
Photo 2 - Appartement à SAINT-LAURENT-DU-VAR
Photo 2
Photo 3 - Appartement à SAINT-LAURENT-DU-VAR
Photo 3
Photo 4 - Appartement à SAINT-LAURENT-DU-VAR
Photo 4
Photo 5 - Appartement à SAINT-LAURENT-DU-VAR
Photo 5
Photo 6 - Appartement à SAINT-LAURENT-DU-VAR
Photo 6
Ce site est protégé par reCAPTCHA la Politique de confidentialité et les Conditions d’utilisation de Google s’appliquent.
Obtenir un prêt immobilier au meilleur taux ?

En poursuivant votre navigation sans modifier vos paramètres, vous acceptez l'utilisation de cookies susceptibles de réaliser des statistiques de visite. Cliquez ici pour plus d'informations