Bénéficiez des services de nos partenaires locaux soigneusement sélectionnés
pour vous accompagner dans votre parcours d'achat immobilier

Villa 29100 douarnenez accès mer direct

— Douarnenez 29100 —
988 000 €
193 m² / 5 922 m²
8 pièces
jardin

Nos partenaires locaux
Dès le premier contact avec cette magnifique maison d'architecte implantée sur un superbe terrain de près de 6000 m2, dans un environnement préservé vous séduit. Ce bien rare idéalement conçu pour une vie de style "plain pied" apporte une sensation de bien être et de détachement, ou que vous soyez vous avez accès direct aux extérieurs, avec pour spectacle permanent et imprenable l'océan.
Les nombreuses baies vitrées laissent libre court aux changements de lumière qui caractérisent si bien la Bretagne
La pièce de vie sur 2 niveaux face mer est baignée de lumière, la cheminée saura donner un attrait et un confort supplémentaire lors des soirées d'hiver.
La cuisine est d'aménagement récent et très complète avec accès direct à l'espace repas et au salon

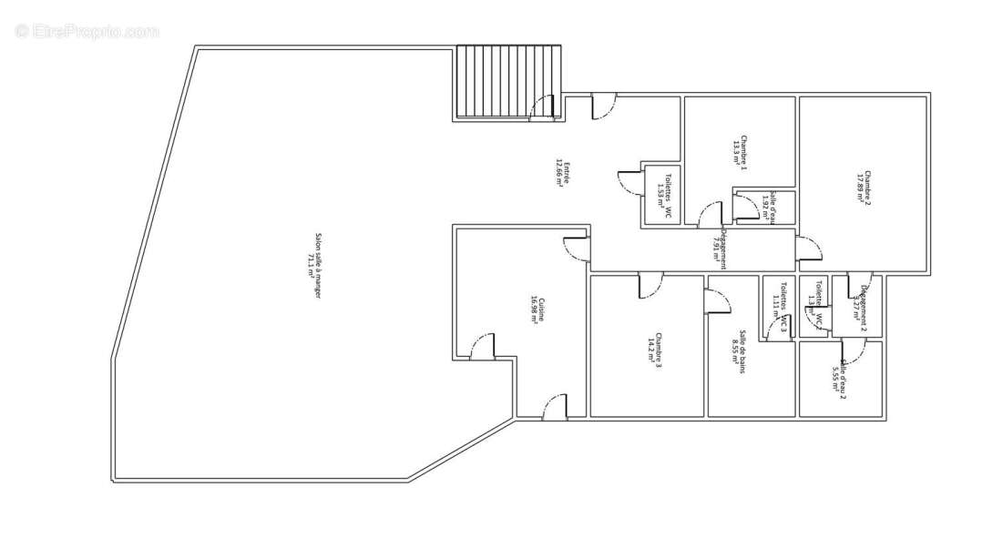
RDC: Hall entrée avec placard et wc, cuisine aménagée et équipée, salon-séjour avec cheminée, 1 chambre avec douche, 2 chambre avec doche/bain et toilette privative,
SS: 1 grande chambre avec vue sur le jardin, local rangement et cave à vin
Extérieur: un garage double avec local atelier complète l'ensemble du bien

Si vous êtes en recherche de calme, tout en étant non loin des services de la commune ce bien unique saura retenir votre intérêt

DPE E et GES B
Montant estimé des dépenses annuelles d'énergie pour un usage standard entre 4120 et 5650 euros indexées aux années 2021, 2022 et 2023

Mandat réf : 392359 au prix de 988000 euros dont 38000 euros honoraires agence inclus soit 950000 net vendeur - Le professionnel garantit et sécurise votre projet immobilier.

Pour visiter et vous accompagner dans votre projet, contactez Marc LE BACCON, au [Coordonnées masquées] ou, par courriel à [Coordonnées masquées].
Selon l'article L.561.5 du Code Monétaire et Financier, pour l'organisation de la visite, la présentation d'une pièce d'identité vous sera demandée.
Cette présente annonce a été rédigée sous la responsabilité éditoriale de Marc LE BACCON agissant sous le statut d'agent commercial immatriculé au RSAC Quimper 327 474 334 auprès de SAS PROPRIETES PRIVEES, au capital de 44 920 euros, ZAC LE CHÊNE FERRÉ - 44 ALLÉE DES CINQ CONTINENTS 44120 VERTOU; SIRET 487 624 777 00040, RCS Nantes. Carte Professionnelle Transactions sur immeubles et fonds de commerce (T) et Gestion immobilière (G) n°CPI 44[Coordonnées masquées]10 388 délivrée par la CCI Nantes - Saint Nazaire. Compte séquestre n°3[Coordonnées masquées] BPA SAINT-SEBASTIEN-SUR-LOIRE (44230). Garantie GALIAN-SMABTP - 89 rue de la Boétie, 75008 Paris - n°28137 J pour 2 000 000 euros pour T et 120 000 euros pour G. Assurance responsabilité civile professionnelle par GALIAN-SMABTP n° de police 28137.J

(4.00 % honoraires TTC à la charge de l'acquéreur.)

Marc LE BACCON (EI) Agent Commercial - Numéro RSAC : Quimper 327 474 334 - .
Les informations sur les risques auxquels ce bien est exposé sont disponibles sur le site Géorisques : www. georisques. gouv. fr
Voir plus

Référence: 392359MLBA
Honoraires d'agence de 4% à la charge de l'acquéreur
DPE
A
B
C
D
E
F
G
GES
A
B
C
D
E
F
G

Prêt immobilier

Vous souhaitez connaître votre capacité d’emprunt et trouver le meilleur crédit immobilier ?
Réaliser une simulation gratuite

Maison à DOUARNENEZ
Maison à DOUARNENEZ
Maison à DOUARNENEZ
Maison à DOUARNENEZ
Maison à DOUARNENEZ
Maison à DOUARNENEZ
Maison à DOUARNENEZ
Maison à DOUARNENEZ
Maison à DOUARNENEZ
Maison à DOUARNENEZ
Maison à DOUARNENEZ
Maison à DOUARNENEZ
Maison à DOUARNENEZ
Maison à DOUARNENEZ
Maison à DOUARNENEZ
Maison à DOUARNENEZ
Maison à DOUARNENEZ
Maison à DOUARNENEZ
Ce site est protégé par reCAPTCHA la Politique de confidentialité et les Conditions d’utilisation de Google s’appliquent.
Obtenir un prêt immobilier au meilleur taux ?

En poursuivant votre navigation sans modifier vos paramètres, vous acceptez l'utilisation de cookies susceptibles de réaliser des statistiques de visite. Cliquez ici pour plus d'informations