Bénéficiez des services de nos partenaires locaux soigneusement sélectionnés
pour vous accompagner dans votre parcours d'achat immobilier

Appartement en forêt de 76 m2 dans un quartier calme

— Le Touquet-Paris-Plage 62520 —
480 000 €
76 m²
3 pièces
ascenseur

Nos partenaires locaux
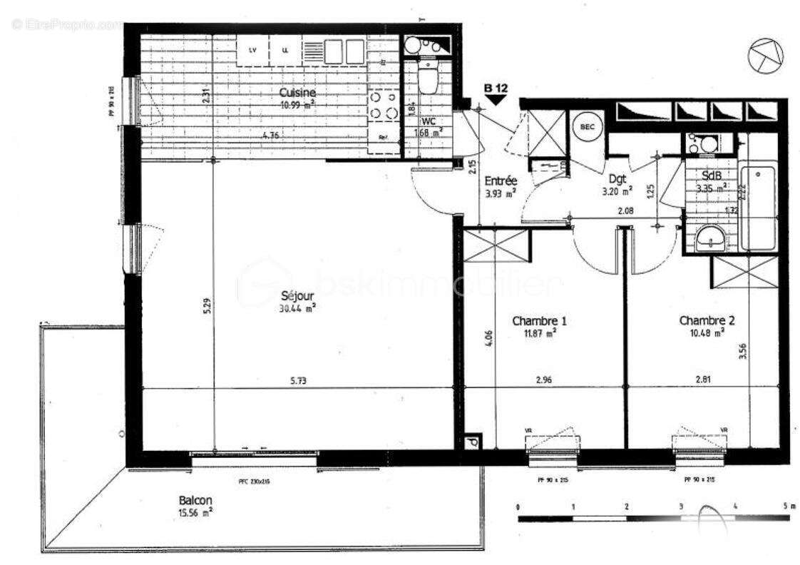
Venez découvrir ce bel Appartement de 76 m² situé dans un quartier calme proche du collège.

Il se compose d'une entrée, une cuisine ouverte et une grande pièce de vie avec avec de grandes baies vitrées donnant sur une une terrasse de 15 M2 exposée Sud-Ouest.

Deux chambres, une salle de bains, un WC indépendant.

Il dispose d'une place de parking et d'un box de rangement.
Résidence en parfaite état
Idéal pour vivre à l'année.
Nb de lots : 20 / charges : 180€/trim

Cette annonce référence 280063 vous est présentée par votre agent commercial BSK Immobilier CHRISTIAN PATTYN (EIRL) immatriculé au RSAC de TOURCOING (59200) sous le numéro 78884983400023.

Prix du bien : 480 000,00 €
Les honoraires d'agence sont à la charge du vendeur.

A propos des performances énergétiques :
Date de réalisation du diagnostic énergétique : 03/03/2025
Score DPE : 177 kWhEP/m²/an
Score GES : 5 kgepCO2/m²/an
Montant estimé des dépenses annuelles d'énergie pour un usage standard : entre 1670.00 € et 2330.00 € par an. Prix moyens des énergies indexés sur l'année 2025 (abonnements compris).

Les informations sur les risques auxquels ce bien est exposé sont disponibles sur le site Géorisques : www.georisques.gouv.fr
Voir plus

Référence: 280063
Honoraires à la charge du vendeur.
DPE
A
B
C
D
E
F
G
GES
A
B
C
D
E
F
G

Prêt immobilier

Vous souhaitez connaître votre capacité d’emprunt et trouver le meilleur crédit immobilier ?
Réaliser une simulation gratuite

Appartement à LE TOUQUET-PARIS-PLAGE
Appartement à LE TOUQUET-PARIS-PLAGE
Appartement à LE TOUQUET-PARIS-PLAGE
Appartement à LE TOUQUET-PARIS-PLAGE
Appartement à LE TOUQUET-PARIS-PLAGE
Appartement à LE TOUQUET-PARIS-PLAGE
Appartement à LE TOUQUET-PARIS-PLAGE
Appartement à LE TOUQUET-PARIS-PLAGE
Appartement à LE TOUQUET-PARIS-PLAGE
Appartement à LE TOUQUET-PARIS-PLAGE
Appartement à LE TOUQUET-PARIS-PLAGE
Ce site est protégé par reCAPTCHA la Politique de confidentialité et les Conditions d’utilisation de Google s’appliquent.
Obtenir un prêt immobilier au meilleur taux ?

En poursuivant votre navigation sans modifier vos paramètres, vous acceptez l'utilisation de cookies susceptibles de réaliser des statistiques de visite. Cliquez ici pour plus d'informations