Bénéficiez des services de nos partenaires locaux soigneusement sélectionnés
pour vous accompagner dans votre parcours d'achat immobilier

Maison 71m² à chuisnes

— Chuisnes 28190 —
148 500 €
71 m² / 431 m²
4 pièces
balcon/terrassejardin

Nos partenaires locaux
Iad France - Mélanie Jolivet vous propose : À seulement 3 minutes de la gare de Courville sur Eure - Vie de plain pied sans travaux, idéal pour votre résidence ou un investissement locatif !

Découvrez cette maison peu énergivore à la décoration moderne, avec ses dépendances et son toit terrasse.
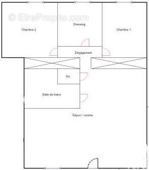
Profitez d'une pièce de vie d'environ 33 m² avec son séjour et sa cuisine aménagée, d'une salle de bain avec baignoire et douche, d'un WC séparé, et d'un espace nuit composé d'un dégagement, de deux chambres et d'un bureau / dressing.
L'extérieur vous permettra de profiter d'un jardin et d'une cour de stationnement fermée pour plusieurs véhicules. À l'arrière, deux dépendances vous offrent du rangement ou la possibilité de créer un atelier pour les bricoleurs.

Pour votre confort, cette maison est équipée d'huisseries double vitrage en PVC, de volets roulants motorisés, de radiateurs électriques, et d'un assainissement individuel aux normes.

Saisissez cette opportunité ! Contactez vite votre conseillère !
* Ouvert à l'inter agence *

Honoraires d'agence à la charge du vendeur.
Information d'affichage énergétique sur ce bien : classe ENERGIE D indice 222 et classe CLIMAT B indice 7. Les informations sur les risques auxquels ce bien est exposé, y compris l'obligation légale de débroussaillement, sont disponibles sur le site Géorisques : http://www.georisques.gouv.fr.
La présente annonce immobilière a été rédigée sous la responsabilité éditoriale de Mme Mélanie Jolivet mandataire indépendant en immobilier (sans détention de fonds), agent commercial de la SAS I@D France immatriculé au RSAC de Chartres sous le numéro 914117734, titulaire de la carte de démarchage immobilier pour le compte de la société I@D France SAS.
Informations LOI ALUR :
Honoraires charge vendeur. (gedeon_6727_31221772)
Voir plus

Référence: 1758425
Honoraires à la charge du vendeur.
DPE
A
B
C
D
E
F
G
GES
A
B
C
D
E
F
G

Prêt immobilier

Vous souhaitez connaître votre capacité d’emprunt et trouver le meilleur crédit immobilier ?
Réaliser une simulation gratuite

Photo 1 - Maison à CHUISNES
Photo 1
Photo 2 - Maison à CHUISNES
Photo 2
Photo 3 - Maison à CHUISNES
Photo 3
Photo 4 - Maison à CHUISNES
Photo 4
Photo 5 - Maison à CHUISNES
Photo 5
Photo 6 - Maison à CHUISNES
Photo 6
Photo 7 - Maison à CHUISNES
Photo 7
Photo 8 - Maison à CHUISNES
Photo 8
Photo 9 - Maison à CHUISNES
Photo 9
Ce site est protégé par reCAPTCHA la Politique de confidentialité et les Conditions d’utilisation de Google s’appliquent.
Obtenir un prêt immobilier au meilleur taux ?

En poursuivant votre navigation sans modifier vos paramètres, vous acceptez l'utilisation de cookies susceptibles de réaliser des statistiques de visite. Cliquez ici pour plus d'informations