Villa centre barcelonnette

— Barcelonnette 04400 —
1 040 000 €
850 m² / 1 600 m²
40 pièces
parkingjardin

En plein de coeur de la Vallée de l'Ubaye, au centre de Barcelonnette.
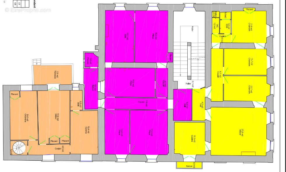
Je vous propose ce bien d'exception. Villa type Mexicaine de 850m2 sur 4 niveaux, sur une parcelle de 1600m2.
Elle se compose:
Rez de Chaussée : 2 appartements type T2 avec accès direct au jardin, un local à vélo et une grande pièces pouvant faire office de cave. (Habitable)
Au Premier étage: 2 appartements de Type T4 avec balcon. (1 Habitable l'autre à rénover)
Au Deuxième étage: 2 appartements de Type T4 dont un avec balon. (1 Habitable l'autre à rénover)
Les combles de 156m2 au sol permettent de faire un ou deux superbes appartements.
Vendu avec une petit maison annexe de 53m2 avec terrasse de 7.5m2 et un garage de 30m2. Une parcelle de 250m2 constructible est également incluse.
Investisseur ou particulier, si vous souhaitez avoir plus de renseignements sur ce bien rare à la vente n'hésitez pas à me contacter au [Coordonnées masquées] ou bien par mail à [Coordonnées masquées]
Je suis Adrien Boutet, agent commercial Immogliss, NoRSAC 815 166 095, RSAC de Manosque.
Voir plus

Référence: 1546
Barème des honoraires

Prêt immobilier

Vous souhaitez connaître votre capacité d’emprunt et trouver le meilleur crédit immobilier ?
Réaliser une simulation gratuite

Maison à BARCELONNETTE
Maison à BARCELONNETTE
Maison à BARCELONNETTE
Maison à BARCELONNETTE
Maison à BARCELONNETTE
Maison à BARCELONNETTE
Maison à BARCELONNETTE
Ce site est protégé par reCAPTCHA la Politique de confidentialité et les Conditions d’utilisation de Google s’appliquent.
Obtenir un prêt immobilier au meilleur taux ?

En poursuivant votre navigation sans modifier vos paramètres, vous acceptez l'utilisation de cookies susceptibles de réaliser des statistiques de visite. Cliquez ici pour plus d'informations