Paimpol - hyper centre à pied! maison de 81 m² sur 640 m² environ

— Paimpol 22500 —
295 000 €
81 m² / 644 m²
4 pièces
jardin

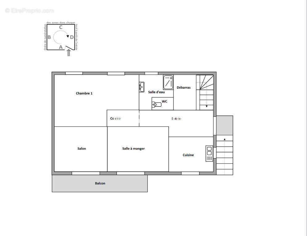
Je vous propose d'acquérir une maison en centre ville, 5 minutes à pied du port de plaisance et de toutes les commodités de Paimpol ! Cette lumineuse maison édifiée sur un sous-sol total, se compose d'une entrée donnant sur un agréable salon/séjour sur véritable parquet avec son balcon, une cuisine séparée équipée et aménagée, une jolie salle d'eau récente avec une douche à l'italienne et une double vasque, une grande chambre avec dressing ou la possibilité de faire une seconde chambre puis un WC séparé. Au sous-sol, vous disposez d'une buanderie, un bel espace dressing ou une chambre d'amis, un atelier et un garage. Le tout sur une parcelle entièrement close de plus de 640 m² avec un portail électrique. Isolation récente et pompe à chaleur. Véritable atout en centre ville : un beau jardin fleuri avec terrasse sur 640 m² environ clos, parfait pour recevoir la famille ou jardiner. Lumineuse et fonctionnelle, cette maison réunit tous les critères pour une vie agréable à l'année comme en résidence secondaire. Prix FAI : 295 000 euros dont 4.80 % honoraires TTC à la charge de l'acquéreur. Rachel PEREZ (EI) Agent Commercial - Numéro RSAC : 930 727 979 - SAINT BRIEUC.
Voir plus

Référence: 32826
Honoraires d'agence de 4.8% à la charge de l'acquéreur
Barème des honoraires
DPE
A
B
C
D
E
F
G
GES
A
B
C
D
E
F
G

Prêt immobilier

Vous souhaitez connaître votre capacité d’emprunt et trouver le meilleur crédit immobilier ?
Réaliser une simulation gratuite

Maison à PAIMPOL
Maison à PAIMPOL
Maison à PAIMPOL
Maison à PAIMPOL
Maison à PAIMPOL
Maison à PAIMPOL
Maison à PAIMPOL
Maison à PAIMPOL
Maison à PAIMPOL
Maison à PAIMPOL
Maison à PAIMPOL
Maison à PAIMPOL
Maison à PAIMPOL
Maison à PAIMPOL
Maison à PAIMPOL
Maison à PAIMPOL
Maison à PAIMPOL
Maison à PAIMPOL
Maison à PAIMPOL
Ce site est protégé par reCAPTCHA la Politique de confidentialité et les Conditions d’utilisation de Google s’appliquent.
Obtenir un prêt immobilier au meilleur taux ?

En poursuivant votre navigation sans modifier vos paramètres, vous acceptez l'utilisation de cookies susceptibles de réaliser des statistiques de visite. Cliquez ici pour plus d'informations