Maison à vendre 5 pièces combrit (29)

— Combrit 29120 —
440 000 €
149 m² / 530 m²
5 pièces
parkingbalcon/terrasse

A deux pas de l'Ile Tudy, de son port et à 1 km de la plage, cette belle maison contemporaine de l'année 1991 et de construction très qualitative a tout pour plaire: DPE en C, vie de plain-pied avec sa chambre, salle d'eau et WC au rez-de-chaussée, son salon spectaculaire avec haut plafond, son grand garage, son emplacement au calme en fond d'impasse.
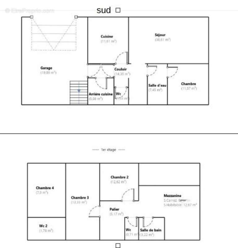
Elle s'organise ainsi:
Au rez-de-chaussée:
Entrée, cuisine séparée d'environ 12 m², avec baie vitrée donnant sur une grande terrasse exposée Sud, séjour avec magnifique cheminée insert et espace salle à manger formant une pièce de vie de 41 m², suite parentale composée d'une chambre de 12 m², avec placard et une salle d'eau avec double vasque. WC séparés. Arrière cuisine avec un évier.
A l'étage:
3 chambres, chacune avec son balcon, une grande mezzanine pouvant servir de bureau, de dortoir ou encore pouvant être convertie en une 5ème chambre. Une salle de bains et 2 WC.

Très bon diagnostic énergétique (DPE): maison classée en C.
Garage de 20 m², carrelé, avec évier. Pratique pour les retours de plage.
Chauffe-eau par Pompe à Chaleur géothermique.
Chauffage électrique et bois.

Abri de jardin en bois.
Taxe foncière 1077 € pour l'année 2024.
Assainissement collectif.

Les honoraires d'agence sont à la charge de l'acquéreur, soit 4,76% TTC du prix hors honoraires.
Les informations sur les risques auxquels ce bien est exposé sont disponibles sur le site Géorisques : www. georisques. gouv. fr.

Réseau Immobilier CAPIFRANCE - Votre agent commercial (RSAC N°478 362 593 - Greffe de QUIMPER) Karine CORCUFF Entrepreneur Individuel [Coordonnées masquées] - Réf.879620
Voir plus

Référence: 340934997369
DPE
A
B
C
D
E
F
G
GES
A
B
C
D
E
F
G

Prêt immobilier

Vous souhaitez connaître votre capacité d’emprunt et trouver le meilleur crédit immobilier ?
Réaliser une simulation gratuite

Maison à COMBRIT
Maison à COMBRIT
Maison à COMBRIT
Maison à COMBRIT
Maison à COMBRIT
Maison à COMBRIT
Maison à COMBRIT
Maison à COMBRIT
Maison à COMBRIT
Maison à COMBRIT
Maison à COMBRIT
Maison à COMBRIT
Maison à COMBRIT
Maison à COMBRIT
Maison à COMBRIT
Maison à COMBRIT
Maison à COMBRIT
Maison à COMBRIT
Maison à COMBRIT
Maison à COMBRIT
Maison à COMBRIT
Maison à COMBRIT
Maison à COMBRIT
Maison à COMBRIT
Maison à COMBRIT
Maison à COMBRIT
Maison à COMBRIT
Maison à COMBRIT
Maison à COMBRIT
Maison à COMBRIT
Maison à COMBRIT
Ce site est protégé par reCAPTCHA la Politique de confidentialité et les Conditions d’utilisation de Google s’appliquent.
Obtenir un prêt immobilier au meilleur taux ?

En poursuivant votre navigation sans modifier vos paramètres, vous acceptez l'utilisation de cookies susceptibles de réaliser des statistiques de visite. Cliquez ici pour plus d'informations