108m² à paris-1e

— Paris-1e 75001 —
1 085 000 €
108 m²
5 pièces

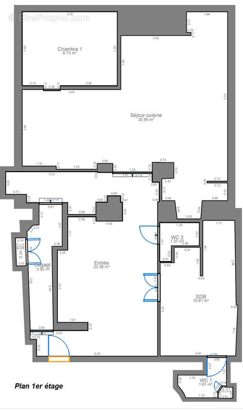
Au coeur des Halles / face à l'Eglise Saint Eustache. Loft de 108 m2 au sol calme et lumineux, qui bénéficie de beaux volumes, et d'une grande hauteur sous plafond avec éclairage zénithal. Il est en très bon état, mais on peut aussi vouloir y faire des travaux car sa configuration permet plusieurs agencements. Actuellement, il se compose d'une entrée, un séjour avec cuisine américaine équipée, 2 chambres et un bureau en mezzanine, une salle de bains (baignoire + douche), 2 wc, et un dressing, 1er étage avec ascenseur d'un petit immeuble ancien très bien entretenu. Emplacement central, à proximité immédiate de toutes les commodités; tout en étant à l'abri des nuisances extérieures. Florent BERNARD IETUDE S. MAYORKAS Conseil Immobilier depuis 1984 176 rue de la Convention 75015 Paris Tel : [Coordonnées masquées]. Email : [Coordonnées masquées]
Voir plus

Bien en copropriété. Nombre de lots : 78. Charges de copropriété : 1968 €.
Barème des honoraires
DPE
A
B
C
D
E
F
G
GES
A
B
C
D
E
F
G

Prêt immobilier

Vous souhaitez connaître votre capacité d’emprunt et trouver le meilleur crédit immobilier ?
Réaliser une simulation gratuite

Autre à PARIS-1E
Autre à PARIS-1E
Autre à PARIS-1E
Autre à PARIS-1E
Autre à PARIS-1E
Autre à PARIS-1E
Autre à PARIS-1E
Autre à PARIS-1E
Autre à PARIS-1E
Autre à PARIS-1E
Autre à PARIS-1E
Autre à PARIS-1E
Autre à PARIS-1E
Autre à PARIS-1E
Autre à PARIS-1E
Autre à PARIS-1E
Autre à PARIS-1E
Autre à PARIS-1E
Autre à PARIS-1E
Autre à PARIS-1E
Autre à PARIS-1E
Autre à PARIS-1E
Autre à PARIS-1E
Ce site est protégé par reCAPTCHA la Politique de confidentialité et les Conditions d’utilisation de Google s’appliquent.
Obtenir un prêt immobilier au meilleur taux ?

En poursuivant votre navigation sans modifier vos paramètres, vous acceptez l'utilisation de cookies susceptibles de réaliser des statistiques de visite. Cliquez ici pour plus d'informations