Bénéficiez des services de nos partenaires locaux soigneusement sélectionnés
pour vous accompagner dans votre parcours d'achat immobilier

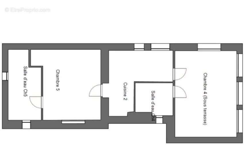
Magnifique villa avec 5 chambres, vue dégagée et piscine

— Mougins 06250 —
1 995 000 €
6 pièces
parkingpiscine

Nos partenaires locaux
MOUGINS : Magnifique villa avec 5 chambres, vue dégagée et piscine située dans un environnement verdoyant et paisible, cette villa unique de 207m² habitables vous séduira par ses volumes généreux, son agencement fonctionnel et ses prestations de qualité. La propriété, en parfait état et de plain-pied pour l'essentiel, s'ouvre sur un spacieux séjour baigné de lumière avec une belle cheminée. La cuisine ouverte, parfaitement équipée, invite à partager des moments conviviaux. L'espace nuit principal comprend trois suites avec leurs salles d'eau privatives, complétées par un bureau fonctionnel et une buanderie pratique. Un studio indépendant avec kitchenette et salle d'eau, idéal pour recevoir famille ou amis, est aménagé sous la terrasse. Un écrin de verdure de 1720m² Le terrain paysagé, parfaitement entretenu et exposé sud-ouest, offre un cadre idyllique avec une piscine entourée de plages ensoleillées, un pool-house équipé pour des déjeuners d'été, des espaces de détente ombragés et une vue dégagée sur les collines environnantes. Située à seulement 25 minutes de Cannes, cette villa bénéficie d'un accès rapide aux écoles internationales réputées de la région, au parc naturel de la Valmasque pour les amateurs de nature et au village pittoresque de Mougins, accessible en 30 minutes par des sentiers forestiers. Une opportunité rare d'acquérir une propriété d'exception alliant confort moderne, tranquillité absolue et proximité des commodités de la Côte d'Azur.
Voir plus

Référence: M11557D
Barème des honoraires
DPE
A
B
C
D
E
F
G
GES
A
B
C
D
E
F
G

Prêt immobilier

Vous souhaitez connaître votre capacité d’emprunt et trouver le meilleur crédit immobilier ?
Réaliser une simulation gratuite

Maison à MOUGINS
Maison à MOUGINS
Maison à MOUGINS
Maison à MOUGINS
Maison à MOUGINS
Maison à MOUGINS
Maison à MOUGINS
Maison à MOUGINS
Maison à MOUGINS
Maison à MOUGINS
Maison à MOUGINS
Maison à MOUGINS
Maison à MOUGINS
Maison à MOUGINS
Maison à MOUGINS
Maison à MOUGINS
Maison à MOUGINS
Maison à MOUGINS
Maison à MOUGINS
Maison à MOUGINS
Maison à MOUGINS
Maison à MOUGINS
Maison à MOUGINS
Maison à MOUGINS
Maison à MOUGINS
Maison à MOUGINS
Ce site est protégé par reCAPTCHA la Politique de confidentialité et les Conditions d’utilisation de Google s’appliquent.
Obtenir un prêt immobilier au meilleur taux ?

En poursuivant votre navigation sans modifier vos paramètres, vous acceptez l'utilisation de cookies susceptibles de réaliser des statistiques de visite. Cliquez ici pour plus d'informations