Agence non trouvée

Appartement t3 libre balcon sud/ouest

— Saint-Jacques-De-La-Lande 35136 —
288 400 €
64 m²
3 pièces
parkingbalcon/terrasse

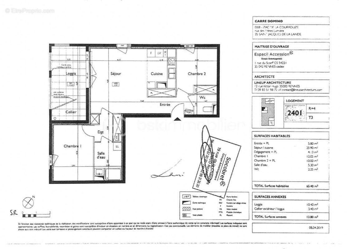
Jean-Pierre Cohignac vous propose à St Jacques de la lande La Courrouze, dans un ensemble construit en 2021, beau T3 comprenant une entrée avec grand placard, une pièce de vie avec cuisine ouverte entièrement aménagée et équipée, un accès au balcon / loggia SUD/OUEST, deux chambres avec placard, un WC séparé, une SDB et en sous-sol un parking de stationnement sécurisée, un garage vélos. Visite sur rendez-vous, merci.

Cette annonce référence 287173 vous est présentée par votre agent commercial BSK Immobilier JEAN PIERRE COHIGNAC (EI) immatriculé au RSAC de RENNES (35000) sous le numéro 37749403400061.

Prix du bien : 288 400,00 €
Les honoraires d'agence sont à la charge du vendeur.

A propos de la copropriété :
Pas de procédure en cours.
Nombre de lots : 126
Charges prévisionnelles annuelles : 1 200,00 €

A propos des performances énergétiques :
Date de réalisation du diagnostic énergétique : 22/04/2025
Score DPE : 98 kWhEP/m²/an
Score GES : 17 kgepCO2/m²/an
Montant estimé des dépenses annuelles d'énergie pour un usage standard : entre 510.00 € et 740.00 € par an. Prix moyens des énergies indexés sur l'année 2021 (abonnements compris).

Les informations sur les risques auxquels ce bien est exposé sont disponibles sur le site Géorisques : www.georisques.gouv.fr
Voir plus

Référence: 287173
Bien en copropriété. Nombre de lots : 126. Charges de copropriété : 100 €.
Honoraires à la charge du vendeur.
DPE
A
B
C
D
E
F
G
GES
A
B
C
D
E
F
G

Prêt immobilier

Vous souhaitez connaître votre capacité d’emprunt et trouver le meilleur crédit immobilier ?
Réaliser une simulation gratuite

Appartement à SAINT-JACQUES-DE-LA-LANDE
Appartement à SAINT-JACQUES-DE-LA-LANDE
Appartement à SAINT-JACQUES-DE-LA-LANDE
Appartement à SAINT-JACQUES-DE-LA-LANDE
Appartement à SAINT-JACQUES-DE-LA-LANDE
Appartement à SAINT-JACQUES-DE-LA-LANDE
Appartement à SAINT-JACQUES-DE-LA-LANDE
Appartement à SAINT-JACQUES-DE-LA-LANDE
Ce site est protégé par reCAPTCHA la Politique de confidentialité et les Conditions d’utilisation de Google s’appliquent.
Obtenir un prêt immobilier au meilleur taux ?

En poursuivant votre navigation sans modifier vos paramètres, vous acceptez l'utilisation de cookies susceptibles de réaliser des statistiques de visite. Cliquez ici pour plus d'informations