Maison 98m² à barbazan-debat

— Barbazan-Debat 65690 —
229 000 €
99 m² / 213 m²
4 pièces
parkingbalcon/terrassejardin

L'agence Foch vous présente un nouveau programme immobilier de qualité :
Maison neuve 4 pièces – Environnement résidentiel et calme

Cette charmante maison neuve, située dans un quartier paisible, sera idéale pour une vie de famille sereine.Livraison prévue sous 15 mois.

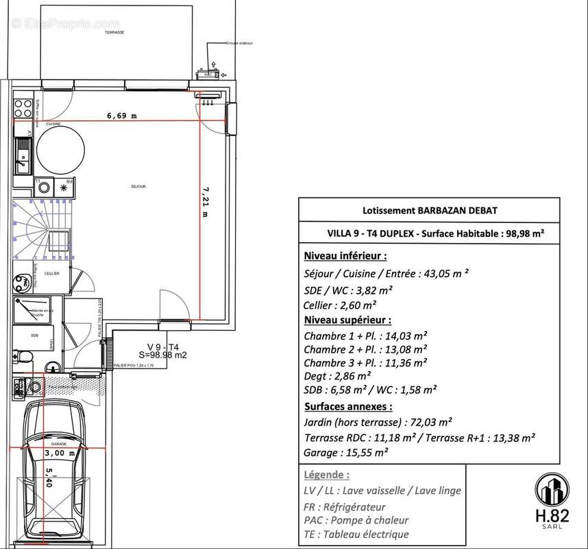
Elle offrira au rez-de-chaussée :
Une vaste pièce de vie lumineuse de 43 m²
Une salle d'eau avec WC
Un cellier pratique
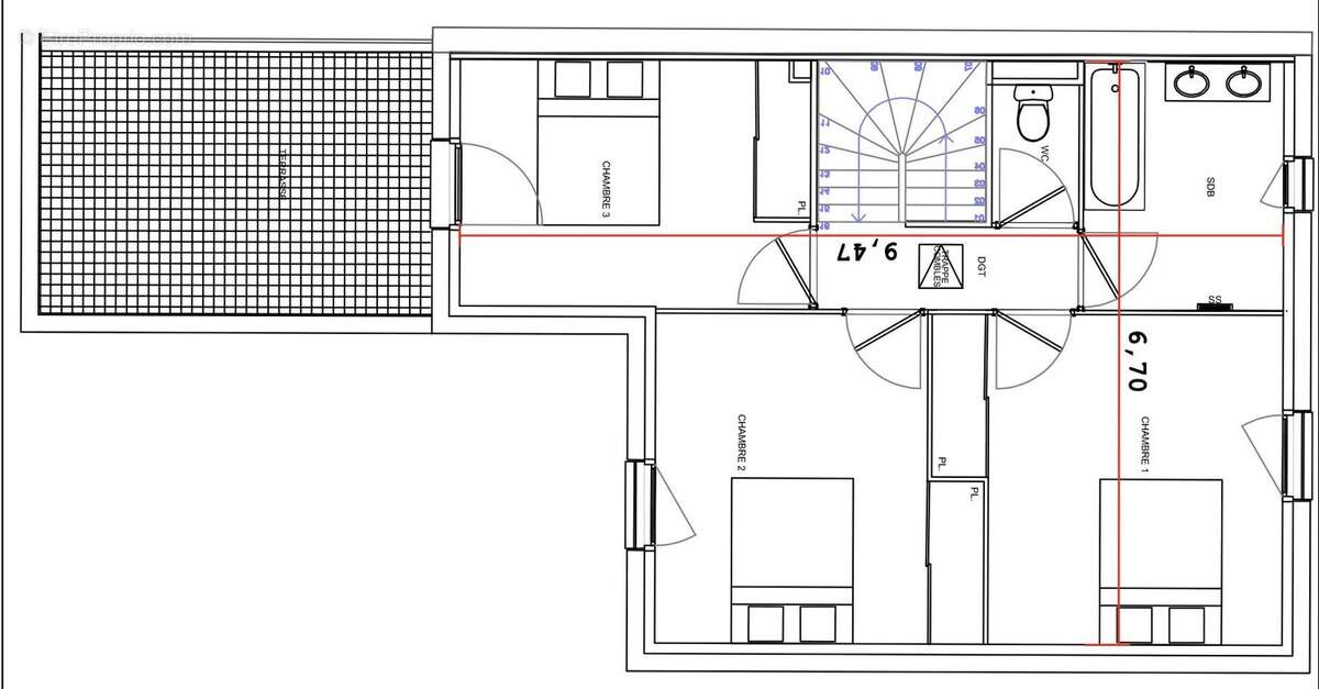
À l'étage :
Trois grandes chambres avec placards intégrés
Une salle de bain spacieuse
Un WC indépendant
Le tout complété par un joli jardin privatif et deux terrasses ( une en RDC et une à l'étage), parfaits pour profiter des beaux jours.

? Intéressé(e) ? Contactez dès maintenant William DIOP au [Coordonnées masquées] pour obtenir plus d'informations.

Honoraires à la charge du vendeur. DPE vierge. Les informations sur les risques auxquels ce bien est exposé sont disponibles sur le site Géorisques : georisques.gouv.fr.
.
Agence Foch Tarbes
111 bis rue Maréchal Foch
[Coordonnées masquées]
Voir plus

Référence: 781-AGENCEFOCH
Honoraires à la charge du vendeur.
DPE
A
B
C
D
E
F
G
GES
A
B
C
D
E
F
G

Prêt immobilier

Vous souhaitez connaître votre capacité d’emprunt et trouver le meilleur crédit immobilier ?
Réaliser une simulation gratuite

Maison à BARBAZAN-DEBAT
Maison à BARBAZAN-DEBAT
Maison à BARBAZAN-DEBAT
Maison à BARBAZAN-DEBAT
Maison à BARBAZAN-DEBAT
Ce site est protégé par reCAPTCHA la Politique de confidentialité et les Conditions d’utilisation de Google s’appliquent.
Obtenir un prêt immobilier au meilleur taux ?

En poursuivant votre navigation sans modifier vos paramètres, vous acceptez l'utilisation de cookies susceptibles de réaliser des statistiques de visite. Cliquez ici pour plus d'informations