Bénéficiez des services de nos partenaires locaux soigneusement sélectionnés
pour vous accompagner dans votre parcours d'achat immobilier

Les hesperides résidence sénior.

— Levallois-Perret 92300 —
233 200 €
40 m²
1 pièce
balcon/terrasseascenseur

Nos partenaires locaux
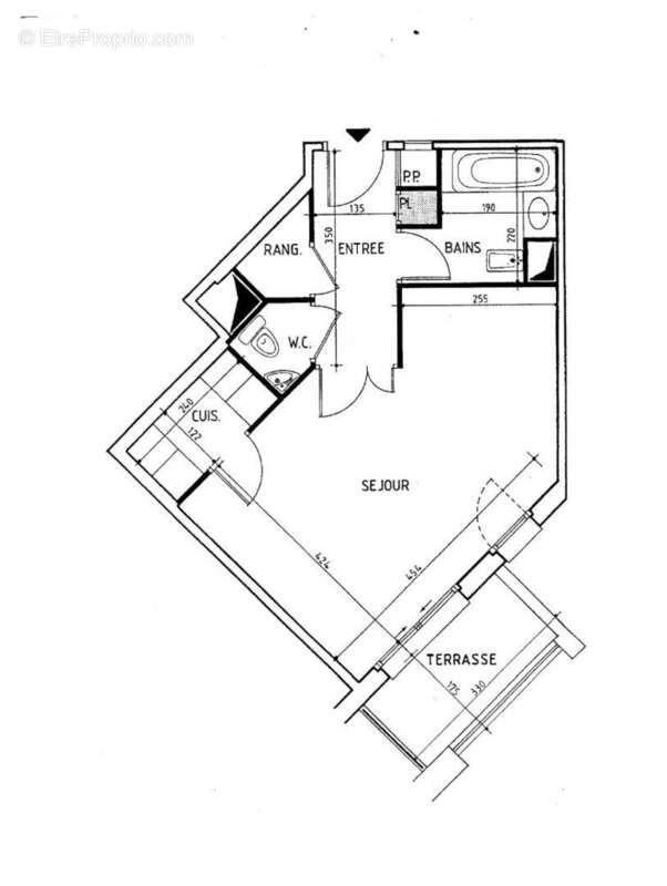
La confortable résidence de services "Les Hespérides" est ouverte à tous ! Seniors, investisseurs voire aux plus jeunes également. Seule condition : s'acquitter des charges de copropriété plus importantes au regard des services à disposition mais aussi possibiité de crédit d'impôts de 50% sur les services à la personne (éligibles dans la limite des plafonds légaux) et prix d'acquisition très raisonnable pour la commune permettant de s'offrir les services : Des hôtesses d'accueil et un veilleur de nuit 24h/24, pour une intervention jour et nuit, un dispositif de surveillance y compris dans les caves et parkings, un délicieux restaurant ou une livraison de repas dans les appartements, un salon de petit déjeuner, de thé et de bridge, un jardin intérieur, une bibliothèque, une salle de gymnastique avec accès libre et un cours deux fois par semaine, des projections de films, deux chambres d'hôte... La vie coconnée en somme. Ce studio de 40m2, ouvert sur un balcon-terrasse exposé plein sud sur le jardin et doté d'une alcove acceuillant l'espace nuit, a été entièrement rénové. Il est composé également d'une entrée, d'une cuisine, d'une salle de douche, d'un WC avec lave mains et d'un dressing. Cave en sous-sol. Les charges de copropriété sont de 900 euros par mois environ, comprenant l'ensemble des services ainsi que l'eau chaude et froide. Le chauffage étant individuel électrique. (6.00 % honoraires TTC à la charge de l'acquéreur.) Copropriété de 123 lots - dont 76 lots habitation. (Pas de procédure en cours). Charges annuelles : 9932 euros.
Voir plus

Référence: 529
Bien en copropriété. Nombre de lots : 123. Charges de copropriété : 9932 €.
Honoraires d'agence de 6% à la charge de l'acquéreur
Barème des honoraires
DPE
A
B
C
D
E
F
G
GES
A
B
C
D
E
F
G

Prêt immobilier

Vous souhaitez connaître votre capacité d’emprunt et trouver le meilleur crédit immobilier ?
Réaliser une simulation gratuite

Appartement à LEVALLOIS-PERRET
Appartement à LEVALLOIS-PERRET
Appartement à LEVALLOIS-PERRET
Appartement à LEVALLOIS-PERRET
Appartement à LEVALLOIS-PERRET
Appartement à LEVALLOIS-PERRET
Appartement à LEVALLOIS-PERRET
Appartement à LEVALLOIS-PERRET
Appartement à LEVALLOIS-PERRET
Appartement à LEVALLOIS-PERRET
Appartement à LEVALLOIS-PERRET
Ce site est protégé par reCAPTCHA la Politique de confidentialité et les Conditions d’utilisation de Google s’appliquent.
Obtenir un prêt immobilier au meilleur taux ?

En poursuivant votre navigation sans modifier vos paramètres, vous acceptez l'utilisation de cookies susceptibles de réaliser des statistiques de visite. Cliquez ici pour plus d'informations