Bénéficiez des services de nos partenaires locaux soigneusement sélectionnés
pour vous accompagner dans votre parcours d'achat immobilier

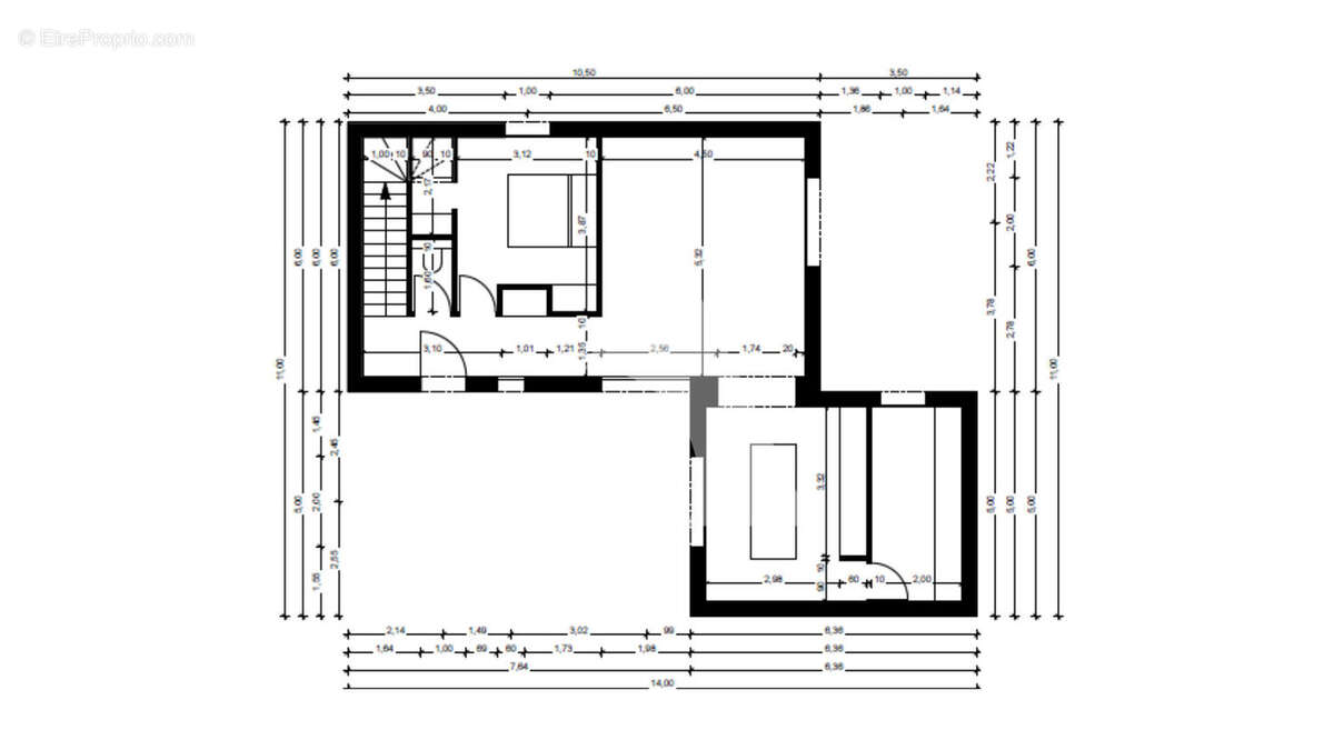
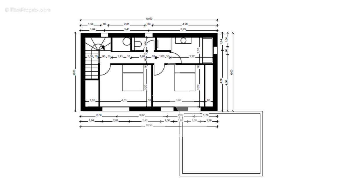
Maison l'isle sur la sorgue 4 pièces 135 m2

— L'isle-Sur-La-Sorgue 84800 —
330 000 €
135 m² / 390 m²
4 pièces
jardin

Nos partenaires locaux
L'agence Sixième Avenue Cavaillon vous propose sur la commune de L'Isle-sur-la-Sorgue, une maison neuve vendue hors d'eau hors d'air, offrant une base solide pour un projet 100 % personnalisable. Le projet initial prévoit : - 3 chambres - 1 salle d'eau - 1 cuisine ouverte sur un salon/séjour spacieux La construction est hors d'eau hors d'air : les murs, la toiture, les menuiseries extérieures et la structure principale sont réalisés, vous laissant toute liberté pour l'aménagement intérieur, les finitions et les équipements. Vous pouvez ainsi adapter la distribution, les matériaux et les prestations à vos envies ou à votre budget. Le permis de construire est en cours de validité, vous permettant de finaliser le projet sans délai administratif. Une opportunité rare pour concevoir votre future maison sur mesure, tout en bénéficiant d'une base déjà existante. Pour plus d'informations ou pour organiser une visite, contactez Jean Philippe Marcy / [Coordonnées masquées] [Coordonnées masquées] Les informations sur les risques auxquels ce bien est exposé sont disponibles sur le site Géorisques : www.georisques.gouv.fr
Voir plus

Référence: 83
Honoraires à la charge du vendeur.
Barème des honoraires

Prêt immobilier

Vous souhaitez connaître votre capacité d’emprunt et trouver le meilleur crédit immobilier ?
Réaliser une simulation gratuite

Maison à L'ISLE-SUR-LA-SORGUE
Maison à L'ISLE-SUR-LA-SORGUE
Maison à L'ISLE-SUR-LA-SORGUE
Ce site est protégé par reCAPTCHA la Politique de confidentialité et les Conditions d’utilisation de Google s’appliquent.
Obtenir un prêt immobilier au meilleur taux ?

En poursuivant votre navigation sans modifier vos paramètres, vous acceptez l'utilisation de cookies susceptibles de réaliser des statistiques de visite. Cliquez ici pour plus d'informations