Bénéficiez des services de nos partenaires locaux soigneusement sélectionnés
pour vous accompagner dans votre parcours d'achat immobilier

Maison l'isle sur la sorgue 4 pièces 135 m2

— L'isle-Sur-La-Sorgue 84800 —
380 000 €
135 m² / 350 m²
4 pièces
jardin

Nos partenaires locaux
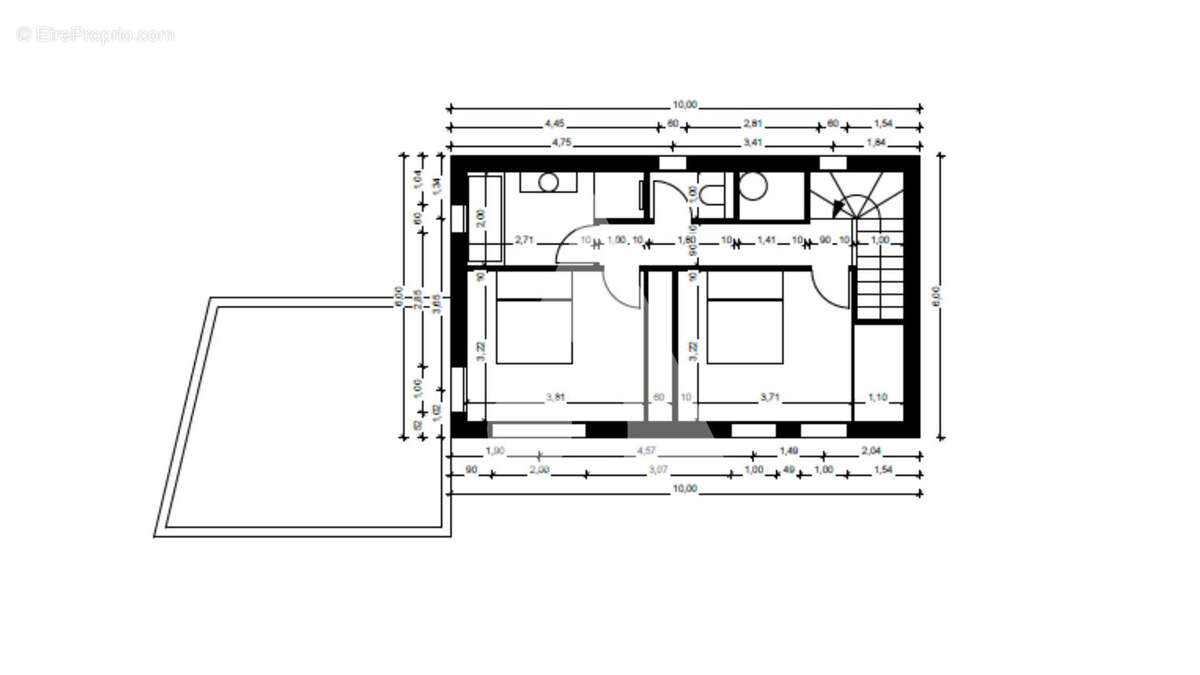
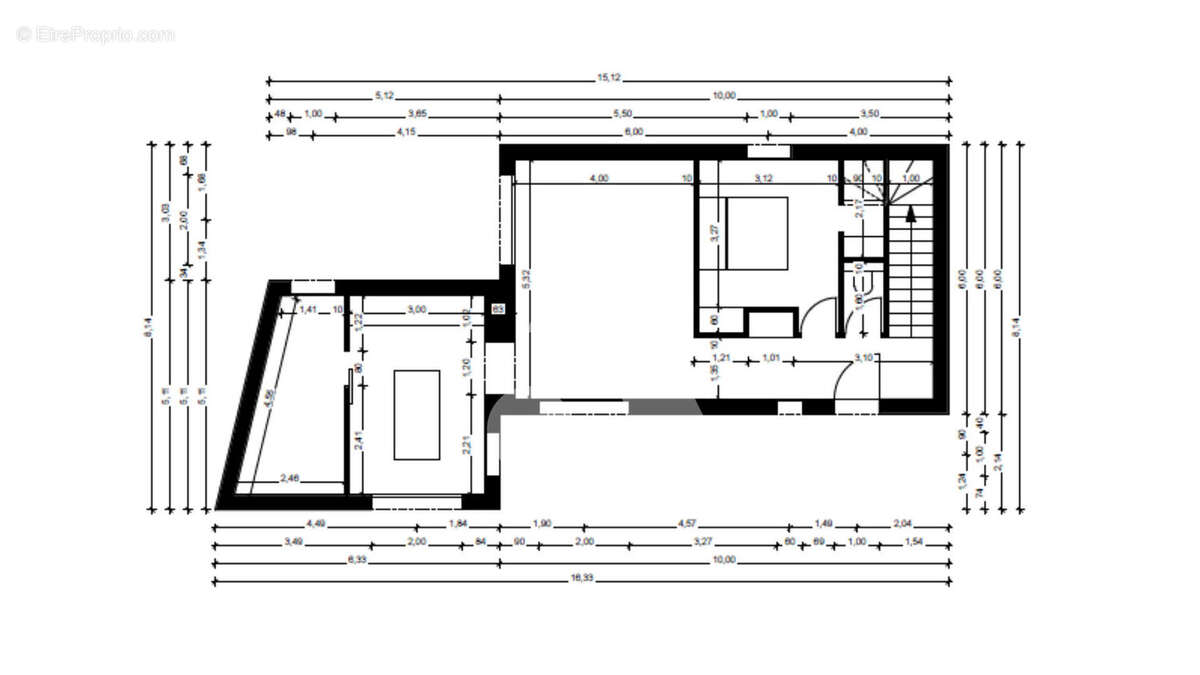
L'agence Sixième Avenue Cavaillon vous présente sur la commune de L'Isle-sur-la-Sorgue, une maison à vendre, en cours de construction, terminée à 80%, offrant un fort potentiel d'aménagement selon vos goûts et vos besoins. Le projet initial prévoit une maison de plain-pied composée de : - 3 chambres - 1 salle d'eau - 1 cuisine ouverte sur un salon/séjour lumineux La structure principale est déjà réalisée, laissant place aux derniers travaux d'aménagement intérieur et de finitions, que vous pourrez personnaliser à votre convenance. Permis de construire en cours de validité, vous permettant de poursuivre et finaliser le projet sans démarches administratives supplémentaires. Ce bien représente une opportunité idéale pour les personnes souhaitant créer un chez-soi à leur image, sans les contraintes d'un chantier à démarrer de zéro. Pour plus d'informations ou pour organiser une visite, contactez Jean Philippe Marcy / [Coordonnées masquées] [Coordonnées masquées] Les informations sur les risques auxquels ce bien est exposé sont disponibles sur le site Géorisques : www.georisques.gouv.fr
Voir plus

Référence: 82
Honoraires à la charge du vendeur.
Barème des honoraires

Prêt immobilier

Vous souhaitez connaître votre capacité d’emprunt et trouver le meilleur crédit immobilier ?
Réaliser une simulation gratuite

Maison à L'ISLE-SUR-LA-SORGUE
Maison à L'ISLE-SUR-LA-SORGUE
Maison à L'ISLE-SUR-LA-SORGUE
Ce site est protégé par reCAPTCHA la Politique de confidentialité et les Conditions d’utilisation de Google s’appliquent.
Obtenir un prêt immobilier au meilleur taux ?

En poursuivant votre navigation sans modifier vos paramètres, vous acceptez l'utilisation de cookies susceptibles de réaliser des statistiques de visite. Cliquez ici pour plus d'informations