Appartement 138m² à biot

— Biot 06410 —
1 070 000 €
138 m²
4 pièces
parkingbalcon/terrasse

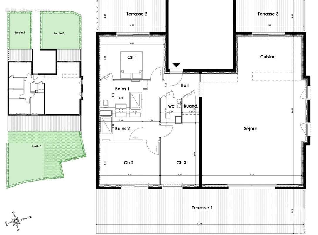
Iad France - Arnaud Delhorbe ([Coordonnées masquées]) vous propose : T4 traversant de 138 m² environ, avec jardins privatifs de 215 m² environ et 70 m² environ de terrasses, situé à pied du village de Biot.
En rentrant sur la gauche, un vaste séjour avec cuisine ouverte de 71 m² environ.
Sur la droite, 3 chambres, dont 1 en suite + 1 salle de bain et une buanderie.

Ses points forts :
-Ses volumes et extérieurs
-Résidence sécurisée (portes blindées et caméras de vidéosurveillance) et intimiste
-Petite copropriété : 7 logements
-Conçue dans une démarche éco-responsable (norme RE 2020)
-Finitions haut de gamme
- Plusieurs choix d'aménagements intérieurs possibles
- Climatisation gainable réversible
-Piscine
-Exposition Sud Est
-Garage boxé en sous-sol
-A pied des écoles et commerces
-Un olivier centenaire dans le jardin privatif
- Frais de notaire réduits

Livraison 1er semestre 2027

Honoraires d'agence à la charge du vendeur. Bien non soumis au DPE. Les informations sur les risques auxquels ce bien est exposé sont disponibles sur le site Géorisques : www.georisques.gouv.fr. La présente annonce immobilière a été rédigée sous la responsabilité éditoriale de M. Arnaud Delhorbe EI (ID 87541), mandataire indépendant en immobilier (sans détention de fonds), agent commercial de la SAS I@D France immatriculé au RSAC de ANTIBES sous le numéro 939955985, titulaire de la carte de démarchage immobilier pour le compte de la société I@D France SAS.
Retrouvez tous nos biens sur notre site internet. www.iadfrance.fr.
Informations LOI ALUR :
Honoraires charge vendeur. (gedeon_6727_31243521)
Voir plus

Référence: 1760750-1
Honoraires à la charge du vendeur.

Prêt immobilier

Vous souhaitez connaître votre capacité d’emprunt et trouver le meilleur crédit immobilier ?
Réaliser une simulation gratuite

Photo 1 - Appartement à BIOT
Photo 1
Photo 2 - Appartement à BIOT
Photo 2
Photo 3 - Appartement à BIOT
Photo 3
Photo 4 - Appartement à BIOT
Photo 4
Photo 5 - Appartement à BIOT
Photo 5
Photo 6 - Appartement à BIOT
Photo 6
Ce site est protégé par reCAPTCHA la Politique de confidentialité et les Conditions d’utilisation de Google s’appliquent.
Obtenir un prêt immobilier au meilleur taux ?

En poursuivant votre navigation sans modifier vos paramètres, vous acceptez l'utilisation de cookies susceptibles de réaliser des statistiques de visite. Cliquez ici pour plus d'informations