Bénéficiez des services de nos partenaires locaux soigneusement sélectionnés
pour vous accompagner dans votre parcours d'achat immobilier

Appartement t4 avec jardin et terrasse à domène !

— Domene 38420 —
357 500 €
83 m²
4 pièces
parking

Nos partenaires locaux
ENCORE DISPONIBLE !
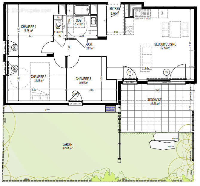
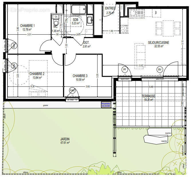
L'immobilière Rosier vous propose à la vente un appartement de 4 pièces dont 3 chambres sur la commune de Domène. Situé au rez-de-chaussée de la résidence, l'appartement est exposé Sud-Ouest. Il dispose d'un séjour/cuisine, d'une terrasse et d'un jardin privatif de plus de 65 m2 ! Les chambres sont spacieuses et les toilettes sont séparées de la salle d'eau. Deux parkings sont compris dans le prix de vente.
Emménagement prévu à la fin de l'année 2025, saissisez l'occasion d'un cadre de vie apaisée !

Pour effectuer une réservation, Bénédicte ROSIER au O676814360
Voir plus

Barème des honoraires

Prêt immobilier

Vous souhaitez connaître votre capacité d’emprunt et trouver le meilleur crédit immobilier ?
Réaliser une simulation gratuite

Appartement à DOMENE
Appartement à DOMENE
Ce site est protégé par reCAPTCHA la Politique de confidentialité et les Conditions d’utilisation de Google s’appliquent.
Obtenir un prêt immobilier au meilleur taux ?

En poursuivant votre navigation sans modifier vos paramètres, vous acceptez l'utilisation de cookies susceptibles de réaliser des statistiques de visite. Cliquez ici pour plus d'informations