Bénéficiez des services de nos partenaires locaux soigneusement sélectionnés
pour vous accompagner dans votre parcours d'achat immobilier

*** sud hôpital saint-louis - proche du canal saint martin - appartement en open space avec 3 mètres de hauteur sous plafond ***

— Paris-10e 75010 —
630 000 €
66 m²
2 pièces

Nos partenaires locaux
*** SUD hôpital Saint-Louis - Proche du CANAL SAINT MARTIN - Appartement en OPEN SPACE avec 3 mètres de hauteur sous plafond ***

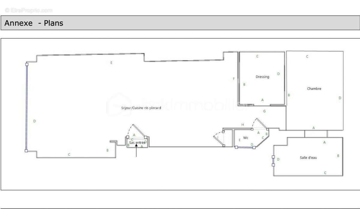
Ne manquez pas cet ANCIEN ATELIER, rare dans ce quartier très prisé.

Ce magnifique ancien atelier a été transformé en un appartement plein de charme, doté d'une belle verrière dans le séjour. La grande pièce à vivre, avec sa cuisine ouverte, est parfaite pour recevoir et partager des moments conviviaux. Vous disposez d'une chambre principale d'environ 10 m² et d'une chambre complémentaire d'environ 6 m2 qui peut être utilisée comme chambre d'amis, d'enfant, dressing ou bureau.

La salle de bain bénéficie d'une superbe luminosité zénithale grâce à sa verrière en hauteur, offrant une expérience de détente unique. L'appartement se distingue par son esprit loft en open space et sa grande hauteur sous plafond d'environ 3 mètres. Toilettes séparées. 2 caves complètent ce logement.

Idéalement situé, l'appartement est proche des stations de métro Goncourt (Ligne 11) et Colonel Fabien (Ligne 2), et se trouve à seulement 10 minutes à pied de la place de la République.

Cette annonce référence 287589 vous est présentée par votre agent commercial BSK Immobilier EMMANUEL BLANCHET (EI) immatriculé au RSAC de PARIS-3E-ARRONDISSEMENT (75003) sous le numéro 98[Coordonnées masquées]14.

Prix du bien : 630 000,00 €
Les honoraires d'agence sont à la charge du vendeur.

A propos de la copropriété :
Pas de procédure en cours.
Nombre de lots : 48
Charges prévisionnelles annuelles : 2 400,00 €

A propos des performances énergétiques :
Date de réalisation du diagnostic énergétique : 22/05/2025
Score DPE : 210 kWhEP/m²/an
Score GES : 45 kgepCO2/m²/an
Montant estimé des dépenses annuelles d'énergie pour un usage standard : entre 1290.00 € et 1790.00 € par an. Prix moyens des énergies indexés sur l'année 2023 (abonnements compris).

Les informations sur les risques auxquels ce bien est exposé sont disponibles sur le site Géorisques : www.georisques.gouv.fr
Voir plus

Référence: 287589
Bien en copropriété. Nombre de lots : 48. Charges de copropriété : 200 €.
Honoraires à la charge du vendeur.
DPE
A
B
C
D
E
F
G
GES
A
B
C
D
E
F
G

Prêt immobilier

Vous souhaitez connaître votre capacité d’emprunt et trouver le meilleur crédit immobilier ?
Réaliser une simulation gratuite

Appartement à PARIS-10E
Appartement à PARIS-10E
Appartement à PARIS-10E
Appartement à PARIS-10E
Appartement à PARIS-10E
Appartement à PARIS-10E
Appartement à PARIS-10E
Appartement à PARIS-10E
Appartement à PARIS-10E
Appartement à PARIS-10E
Appartement à PARIS-10E
Appartement à PARIS-10E
Appartement à PARIS-10E
Ce site est protégé par reCAPTCHA la Politique de confidentialité et les Conditions d’utilisation de Google s’appliquent.
Obtenir un prêt immobilier au meilleur taux ?

En poursuivant votre navigation sans modifier vos paramètres, vous acceptez l'utilisation de cookies susceptibles de réaliser des statistiques de visite. Cliquez ici pour plus d'informations