Bénéficiez des services de nos partenaires locaux soigneusement sélectionnés
pour vous accompagner dans votre parcours d'achat immobilier

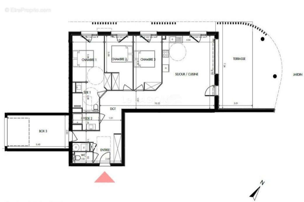
Appartement 92m² à saint-cyprien

— Saint-Cyprien 66750 —
760 000 €
93 m²
4 pièces
parkingbalcon/terrasseascenseur

Nos partenaires locaux
RÉSIDENCE DE L'ART : faisant face à la Plage de l'Art, dans un cadre privilégié et dans une copropriété de standing sécurisée, avec ascenseur, de 12 appartements .
En rez-de jardin, appartement d'exception de type 4 d'une superficie 93 m² comprenant une entrée avec placard, un séjour-salon-cuisine contemporaine semi-équipée et aménagée d'environ 32 m² ouvert sur une vaste jardin de plus de 330 m2 avec une vue imprenable sur la mer, trois chambres avec placard aménagé dont une chambre parentale (salle d'eau avec WC), une salle d'eau avec douche à l'italienne, un WC indépendant.
L'appartement dispose d'un garage attenant de plain-pied d'une superficie de 15 m² et d'un jardin privatif.

Prestations : normes de construction RE2020, panneaux photovoltaïques en toiture, menuiseries en aluminium ou PVC anthracite, VRE, porte palière à âme pleine stratifiée équipée de serrures 3 points, garde-corps thermo laqué et verre opaque, carrelage grès cérame 60X60 et faïence dans les salles d'eau, dalles sur plots pour le revêtement des terrasses, prise antenne et RJ45, ballon thermodynamique, climatisation gainable et sèche serviettes, VMC.

FRAIS DE NOTAIRE RÉDUITS
Voir plus

Référence: 860V625A
Bien en copropriété. Nombre de lots : 12.
Honoraires à la charge du vendeur.

Prêt immobilier

Vous souhaitez connaître votre capacité d’emprunt et trouver le meilleur crédit immobilier ?
Réaliser une simulation gratuite

Appartement à SAINT-CYPRIEN
Appartement à SAINT-CYPRIEN
Appartement à SAINT-CYPRIEN
Appartement à SAINT-CYPRIEN
Appartement à SAINT-CYPRIEN
Appartement à SAINT-CYPRIEN
Ce site est protégé par reCAPTCHA la Politique de confidentialité et les Conditions d’utilisation de Google s’appliquent.
Obtenir un prêt immobilier au meilleur taux ?

En poursuivant votre navigation sans modifier vos paramètres, vous acceptez l'utilisation de cookies susceptibles de réaliser des statistiques de visite. Cliquez ici pour plus d'informations