Bénéficiez des services de nos partenaires locaux soigneusement sélectionnés
pour vous accompagner dans votre parcours d'achat immobilier

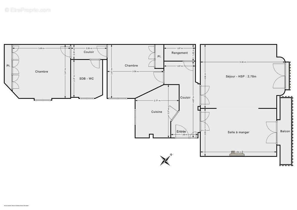
Appartement 83m² à paris-18e

— Paris-18e 75018 —
730 000 €
83 m²
4 pièces
balcon/terrasseascenseur

Nos partenaires locaux
75018 - MARCADET POISSONNIERS - 2 CHAMBRES - ASC - Rue Ordener - Bel appartement Haussmannien de 83.20m² 2 chambres au 2è étage avec ascenseur et balcon. L'appartement comprend un grand double séjour de 35m² donnant sur un balcon avec une jolie vue sur le feuillage, une cuisine séparée, deux chambres au calme sur cour, une salle de bains avec des toilettes. Cuisine et salle de bains à rafraîchir. Tout le charme de l'ancien : parquet en point de Hongrie, moulures et cheminée, belle hauteur sous plafond. Un local vélo et une cave.
Voir plus

Référence: 1192
DPE
A
B
C
D
E
F
G
GES
A
B
C
D
E
F
G

Prêt immobilier

Vous souhaitez connaître votre capacité d’emprunt et trouver le meilleur crédit immobilier ?
Réaliser une simulation gratuite

Appartement à PARIS-18E
Appartement à PARIS-18E
Appartement à PARIS-18E
Appartement à PARIS-18E
Appartement à PARIS-18E
Appartement à PARIS-18E
Appartement à PARIS-18E
Appartement à PARIS-18E
Appartement à PARIS-18E
Ce site est protégé par reCAPTCHA la Politique de confidentialité et les Conditions d’utilisation de Google s’appliquent.
Obtenir un prêt immobilier au meilleur taux ?

En poursuivant votre navigation sans modifier vos paramètres, vous acceptez l'utilisation de cookies susceptibles de réaliser des statistiques de visite. Cliquez ici pour plus d'informations