Bénéficiez des services de nos partenaires locaux soigneusement sélectionnés
pour vous accompagner dans votre parcours d'achat immobilier

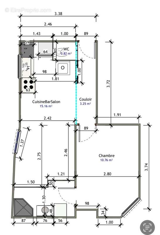
Appartement 33m² à paris-15e

— Paris-15e 75015 —
395 000 €
33 m²
2 pièces

Nos partenaires locaux
Bien à rénover (inclus dans le prix de vente la rénovation et les meubles)
Beau projet imaginé et optimisé par un architecte
2 pièces bien agencé avec de belles prestations, confort de vie équivalent à un 45m2
Projet d'appartement climatisé
1er étage d'un immeuble haussmannien
Prévoir des frais de conception déductible du prix de vente
Composition du prix :
Bien : 290 000 €
Conception : 10 000 €
Travaux : 95 000 €
Meubles offerts
DPE cible C
TF 300€ / Charges 70 €
Photos et Plans non contractuelles

Dans une copropriété de 15 lots. Aucune procédure n'est en cours. Non soumis au DPE. Les informations sur les risques auxquels ce bien est exposé sont disponibles sur le site Géorisques : georisques.gouv.fr.
Voir plus

Référence: VA1905-ALANDV
Bien en copropriété. Nombre de lots : 15.
Honoraires à la charge de l'acquéreur.

Prêt immobilier

Vous souhaitez connaître votre capacité d’emprunt et trouver le meilleur crédit immobilier ?
Réaliser une simulation gratuite

Appartement à PARIS-15E
Appartement à PARIS-15E
Ce site est protégé par reCAPTCHA la Politique de confidentialité et les Conditions d’utilisation de Google s’appliquent.
Obtenir un prêt immobilier au meilleur taux ?

En poursuivant votre navigation sans modifier vos paramètres, vous acceptez l'utilisation de cookies susceptibles de réaliser des statistiques de visite. Cliquez ici pour plus d'informations