Bénéficiez des services de nos partenaires locaux soigneusement sélectionnés
pour vous accompagner dans votre parcours d'achat immobilier

Maison de charme avec vue exceptionnelle sur les bocages normands - 3 chambres - petite dépendance et garage

— Saint-Germain-De-Livet 14100 —
273 800 €
120 m² / 1 000 m²
5 pièces
parkingbalcon/terrassejardin

Nos partenaires locaux
Vous rêvez d'un coin de nature, d'authenticité et d'élégance dans un cadre bucolique ? Cette propriété de caractère d'environ 120 m2 édifiée à Saint Germain de Livet, véritable perle du Pays d'Auge, est faite pour vous.

Dès l'entrée, le charme opère. Cette maison normande traditionnelle, entourée d'un jardin planté et arboré, vous accueille avec chaleur. À l'intérieur, la lumière naturelle baigne les pièces de vie tandis que la superbe vue dégagée sur les pâturages vous invite à la contemplation.

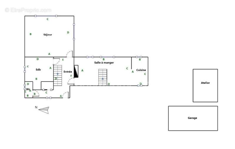
La maison en rez de chaussée se compose d' une entrée spacieuse dotée de jolies pierres apparentes, un salon avec sa vue dominante sur la campagne vallonnée, vous promet des instants de sérénité inégalés, une salle de bains et douche,
une salle à manger et sa cheminée d'époque offrent un espace idéal pour partager des repas conviviaux, bénéficiant de l' accès sur la terrasse et le jardin grâce aux portes fenêtres, un autre coin repas conserve cette ambiance rustique et sincère qui fait tout le charme des demeures normandes, une cuisine reste à être aménagée à votre goût.

À l'étage, trois chambres, dont une en mezzanine, offrent confort et quiétude, baignées de lumière naturelle, vous disposez également d'un petit espace grenier.

À l'extérieur, la terrasse appelle à des moments de détente au cœur du bocage, face à un panorama d'exception. Un garage, une petite dépendance (atelier).

Localisation idéale :
Située à seulement quelques minutes de Lisieux et à une trentaine de kilomètres de la côte fleurie (Deauville, Trouville), cette propriété bénéficie d'un cadre privilégié. Le village de Saint Germain de Livet, dominé par son célèbre château à colombages et pierres roses, offre un décor digne d'une carte postale.
Vous serez séduit par la tranquillité des lieux et le charme de ce patrimoine local préservé, ce bien est une réelle superbe opportunité à saisir ! Les honoraires sont à la charge du vendeur.
Les informations sur les risques auxquels ce bien est exposé sont disponibles sur le site Géorisques : www. georisques. gouv. fr.

Contactez Aurélie DURAND-ADAM Entrepreneur Individuel à Responsabilité Limitée, Agent commercial OptimHome (RSAC N°533 475 828 Greffe de CAEN) [Coordonnées masquées] (réf. 584337 )
Voir plus

Référence: 830031952186
Honoraires à la charge du vendeur.
DPE
A
B
C
D
E
F
G
GES
A
B
C
D
E
F
G

Prêt immobilier

Vous souhaitez connaître votre capacité d’emprunt et trouver le meilleur crédit immobilier ?
Réaliser une simulation gratuite

Maison à SAINT-GERMAIN-DE-LIVET
Maison à SAINT-GERMAIN-DE-LIVET
Maison à SAINT-GERMAIN-DE-LIVET
Maison à SAINT-GERMAIN-DE-LIVET
Maison à SAINT-GERMAIN-DE-LIVET
Maison à SAINT-GERMAIN-DE-LIVET
Maison à SAINT-GERMAIN-DE-LIVET
Maison à SAINT-GERMAIN-DE-LIVET
Maison à SAINT-GERMAIN-DE-LIVET
Maison à SAINT-GERMAIN-DE-LIVET
Maison à SAINT-GERMAIN-DE-LIVET
Maison à SAINT-GERMAIN-DE-LIVET
Maison à SAINT-GERMAIN-DE-LIVET
Maison à SAINT-GERMAIN-DE-LIVET
Maison à SAINT-GERMAIN-DE-LIVET
Maison à SAINT-GERMAIN-DE-LIVET
Maison à SAINT-GERMAIN-DE-LIVET
Maison à SAINT-GERMAIN-DE-LIVET
Maison à SAINT-GERMAIN-DE-LIVET
Maison à SAINT-GERMAIN-DE-LIVET
Maison à SAINT-GERMAIN-DE-LIVET
Ce site est protégé par reCAPTCHA la Politique de confidentialité et les Conditions d’utilisation de Google s’appliquent.
Obtenir un prêt immobilier au meilleur taux ?

En poursuivant votre navigation sans modifier vos paramètres, vous acceptez l'utilisation de cookies susceptibles de réaliser des statistiques de visite. Cliquez ici pour plus d'informations