Bénéficiez des services de nos partenaires locaux soigneusement sélectionnés
pour vous accompagner dans votre parcours d'achat immobilier

Vente maison 3 pièces de 124m² - 38440 artas

— Artas 38440 —
215 000 €
124 m² / 284 m²
3 pièces
parkingjardin

Nos partenaires locaux
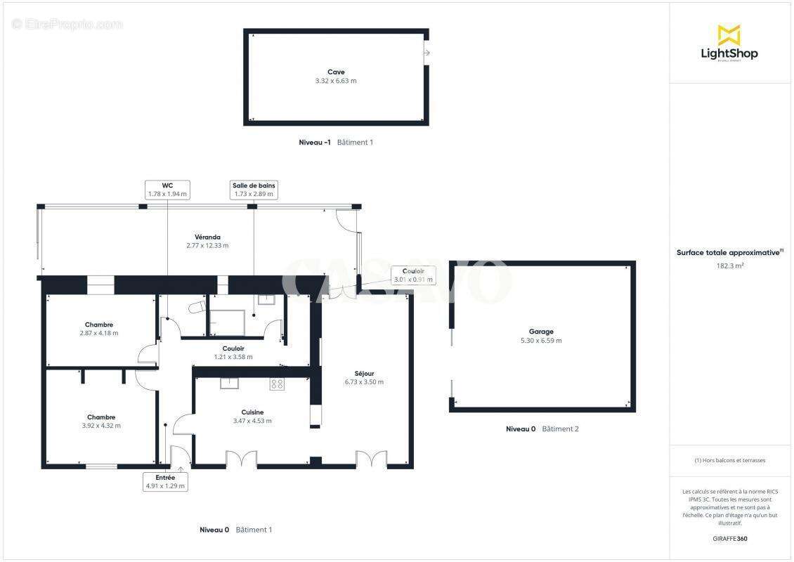
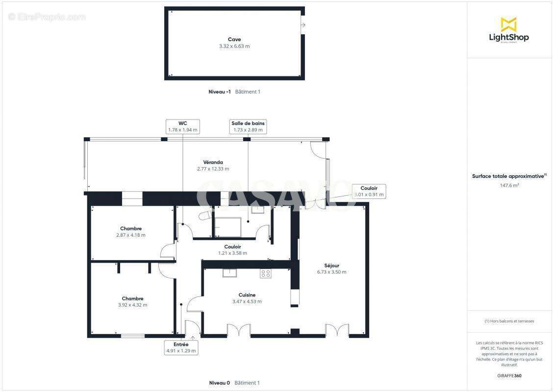
Casavo vous propose à la vente ce spacieux appartement de 124 m², situé à Artas, dans un environnement calme et verdoyant, au cœur d'un petit lotissement proche des sentiers de balade.

T3 transformable en T5, adapté PMR .

Situé au rez-de-chaussée d'une maison divisée en deux logements, ce bien rare à la vente bénéficie d'un jardin privatif de 300 m² et d'un environnement paisible à seulement 14 km de Bourgoin-Jallieu et 22 km de l'aéroport de Lyon-Saint-Exupéry (Satolas).

Caractéristiques principales :

Appartement traversant Est/Ouest, très lumineux
Adapté aux personnes à mobilité réduite (PMR)
Grande pièce de vie de 23 m² ouverte sur une cuisine américaine équipée de 15 m²
Deux chambres spacieuses : 16 m² et 12 m²
Salle de bain, WC séparé, buanderie
Cave et garage indépendant de 34 m²
Grande véranda de 34 m² pouvant être aménagée en espace de vie supplémentaire
Terrain annexe en copropriété : idéal pour un potager ou un coin détente

Potentiel d'aménagement :
Grâce à une configuration intelligente, il est possible de transformer la cuisine actuelle et une partie de la véranda en chambres supplémentaires et une autre partie en cuisine. Ce projet permettrait de créer jusqu'à 4 chambres. Les plans de transformation sont disponibles sur demande.

Informations complémentaires :
Taxe foncière, charges de copropriété et montant annuel des charges : en cours de rédaction

Diagnostics en cours.

Dossier Géorisques consultable via le lien officiel : www.georisques.gouv.fr

Ce bien est commercialisé par Casavo.

Intéressé par ce bien ? Plus d'informations sur le site de Casavo.
Voir plus

Référence: 33921
Bien en copropriété. Nombre de lots : 2.
Honoraires à la charge du vendeur.
DPE
A
B
C
D
E
F
G
GES
A
B
C
D
E
F
G

Prêt immobilier

Vous souhaitez connaître votre capacité d’emprunt et trouver le meilleur crédit immobilier ?
Réaliser une simulation gratuite

Maison à ARTAS
Maison à ARTAS
Maison à ARTAS
Maison à ARTAS
Maison à ARTAS
Maison à ARTAS
Maison à ARTAS
Maison à ARTAS
Maison à ARTAS
Maison à ARTAS
Maison à ARTAS
Maison à ARTAS
Maison à ARTAS
Maison à ARTAS
Maison à ARTAS
Maison à ARTAS
Maison à ARTAS
Maison à ARTAS
Maison à ARTAS
Maison à ARTAS
Maison à ARTAS
Maison à ARTAS
Maison à ARTAS
Maison à ARTAS
Maison à ARTAS
Maison à ARTAS
Maison à ARTAS
Maison à ARTAS
Maison à ARTAS
Maison à ARTAS
Maison à ARTAS
Maison à ARTAS
Maison à ARTAS
Maison à ARTAS
Maison à ARTAS
Maison à ARTAS
Maison à ARTAS
Maison à ARTAS
Maison à ARTAS
Maison à ARTAS
Maison à ARTAS
Maison à ARTAS
Maison à ARTAS
Maison à ARTAS
Maison à ARTAS
Ce site est protégé par reCAPTCHA la Politique de confidentialité et les Conditions d’utilisation de Google s’appliquent.
Obtenir un prêt immobilier au meilleur taux ?

En poursuivant votre navigation sans modifier vos paramètres, vous acceptez l'utilisation de cookies susceptibles de réaliser des statistiques de visite. Cliquez ici pour plus d'informations