Bénéficiez des services de nos partenaires locaux soigneusement sélectionnés
pour vous accompagner dans votre parcours d'achat immobilier

Appartement t4 de standing - jardin & terrasse

— Vourles 69390 —
443 000 €
103 m² / 22 m²
4 pièces
jardin

Nos partenaires locaux
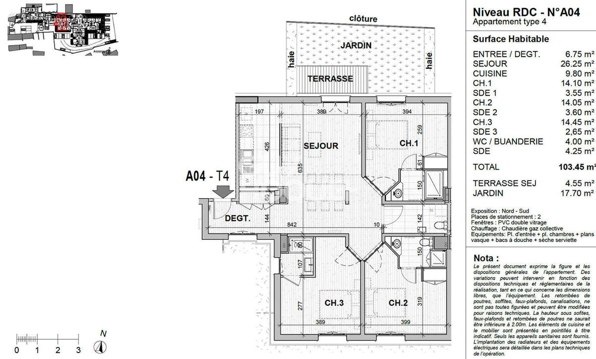
Situé en plein centre de Vourles, à deux pas des commerces, des écoles et des transports, ce magnifique appartement T4 en rez-de-chaussée prend place au sein d'un ancien EHPAD en cours de réhabilitation complète, offrant ainsi un cadre de vie unique mêlant cachet de l'ancien et confort du neuf. Avec une superficie de 103,45 m², cet appartement spacieux se compose d'une entrée avec placard, d'un grand séjour-cuisine lumineux ouvrant sur une terrasse et un jardin privatif de 22,25 m², parfaits pour profiter d'un extérieur au calme. L'espace nuit comprend trois chambres, toutes dotées de leur salle d'eau privative avec douche. Une des chambres dispose également de ses toilettes privatifs, tandis qu'un second WC indépendant est à disposition. L'appartement, traversant Nord-Sud, bénéficie d'une belle luminosité naturelle. Il est équipé de fenêtres en PVCW, du chauffage par chaudière gaz collective, et dispose de deux places de stationnement privatives. Ce bien rare allie emplacement central, prestations haut de gamme et le charme d'une réhabilitation soignée d'un bâtiment existant, idéal pour un cadre de vie paisible et moderne. A visiter sans tarder ! Le prix de vente est de 443 000euros et les honoraires sont à la charge de l'acquéreur d'un montant 4% inclus dans le prix. (4.00 % honoraires TTC à la charge de l'acquéreur.)
Voir plus

Honoraires d'agence de 4% à la charge de l'acquéreur
Barème des honoraires

Prêt immobilier

Vous souhaitez connaître votre capacité d’emprunt et trouver le meilleur crédit immobilier ?
Réaliser une simulation gratuite

Appartement à VOURLES
Appartement à VOURLES
Appartement à VOURLES
Ce site est protégé par reCAPTCHA la Politique de confidentialité et les Conditions d’utilisation de Google s’appliquent.
Obtenir un prêt immobilier au meilleur taux ?

En poursuivant votre navigation sans modifier vos paramètres, vous acceptez l'utilisation de cookies susceptibles de réaliser des statistiques de visite. Cliquez ici pour plus d'informations