Pas de terrain à La Tronche pour le moment. Découvrez dès maintenant les terrains dans le département Isère.
Bénéficiez des services de nos partenaires locaux soigneusement sélectionnés
pour vous accompagner dans votre parcours d'achat immobilier

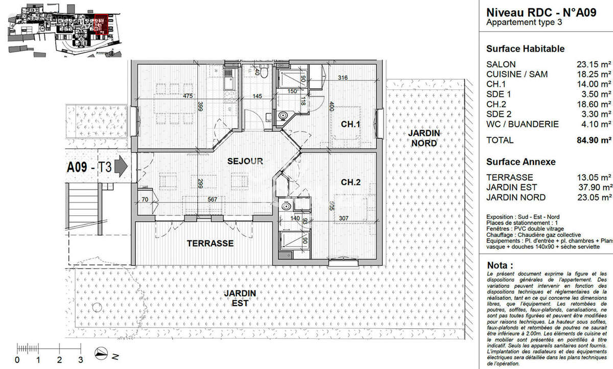
Appartement vourles 3 pièce(s) 84.9 m2

— Vourles 69390 —
414 000 €
85 m² / 74 m²
3 pièces
parkingjardin

Nos partenaires locaux
Dans un ancien EHPAD entièrement réhabilité avec des matériaux de qualité, découvrez ce spacieux appartement T3 de 84,90 m², situé en rez-de-jardin, au coeur de Vourles, à proximité immédiate des commerces, écoles et transports. Ce bien rare bénéficie d'un grand extérieur en L comprenant une terrasse et un jardin pour un total de plus de 74 m², idéal pour profiter d'un cadre verdoyant et apaisant. L'appartement se compose d'une entrée avec placard, d'un vaste séjour avec cuisine ouverte, et de deux chambres, chacune disposant de placards intégrés et de leur salle d'eau privative. Un WC indépendant ainsi qu'une buanderie complètent l'agencement intérieur, alliant confort et fonctionnalité. Les prestations sont au rendez-vous : Fenêtres en PVC double vitrage, Chauffage assuré par une chaudière collective, Place de stationnement incluse, Réhabilitation soignée dans une résidence sécurisée. Un appartement lumineux, confortable et bien situé, parfait pour une résidence principale ou un investissement patrimonial de qualité. Le prix de vente est de 414 000 euros et les honoraires sont à la charge de l'acquéreur d'un montant 4% inclus dans le prix. (4.00 % honoraires TTC à la charge de l'acquéreur.)
Voir plus

Honoraires d'agence de 4% à la charge de l'acquéreur
Barème des honoraires

Prêt immobilier

Vous souhaitez connaître votre capacité d’emprunt et trouver le meilleur crédit immobilier ?
Réaliser une simulation gratuite

Appartement à VOURLES
Appartement à VOURLES
Appartement à VOURLES
Appartement à VOURLES
Ce site est protégé par reCAPTCHA la Politique de confidentialité et les Conditions d’utilisation de Google s’appliquent.
Obtenir un prêt immobilier au meilleur taux ?

En poursuivant votre navigation sans modifier vos paramètres, vous acceptez l'utilisation de cookies susceptibles de réaliser des statistiques de visite. Cliquez ici pour plus d'informations