Maison 166m² à jonquieres

— Jonquieres 84150 —
350 000 €
166 m² / 878 m²
7 pièces
parkingbalcon/terrassejardinpiscine

Jonquières (84) – Maison familiale de 166,85 m² avec piscine et dépendances

Un cadre paisible, de beaux volumes et le confort d'une vie au calme

Prix : 375 000 €

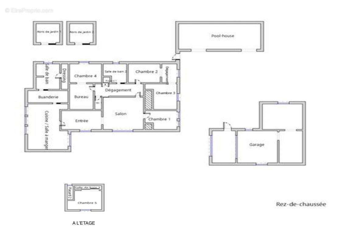
Efficity, l'agence qui estime votre bien en ligne, vous présente cette belle maison familiale de 166,85 m², implantée sur un terrain clos et arboré de 878 m², au cœur d'un environnement calme et recherché. Parfaitement entretenue et sans travaux à prévoir, elle offre espace, confort et qualité de vie à seulement quelques minutes des commodités de Jonquières.

Des espaces généreux et fonctionnels

Dès l'entrée, vous découvrez des volumes lumineux et une organisation pensée pour le bien-être de toute la famille.
La maison propose :

5 chambres spacieuses permettant d'accueillir confortablement enfants, invités ou famille recomposée

1 bureau, idéal pour le télétravail ou un espace personnel dédié

2 salles d'eau et 1 salle de bains, offrant une vraie fluidité au quotidien

Un salon et un séjour lumineux, ouvrant directement sur le jardin

Une cuisine équipée, conviviale et parfaitement intégrée à la vie de tous les jours

Une buanderie fonctionnelle, pratique et discrète

Un garage, offrant un potentiel d'aménagement selon vos besoins

Chaque pièce a été conçue pour allier confort, praticité et atmosphère chaleureuse.

Extérieurs & prestations

Les extérieurs constituent un véritable atout pour profiter pleinement des beaux jours :

Terrain clos et arboré de 878 m²

Piscine maçonnée avec son poolhouse, créant un espace détente privilégié

Deux abris de jardin, parfaits pour le rangement ou les loisirs

Dépendances offrant des possibilités supplémentaires

Maison parfaitement entretenue, prête à accueillir ses nouveaux propriétaires

Potentiel locatif intéressant, en résidence principale ou en investissement familial

Un extérieur sans vis-à-vis, où intimité, soleil et douceur de vivre se conjuguent harmonieusement.

Localisation – Jonquières (Vaucluse)

Située dans un secteur paisible et résidentiel, la maison bénéficie d'un accès rapide aux commerces, écoles et principaux axes routiers.
Un emplacement idéal pour concilier tranquillité, vie pratique et accès aux services.

Les points forts

5 chambres + 1 bureau

Piscine maçonnée + poolhouse

Garage et dépendances

Terrain clos et arboré

Aucun travaux à prévoir

Environnement calme, familial et recherché
Envie de la découvrir ?
Contactez moi dès aujourd'hui au [Coordonnées masquées] pour organiser une visite et laissez-vous séduire par le charme de cette maison familiale parfaitement entretenue.

Les informations sur les risques auxquels ce bien est exposé sont disponibles sur le site :
www.georisques.gouv.fr

Jérôme Forner – Agent commercial mandataire en immobilier – RSAC Avignon n°853 299 832
Mandant : Efficity, 48 avenue de Villiers – 75017 Paris
Carte professionnelle CPI 75[Coordonnées masquées]02 025 – CCI Paris IDF
Caisse de garantie : GALIAN Assurances, 89 rue de la Boétie, 75008 Paris
Les informations sur les risques auxquels ce bien est exposé sont disponibles sur le site Georisque : georisques. gouv. fr
Jérôme Forner - EI - est Agent Commercial mandataire en immobilier, immatriculé au Registre Spécial des Agents Commerciaux du Tribunal de Commerce de Avignon sous le n°853299832.
Siège social du mandant : effiCity, 48 avenue de Villiers - 75017 PARIS - Société par Actions Simplifiée, société au capital de 132 373,05 euros, immatriculée au RCS Paris 497 617 746 et titulaire de la Carte professionnelle CPI 75[Coordonnées masquées]02 025 - CCI Paris IDF - Caisse de Garantie : GALIAN Assurances 89 rue de la Boétie 75008 Paris
Voir plus

Référence: 184396
Honoraires à la charge du vendeur.
Barème des honoraires
DPE
A
B
C
D
E
F
G
GES
A
B
C
D
E
F
G

Prêt immobilier

Vous souhaitez connaître votre capacité d’emprunt et trouver le meilleur crédit immobilier ?
Réaliser une simulation gratuite

Maison à JONQUIERES
Maison à JONQUIERES
Maison à JONQUIERES
Maison à JONQUIERES
Maison à JONQUIERES
Maison à JONQUIERES
Maison à JONQUIERES
Maison à JONQUIERES
Maison à JONQUIERES
Maison à JONQUIERES
Maison à JONQUIERES
Maison à JONQUIERES
Maison à JONQUIERES
Maison à JONQUIERES
Maison à JONQUIERES
Maison à JONQUIERES
Maison à JONQUIERES
Maison à JONQUIERES
Maison à JONQUIERES
Maison à JONQUIERES
Maison à JONQUIERES
Maison à JONQUIERES
Maison à JONQUIERES
Maison à JONQUIERES
Maison à JONQUIERES
Maison à JONQUIERES
Maison à JONQUIERES
Maison à JONQUIERES
Ce site est protégé par reCAPTCHA la Politique de confidentialité et les Conditions d’utilisation de Google s’appliquent.
Obtenir un prêt immobilier au meilleur taux ?

En poursuivant votre navigation sans modifier vos paramètres, vous acceptez l'utilisation de cookies susceptibles de réaliser des statistiques de visite. Cliquez ici pour plus d'informations