Château dans le minervois proche de carcassonne

— Badens 11800 —
371 000 €
360 m² / 590 m²
21 pièces
parkingjardin

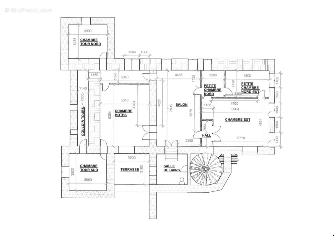
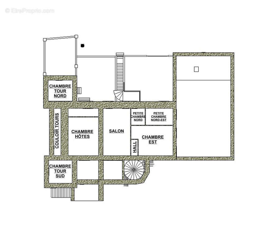
Amoureux de l'histoire et de la vieille pierre, voici une opportunité unique à ne pas manquer ! Ce château féodal à rénover, datant de 993 et ayant appartenu à Pierre de Minerve, est chargé d'histoire et de charme. Avec une hauteur moyenne de 25m et 3 tours sur une base rectangulaire de 24m sur 31m, cette propriété abrite environ 21 pièces, dont 12 chambres, un halle d'accueil,des salons privés, salles à manger, de magnifiques cheminées. D'une superficie habitable de 350m2 sur un terrain de 590m2, ce château offre un potentiel incroyable pour la création de chambres d'hôtes. Bien que d'importants travaux de rénovation soient à prévoir en raison de l'usure du temps, la vue imprenable depuis les 2ème et 3ème étages vaut largement l'investissement. Idéalement situé à seulement 21km de l'aéroport de Carcassonne, ce bien offre un accès facile aux circuits touristiques, aux randonnées et aux sites historiques tels que le Canal du Midi et la cité de Carcassonne. Ne manquez pas cette occasion de posséder un morceau d'histoire de France. Contactez-nous dès maintenant pour plus d'informations et pour organiser une visite de ce château d'exception.
Les informations sur les risques auxquels ce bien est exposé sont sur le site Géorisques : www.georisques.gouv.fr
Site : https://www.r-immobilierpro.com/
Contactez Corinne SAUVENT EI - RSAC 911 798 593 au O 651 984 058 ou par mail c.sauvent @ r-immobilierpro. com
Contactez Nelly LACROIX EI - RSAC 922 219 548 au O 638 190 950 ou par mail n.lacroix @ r-immobilierpro.com
Voir plus

Référence: 7825
Honoraires à la charge du vendeur.
Barème des honoraires

Prêt immobilier

Vous souhaitez connaître votre capacité d’emprunt et trouver le meilleur crédit immobilier ?
Réaliser une simulation gratuite

Maison à BADENS
Maison à BADENS
Maison à BADENS
Maison à BADENS
Maison à BADENS
Maison à BADENS
Maison à BADENS
Maison à BADENS
Maison à BADENS
Maison à BADENS
Maison à BADENS
Maison à BADENS
Maison à BADENS
Maison à BADENS
Maison à BADENS
Maison à BADENS
Maison à BADENS
Maison à BADENS
Maison à BADENS
Ce site est protégé par reCAPTCHA la Politique de confidentialité et les Conditions d’utilisation de Google s’appliquent.
Obtenir un prêt immobilier au meilleur taux ?

En poursuivant votre navigation sans modifier vos paramètres, vous acceptez l'utilisation de cookies susceptibles de réaliser des statistiques de visite. Cliquez ici pour plus d'informations