Bénéficiez des services de nos partenaires locaux soigneusement sélectionnés
pour vous accompagner dans votre parcours d'achat immobilier

Appartement 175m² à paris-8e

— Paris-8e 75008 —
2 600 000 €
175 m²
6 pièces
ascenseur

Nos partenaires locaux
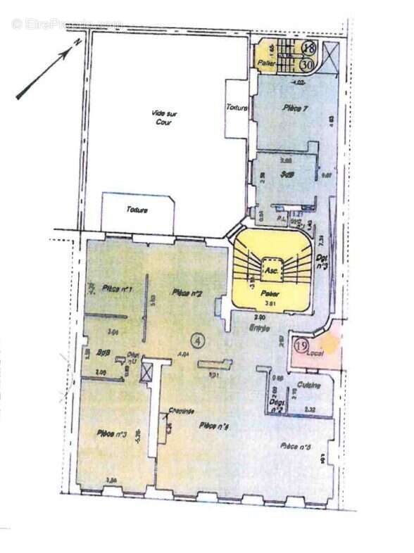
PARIS VIII Washington – Meilleur conseil IMMO vous propose un magnifique appartement familial au coeur du 8eme arrondissement de Paris, à deux pas des Champs Elysée. D'une superficie de 175m², cet appartement aux prestations haut de gamme offre de beaux volumes avec 3.20 de hauteur de plafond étant à l'étage noble au 2eme avec balcon. Il se compose d'une entrée, d'un vaste double séjour avec espace salle à manger, d'une cuisine entièrement équipée, d'une buanderie, de quatre chambres, de trois salles de bains, et de quatre WC ainsi que de nombreux rangements. Une cave complète ce bien. Cet appartement a été entièrement rénové avec des prestations de qualité, vous serez séduit par son élégance, et son emplacement exceptionnel.
profession Liberal possible
Metro Georges V
A SAISIR [Coordonnées masquées]
Divers

Honoraires à la charge du vendeur. Dans une copropriété de 7 lots. Quote-part moyenne du budget prévisionnel 4 000 €/an. Aucune procédure n'est en cours. Non soumis au DPE. Les informations sur les risques auxquels ce bien est exposé sont disponibles sur le site Géorisques : georisques.gouv.fr.

Votre conseiller Meilleur Conseil Immo : Brigitte ATLAN
Agent commercial (Entreprise individuelle)
Voir plus

Référence: VA5817-MEILLEURCONSEIL
Bien en copropriété. Nombre de lots : 7. Charges de copropriété : 4000 €.
Honoraires à la charge du vendeur.
Barème des honoraires

Prêt immobilier

Vous souhaitez connaître votre capacité d’emprunt et trouver le meilleur crédit immobilier ?
Réaliser une simulation gratuite

Appartement à PARIS-8E
Appartement à PARIS-8E
Ce site est protégé par reCAPTCHA la Politique de confidentialité et les Conditions d’utilisation de Google s’appliquent.
Obtenir un prêt immobilier au meilleur taux ?

En poursuivant votre navigation sans modifier vos paramètres, vous acceptez l'utilisation de cookies susceptibles de réaliser des statistiques de visite. Cliquez ici pour plus d'informations