Bénéficiez des services de nos partenaires locaux soigneusement sélectionnés
pour vous accompagner dans votre parcours d'achat immobilier

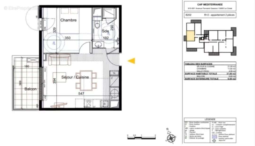
T 2 la ciotat remis à la vente

— La Ciotat 13600 —
316 000 €
38 m²
balcon/terrasse

Nos partenaires locaux
Direct promoteur et ses avantages, remis à la vente, dernier appartement.
Je vous offre 1000e au moment de la vente à dépenser comme vous le souhaiter pour vous faire plaisir à votre emménagement.
Presque 38 m2 fort confortable avec un balcon de 6 m2 au denier étage comme entouré sur la photo.
Parking en sous sol sécurisé.
Je reste à votre écoute pour vous accompagner dans votre projet.
Livraison 4 ème trimestre 2026

Référence: 85944328

Prêt immobilier

Vous souhaitez connaître votre capacité d’emprunt et trouver le meilleur crédit immobilier ?
Réaliser une simulation gratuite

Appartement à LA CIOTAT
Appartement à LA CIOTAT
Ce site est protégé par reCAPTCHA la Politique de confidentialité et les Conditions d’utilisation de Google s’appliquent.
Obtenir un prêt immobilier au meilleur taux ?

En poursuivant votre navigation sans modifier vos paramètres, vous acceptez l'utilisation de cookies susceptibles de réaliser des statistiques de visite. Cliquez ici pour plus d'informations