Bénéficiez des services de nos partenaires locaux soigneusement sélectionnés
pour vous accompagner dans votre parcours d'achat immobilier

Terrain 667m² à saint-maur-des-fosses

— Saint-Maur-Des-Fosses 94100 —
659 500 €
667 m²

Nos partenaires locaux
- SAINT MAUR - Quartier La PIE à 2 pas des bords de marne, grand terrain d'angle de 667m2 viabilisé avec 17,77 m de façade.
Le terrain est vendu avec un permis de construire accordé pour la construction de 1 ou 2 maisons individuelles selon votre projet :
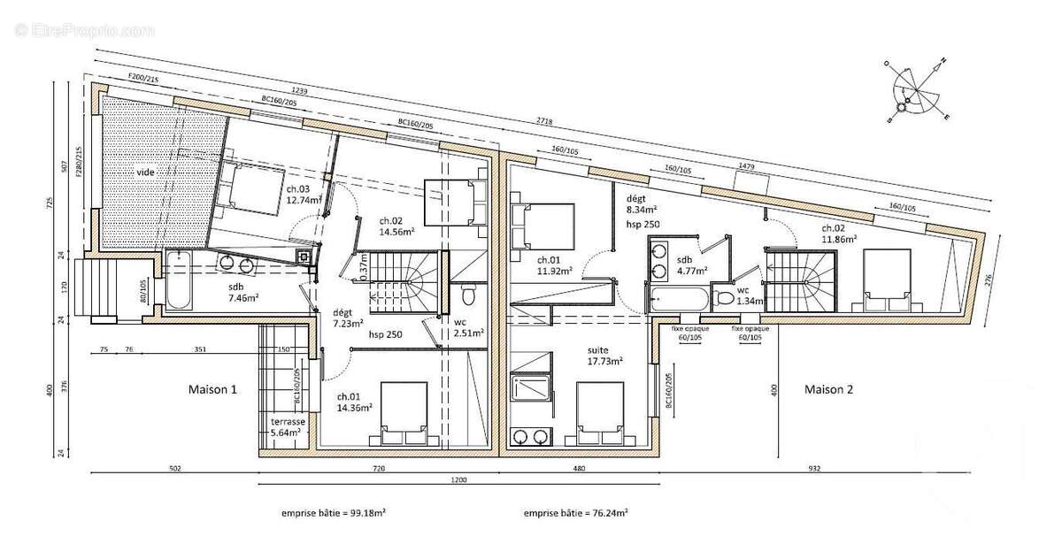
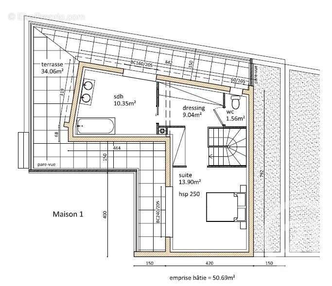
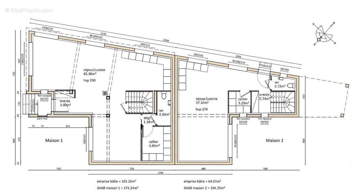
- Maison 1 : R+1+attique de 174,24 m2 habitables séjour cathédrale, 3 chambres à l'étage et 1 chambre en rooftop avec terrasse privative de 34,06m2. Sous-sol total de 85m2.
- Maison 2 : R+1 de 104 m2 habitable avec 3 chambres.
Le dossier peut être consulter à l'agence sur rendez-vous. Une affaire à saisir !
Voir plus

Référence: 10606
Honoraires d'agence de 3.07% à la charge de l'acquéreur

Prêt immobilier

Vous souhaitez connaître votre capacité d’emprunt et trouver le meilleur crédit immobilier ?
Réaliser une simulation gratuite

Terrain à SAINT-MAUR-DES-FOSSES
Terrain à SAINT-MAUR-DES-FOSSES
Terrain à SAINT-MAUR-DES-FOSSES
Terrain à SAINT-MAUR-DES-FOSSES
Terrain à SAINT-MAUR-DES-FOSSES
Terrain à SAINT-MAUR-DES-FOSSES
Terrain à SAINT-MAUR-DES-FOSSES
Terrain à SAINT-MAUR-DES-FOSSES
Ce site est protégé par reCAPTCHA la Politique de confidentialité et les Conditions d’utilisation de Google s’appliquent.
Obtenir un prêt immobilier au meilleur taux ?

En poursuivant votre navigation sans modifier vos paramètres, vous acceptez l'utilisation de cookies susceptibles de réaliser des statistiques de visite. Cliquez ici pour plus d'informations