Bénéficiez des services de nos partenaires locaux soigneusement sélectionnés
pour vous accompagner dans votre parcours d'achat immobilier

Appartement

— Marseille-9e 13009 —
360 000 €
94 m²
4 pièces
parkingbalcon/terrasseascenseur

Nos partenaires locaux
Marseille – Quartier Michelet / Desautel
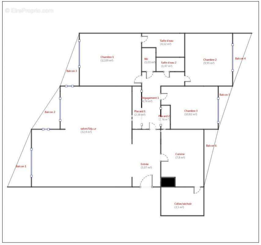
Appartement T4/5 – Traversant, lumineux et au calme absolu

Situé dans une impasse paisible d'un quartier recherché, cet appartement traversant Est-Ouest offre un cadre de vie verdoyant et serein, parfait pour accueillir une famille.

Agencement & confort :

Grand salon/séjour lumineux

Cuisine séparée avec espace buanderie

3 chambres dont une suite parentale

2 salles d'eau modernes

Nombreux rangements intégrés (dont un avec coffre-fort)

Climatisation réversible dans chaque pièce

Double vitrage aluminium & volets roulants électriques

Espaces extérieurs :

1 balcon par pièce (6 au total)

Jardin privatif de copropriété à l'arrière

Annexes :

Cave privative

Place de parking incluse

Informations pratiques :

Charges : 160 €/mois

Taxe foncière : 2 129 €

Système de sécurité complet (alarme + caméras)

Eau chaude via ballon électrique

Une opportunité rare à ne pas manquer !

Contactez Mickaël Juge – effiCity pour organiser une visite dès aujourd'hui.

#AppartementMarseille #Michelet #Desautel #Luminosité #Traversant #EffiCity #MickaelJuge #Opportunité
Les informations sur les risques auxquels ce bien est exposé sont disponibles sur le site Georisque : georisques. gouv. fr
Mickael Juge - EI - est Agent Commercial mandataire en immobilier, immatriculé au Registre Spécial des Agents Commerciaux du Tribunal de Commerce de None sous le n°879065118.
Siège social du mandant : effiCity, 48 avenue de Villiers - 75017 PARIS - Société par Actions Simplifiée, société au capital de 132 373,05 euros, immatriculée au RCS Paris 497 617 746 et titulaire de la Carte professionnelle CPI 75[Coordonnées masquées]02 025 - CCI Paris IDF - Caisse de Garantie : GALIAN Assurances 89 rue de la Boétie 75008 Paris
Voir plus

Référence: 184454
Bien en copropriété. Nombre de lots : 9. Charges de copropriété : 13 €.
Honoraires à la charge du vendeur.
Barème des honoraires
DPE
A
B
C
D
E
F
G
GES
A
B
C
D
E
F
G

Prêt immobilier

Vous souhaitez connaître votre capacité d’emprunt et trouver le meilleur crédit immobilier ?
Réaliser une simulation gratuite

Appartement à MARSEILLE-9E
Appartement à MARSEILLE-9E
Appartement à MARSEILLE-9E
Appartement à MARSEILLE-9E
Appartement à MARSEILLE-9E
Appartement à MARSEILLE-9E
Appartement à MARSEILLE-9E
Appartement à MARSEILLE-9E
Appartement à MARSEILLE-9E
Appartement à MARSEILLE-9E
Appartement à MARSEILLE-9E
Appartement à MARSEILLE-9E
Appartement à MARSEILLE-9E
Appartement à MARSEILLE-9E
Appartement à MARSEILLE-9E
Appartement à MARSEILLE-9E
Appartement à MARSEILLE-9E
Appartement à MARSEILLE-9E
Appartement à MARSEILLE-9E
Ce site est protégé par reCAPTCHA la Politique de confidentialité et les Conditions d’utilisation de Google s’appliquent.
Obtenir un prêt immobilier au meilleur taux ?

En poursuivant votre navigation sans modifier vos paramètres, vous acceptez l'utilisation de cookies susceptibles de réaliser des statistiques de visite. Cliquez ici pour plus d'informations